要說現在大部分的年輕人喜歡什麼樣的一種效果,原木風可以值得一說。相對比其他的效果來說,原木風能給人一種比較接近大自然,比較清新,舒適而溫馨的一種效果,所以大部分的年輕人都比較喜歡。
說到這裡,給大家帶來屋主她家這套94平原木風新房,整個空間給人一種比較溫馨,而且比較舒適的效果。已經搬進來入住一段時間了,家裡都能保持乾乾淨淨,一家人生活很幸福。說實在話的,第一次見她家的時間,還真的是第一次見到客廳沙發不靠牆,顯得個性又實用,很需要這樣的儲物空間,以後家裡裝修了,值得參考。下面,帶大家一起來看看,喜歡的話可以參考一下!
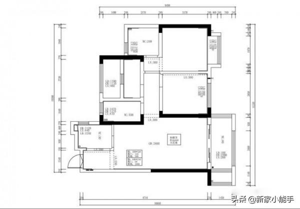
這是原始戶型圖,屬於比較常規,並且比較常見的一種戶型。戶型方方正正,動靜分割槽合理,客餐廳是在一個空間,覺得還是蠻不錯的哈。對於這樣的戶型,可能很多人家裡基本跟這樣的戶型差不多哈。
這是改造之後的傢俱平面佈置圖,其實嚴格意義說,並沒有做其他比較大的變動,僅僅是把客廳與陽臺打通,其他基本都保持不變,相信大家都能看懂這樣的戶型哈。
從入戶大門進來擁有獨立的玄關,不過空間很小,而且廚房門沒有改變,只能把出門一部分的牆體打掉,做了嵌入式的鞋櫃。同時,佈置了比較薄的鞋櫃,可以適當增加一些儲物空間,還可以放換鞋凳,這樣佈局比較合理,同時可以非常方便日常使用,還是蠻不錯的呢。
利用牆上的位置安裝了掛鉤架,可以掛包包或者衣物,這樣的設計還是蠻不錯的,直接使用樹枝,看著都很喜歡,可以起到一定的裝飾效果。家裡如果也有這這樣的需求,可以學習一下。
從這邊過去就是廚房了,剛好左側可以設計鞋櫃,可以把空間合理利用起來,同時不影響廚房推拉門。推拉門選擇玻璃,可以透過玻璃看到裡面,特別的通透。
廚房空間很小,加上沒有窗戶,所以大膽做了半開放式的廚房。根據結構定製了“U”形原木色櫥櫃,設計了高低檯面櫥櫃,使用起來更符合人體工程學。東西比較多,但是還是有序收納起來,儘量檯面少擺放其他東西,保持乾乾淨淨。
這邊位置可以放冰箱,這樣的小冰箱,其實沒那麼常見,但是對於屋主家來說,其實也足夠使用了哈。冰箱上面的檯面,可以擺放其他的水杯等,還是蠻不錯的。
剛才為什麼說做了半開放式的廚房,理由其實就是這邊開了一個窗戶。半開放式,不需要的時候,可以把窗戶放下來,沒有任何影響。而且遞菜出來的時候,還是比較方便的哈。安裝的是一個摺疊床,非常方便。
餐廳空間有限,佈置了小餐桌,大小位置合適。佈置了一個類似卡座一樣的凳子,可以非常方便就座用餐,而且也比較個性,好看。一家人坐在這樣的餐廳用餐,覺得很幸福。
客廳與陽臺打通,增加了很多室內面積,顯得空間寬敞很多。左側是不做電視牆,直接安裝了100寸抗光屏,透過投影的方式,有點類似家庭影院的感覺,還是蠻不錯的哈。地面選擇木地板,給人一種比較溫馨,沒有瓷磚那種冷冰冰的效果,真心讓人喜歡,羨慕。
第一次見到這樣的效果,非常驚豔,沙發不靠牆,利用位置設計了一排的書架,可以提供大量的儲物空間,顯得非常個性,很有視覺衝擊感。
客廳沙發不靠牆,設計了非常實用的儲物櫃,可以給家裡增加蠻不錯的儲物空間。類似背景牆一樣的效果,看著都很喜歡。櫃子是定製的,質量與做工都還不錯。基本都是開放式的,也就是沒有櫃門,就是需要安裝擦洗,不然很容易藏灰,不過看起來,比較好看。佈置了電動真皮沙發,顏色也比較好看,坐著很舒服。
屋主平時喜歡看的書,或者平時收藏的書,都可以非常方便,有序收納起來,還是蠻不錯的哈。
客廳白天的效果,非常光亮。頂面一部分安裝了吊頂而已,看著也很有空間感。選擇了安裝了圓形吸頂燈,足夠照明亮度,不會顯得燈光刺眼,非常簡潔。家裡如果不喜歡做電視牆,不經常看電視的話,可以選擇以投影的方式,覺得還是蠻不錯的哈。
騰出一個房間作為工作區,在家的時候可以方便辦公,而不會影響到家人。剛好滿足兩人同時工作,很幸福呀。窗戶做了窗簾盒,顯得比較美觀,真心不錯呀!
主臥這樣佈局,其實也比較少見,但是顯得空間非常寬敞。有個大大的飄窗可以當沙發使用,沒有任何影響。把空調的位置換另外一個位置,會更合適。
主臥擁有獨立的衛生間,使用很方便。稍微利用一些位置,顯得空間沒那麼擁擠。
定製浴室櫃的時候,旁邊預留了位置可以放馬桶,使用也比較方便。而且選擇防腐蝕的木地板,一家人都滿意。
公衛效果基本也是一樣的,不過選擇鋪貼了灰色瓷磚,也是選擇了臺上盆,而且安裝了圓形鏡子,看著都喜歡!
分享到這裡就結束啦,非常喜歡這樣的原木風,尤其是客廳沙發不靠牆,非常值得參考,也很實用。在這裡,祝願他們一家生活越來越幸福,也希望大家能喜歡這樣的效果。
圖源網路/
