記得點選關注“裝個好房子”哦~
每天為你帶來裝修乾貨、改造新靈感與美好生活故事
探尋美好居住方式,我們值得更好的生活!
----------------------------------------------
要說在裝修過程中,最令人頭痛的問題,那一定非配色莫屬了。
冷色、暖色、高飽和色、低飽和色、潘通流行色......各種各樣的顏色色卡堆在眼前,很多人直接就犯了選擇困難症。
所以這次房君乾脆簡單些,直接推薦一個無論是色彩還是佈局,都可以直接抄作業的房子。
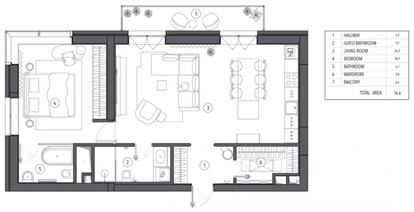
這是一個面積為74.6㎡的房子,因為平日裡是屋主一人居住,便只保留了一間主臥,更大的空間留給了LDK一體化的客廳、餐廳與廚房,讓日常生活更加舒適便捷。
推開入戶門,是一個獨立的玄關門廳,綠色牆裙的設計從此處開始,貫穿了整個空間,素淨淡雅又不會顯得過於寡淡無味。
入戶門與通往儲物間的門,皆是極簡的款式,與牆面融為一體,整體感很強。
玄關地面鋪設淺米灰色大理石地磚,與原木色地板連線在一起,色調和諧,又有材質上的區分,層次感很強。
與客餐廚之間的門洞設定成拱形,更有歸家的儀式感,大氣又溫婉。
客廳在保持整體簡約大氣的基礎上,利用電視背景牆的極簡法式石膏線條,營造出更加精緻的視覺體驗。
深藍色雙人沙發、橘棕色雙人沙發和窗簾,頗有撞色的戲劇效果,加上鋪設在地面的彩色地毯,具有強烈的反差。
大理石茶几搭配金屬邊幾,不失質感。
天花板上以磁吸燈帶與小射燈代替傳統主燈,足夠滿足日常照明需求。
一體化的開放式餐廚設定在客廳對面,餐桌從大理石中島左側延伸出來,搭配6把同色系餐椅,明亮典雅。
上方的球形吊燈,可以呼應門洞的拱形元素。
櫥櫃延續整體背景牆面白+綠的配色,讓原本煙火氣很重的空間更加清新明快。
烤箱、洗碗機等大型廚電,全部嵌入在櫃體中,讓表面保持整潔有序。
臥室面積不大,但採光極好,灰色雙人床靠窗擺放,每天清晨都能被陽光叫醒。
淺綠色半牆搭配墨綠色絲絨窗簾,既有清新感,又不會顯得過於輕飄。
異形書桌面朝窗戶擺放,工作累了,抬頭就能看到廣闊的城市風景。
工作區處的窗簾採用黑色百葉簾,簡潔利落,坐在這裡加班時也方便來回開合。
雙人床對面是入牆式衣櫃,遠遠看過去,與牆面融為一體,存在感特別弱,絲毫不會讓小空間顯得壓抑侷促。
主衛與臥室之間以長虹玻璃隔斷門分割,擋人不擋光,細細的黑色門框與黑色百葉窗遙相呼應,壓住空間氣場,頗具復古風情。
花紋紛繁複雜的黑色地磚延續至半牆處,因整體空間主調簡潔,所以並不顯得雜亂無章。
檸檬黃牆面與它搭配在一起,時尚又有韻味。
浴缸、馬桶皆為白色,搭配上方白色背景、綠+藍+粉色塊的掛畫,藝術氛圍濃郁。
次衛沒有延續其它空間的風格,牆面以暖洋洋的珊瑚色為主,將草綠色臺盆襯托得格外顯眼。
洗漱鏡做成通頂的形式,透過鏡面反射延伸、放大視覺面積。
淋浴區與如廁區以半截透明玻璃相隔,保證洗澡時水花不外濺。
地面抬高几公分,細分出不同使用功能。
案例及圖片來源:設計師 Bureau Slovo
