55平米,
塞進了這麼多功能。
- 生活 美學 -
一對二胎夫婦,放棄了郊區140平的豪宅,一家6口住在55平的老房子。乍一聽,是不是感覺太擁擠了?
然而,房子的影片被分享到網上後,卻收穫了千萬網友的圍觀和羨慕。
女主人豐豐是大學英語老師,選擇這所小房子,主要是為了陪伴孩子上學。
來源:@李小冷不冷,《超想逛你家》
設計師:東己壤設計研究室,何雨晴
最厲害的是,小房子不僅實現了寬敞的圖書室、遊戲屋,甚至還有女兒的舞蹈室、繪畫區、媽媽的瑜伽室、兩個洗手間……
簡直就是神仙小屋!
這套房在廣州越秀區恤孤院,學區優質。
豐豐把原先的140方換到這裡,主要是為了孩子們讀書。
可以看到街道兩邊是紅磚碧瓦的東山洋樓,周邊環境十分舒適。
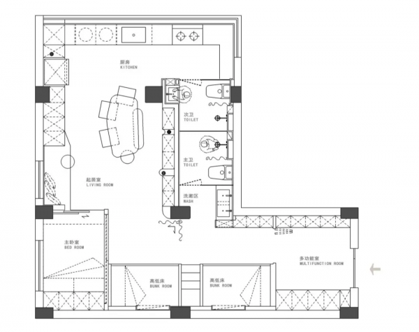
但原先的戶型很不合理,是個手槍戶型。
而且改造前,豐豐提出了功能要求,總結起來有5點:
要有老人房,要有孩子閱讀畫畫的地方,女兒要舞蹈房、孩子玩具要有收納空間,廚房更要有收納櫃。
結果,一個55平小戶型,設計師平面圖就畫了10稿,最終才確定下來這個方案。
現在的房子,進門的感覺就與眾不同,一邊收納孩子們的書和衣物雜物。另一邊是大大的落地鏡,一切都收拾得整潔利落。
女兒平時在這裡跳舞,媽媽也在這裡做瑜伽。
把採光最好的地方作為起居室,還將客餐廚一體化,增強各空間的互動性。
就像豐豐希望的那樣,起居室就像一個小小圖書館,餐桌也不再是隻能吃飯,一家人可以坐在這邊閱讀、繪畫或做手工。
而且兩兄妹,還用不同顏色的書櫃作為區分,這樣孩子們從小就會把自己的書放進自己的櫃子裡,養成隨時收拾整理的習慣。
櫃門還特別做了雲朵形狀的拉手,書櫃離地設計,方便地面打掃。頂層和下層都設定了封閉式儲物空間,起居室的日用雜物都可以藏進裡面。
一家人經常坐在這裡,爸爸媽媽喝茶,小朋友畫畫,互相不干擾,這種長大的感覺也挺棒的。
特別要讚的是,閱讀燈借鑑了手術燈的設計,看書不會有陰影,夫婦倆對閱讀的重視可見一斑。
沙發以卡座代替,下面還有抽屜可以儲物。因為主臥比較小,所以在起居室裡也做了落地的衣櫃,這樣棉被毯子還有平時穿外面的大衣外套啥的都可以掛在這裡。
兒童房就在起居室的一角,用PVC板做隔斷,拉開就可以看到。
原本陽臺位置的一長溜空間,變成了廚房+洗衣房。
整個廚房,有長達6米的操作檯面。而且窗外因沒有遮擋,意外收穫了整屋最好的視野。
廚房窗外景觀
每天做飯的時候,望出去的風景是這樣的。
兩個小朋友偶爾也能搬著板凳來廚房幫忙,跟大人一起做點心。窗外能看到周邊的民國老建築,天氣好時,還能看到遠處的小蠻腰。
廚房連通陽臺後,洗/烘機做廚下嵌入式設計,更省空間。
把儲物櫃是從起居室延伸過來,還對每個區域進行功能分割:從左到右依次為衣物區、玩具區、工具區和日用雜物區……
主臥只有5平米,為了充分利用空間,用儲物地臺代替床。
1.8米的雙人床墊直接放置在地臺上面,地臺內則是用來儲存雜物的收納空間。
把兒童房放在主臥的隔壁,還在牆上開了室內窗,這樣小朋友有啥事,可以透過牆上的小洞就能跟爸爸媽媽說話。
而最厲害的就是兒童房,居然掏出了3個睡眠區+1個遊戲角。兄妹倆不僅擁有了各自的獨立空間,老人來住也不怕擠了。
3米的層高,讓高低床的配置剛剛好。
兄妹倆的房間採用上下錯層的設計,親密又獨立。哥哥睡左側上鋪,妹妹在右側,中間由樓梯隔開。
由於考慮到兄妹倆很快就要長大,到了分房睡的年紀,所以還加了兩道PVC摺疊門,這樣晚上關起來,各自都有自己的獨立空間。
這塊無拘無束的小天地,充分滿足了孩子童年的渴望,做遊戲,畫畫,躲貓貓……玩上一個下午也不知疲倦。
而且兒童房裡還有遊戲區,弧形門洞內有一種躲貓貓的感覺,這裡還是小朋友的掛衣區,每天晚上選好衣服可以提前掛進去,第二天可以美美噠去上學。
兒童房全貌。
拱形的小空間,既充滿童趣,又方便孩子們拿取。
拉上簾子就是一塊安的閱讀區,不用擔心被打擾。
還把衛生間一間拆成兩間用,“早高峰”在他家是不存在的。
老人來照顧小朋友時,也都能有獨立的使用空間。
一大早,孩子們還可以一起刷牙,開心得不得了。
屋主夫婦有自己獨立主衛,鏡櫃為小洗漱臺提供了充足的儲物空間,可以當鏡子,裡面還可以放不少洗護用品。
淋浴房就在智慧馬桶邊上,拉上簾子就可以洗澡。傍邊掏出一條豎向凹槽,加上幾塊隔板,什麼沐浴露洗髮水都可以放在這裡,隨時取用太方便了。
有人算過一筆賬:陪伴孩子的有效期,只有10年。
大房子可以等,但是孩子的成長不會等。
孩子不會在意房子的面積有多大,他只會在乎,有沒有父母的陪伴。
