ON.1 前言
上一篇文章我們聊了位於東五環的綠城沁園,詳情可點選這裡檢視哦。各位剛需小夥伴有沒有心動呢?今天我們向裡進發,看一看四環。近十年的時間四環告別了新房市場,而高企的二手房價也讓無數想要定居的人夢碎。
雖然東四環新房市場沉寂已久,但是就像小嶽嶽唱的,畢竟比五環少一環,有個風吹草動都能吸引所有人的目光。今天我們的主角就在四環,而且這是一個地鐵盤、偏改善的純住宅。如果說,綠城沁園是為剛需上車朝陽所準備,那麼它就是為了讓你在四環住得更大更舒服。接下來就讓我們一起來了解——朝陽壹號。
ON.2 初識專案
朝陽壹號的營銷中心緊鄰百子灣地鐵,從地鐵出來向西200m就是。咱不多廢話,上沙盤。
ON.3 開發商和物業
開發商團隊是由五礦地產、融創地產以及北京城建地產,三家聯合開發,分工明確。公開資訊顯示,五礦佔股40%,另外兩個分別30%。
最初融創並沒有加入,後來招商退出,融創進入該專案,負責專案的設計和操盤。
大股東雖然不是融創,但其憑藉出色的產品力,以及北京地區這幾年積累的口碑,操盤的能力值得放心。央企五礦和國企北京城建出資護航,更加穩妥了一些。
ON.4 專案位置
其實王四營和豆各莊相鄰,兩者的區位基本一致,具體區域位置的詳細說明可以檢視上一篇綠城沁園的文區位介紹,本篇內容不再詳細贅述。
ON.5 外立面和園林
ON.6 小區規劃
朝陽壹號佔地面積約4.8萬㎡,若換算成方形,大概是大體300m*160m的一個大社群,相當於7個足球場大小,是王四營和豆各莊這幾個地塊裡最大的。即使放在北京所有新盤裡,社群也是相對較大的。而且社群裡是純住宅,沒有其他配建,這就意味著小區中央能有大片的綠化園林。相對於那些除了樓就是樓、一根手指數得過來樹的小社群,朝陽壹號的社群環境無疑是非常值得期待的。
值得一提的是此專案的人才公寓面積是110㎡起步,與商品房面積一樣,無小戶型,門檻高了,租戶的水平也能拔高。
後期物業為綠城物業,物業級別為一級,物業費5.98。全裝修交付,即產業化裝修,配備新風系統和中央空調。如果不喜歡,後面也會推出精裝包供選擇,不過目前價格未知。
ON.7 戶型分析
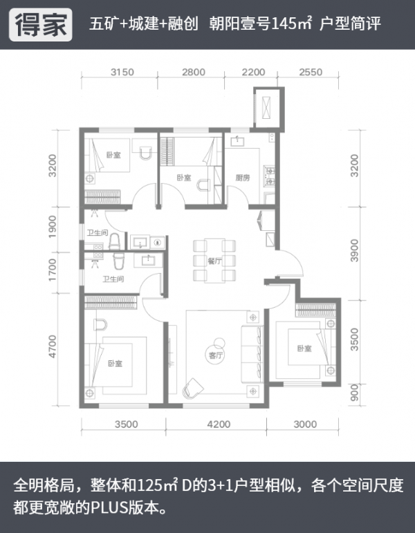
朝陽壹號本次主推4種戶型設計,分別是110平米的三居,125㎡的3-4居,145㎡的4居,170㎡的4居,整體來看是偏改善。總價780-1200萬。首套首付40%,310萬-480萬起;二套首付80%,620萬-965萬起。得房率71%-75%左右。
此戶型主要位於1#和13#中間戶,北側臥室尺度大,這樣三間臥室都比較舒適。但是主臥偏小,客廳面寬緊窄。適合追求功能性多的三代家庭使用。
下面的125㎡是比較推薦的戶型,各方面尺度比較平衡。也是此次的主力戶型,而且有多種戶型可供選擇。
此戶型主要位於7#和8#中間戶,足夠滿足三代人居住使用。
此戶型主要位於2#、5#、11#、13#邊戶,滿足無論是與老同住的二娃家庭,還是三孩之家的宜居戶型。
此戶型主要位於1#,據現場的銷售顧問介紹,有一個客戶買這個戶型直接打算改成4居,還能3臥室,1客廳向陽。面寬大是硬道理。美中不足是有點偏東西向,如果介意朝向要斟酌。
此戶型主要位於2#、3#、4#、5#、7#的邊戶,預算充足可以嘗試的改善戶型。
兒童娛樂區可以打造成兼具滑梯、高低床、玩具收納間的結構,將玩樂、休息、收納融為一體,給孩子創造一個專屬於他的遊樂區域;亦或打造成一個兒童閱讀角,提高孩子的家裡閱讀的頻率和時間,對孩子的教育也是很好的。可以說功能性很強。
此戶型主要位於8#邊戶,本次的樓王。很不錯的改善戶型。
ON.8 專案總結
優點:
1、商圈覆蓋廣,工作選擇多又廣,一線城市任你闖。
2、交通便捷又多樣,地鐵房,駕車體驗也很棒。
3、融創品質硬核有保障,高標準毛病少。
4、綠城物業服務跟得上,住得舒心心態好。
劣勢:
1、不是教育高地。
2、周邊醫療資源不太給力,10km以外才有三甲醫院等你。
3、周邊配套尚在建立,別急別急。
4、焦化廠站南邊人有點密,大量濟適用房、回遷房、安置房與你隔著地鐵而立。
朝陽壹號值不值得買,適合什麼樣的人買呢?
如果你當下想要在四環邊尋找一處臨地鐵、總價不超過千萬的改善型四居產品。可以說,朝陽壹號有足夠的誘惑力。兼顧通勤的同時社群的質量和環境也有保障。適合多孩家庭或三代同堂居住的改善之選。
漫長歲月是對房子的大考。由內至外,小到房屋空間大到區位,朝陽壹號都有一定的競爭力。就像我們奮鬥至今,隨著競爭力的提升,也會離城中心越來越近,離想象的生活越走越近。
好啦,朝陽壹號就介紹到這裡,前面我們介紹了綠城沁園,想回顧的朋友點這裡哦!
下一篇我們一起探訪保利錦上,看看他的表現如何,敬請期待!
推薦閱讀:
- 樓盤作業:和光悅府
- 樓盤作業:龍樾合璽
- 樓盤作業:望京養雲
- 樓盤作業:北清雲際
- 樓盤作業:奧森春曉
- 樓盤作業:綠城沁園
- 地段配套作業:和光悅府,龍樾和璽、望京養雲
- 使用者問答:買學府壹號院還是北沙灘中建?











 
			 
			 
			 
			 
			 
			 
			 
			 
			 
			 
			 
			 
			 
			 
			 
			 
			 
			 
			