能把一臺車開到10年以上的專一(qiong)車主,應該都體驗過老車經過坑窪路面時,底盤“咯吱咯吱”的聲響,以及底盤與新車天差地別的“鬆散”感。其實,這就跟人體衰老後,關節容易“嘎嘣嘎嘣”響是一個道理。好在與人體關節不同的是,汽車承擔關節部位的“襯套”是可以輕易更換的!所以今天我們就來講解一下“襯套”這個直接關乎車輛行駛品質的零件!
眾所周知,汽車和眾多工業產品一樣,是由大量金屬零件構成的。而在工業產品中,當兩個金屬零件的軸端相連後,難免會因為長時間的運動摩擦產生磨損,進而出現曠量,導致無法完美執行設計之初的工作任務。
所以為了降低兩個零件之間磨損,人們便想到了在兩個零件的活動區域之間安裝一個硬度較低,且耐磨性較好“金屬環”,來使它承受兩個零件之間運動所產生的金屬磨損。這樣一來,兩個零件運動時的磨損就都會集中在“金屬環”上,大大提高了零件的使用壽命。同時由於“金屬環”的更換成本是要遠低於金屬零件的,所以還能降低後期使用中的維護成本。而這個“金屬環”就是所謂的“工業襯套”。
在瞭解了工業襯套後,汽車上的襯套就很好理解了。在一臺汽車上,能夠活動的部件主要都集中在車輛的底盤部分,也就是組成車輛懸架的各種擺臂。由於懸架擺臂都是透過轉軸相連的,所以為了降低擺臂與擺臂、以及擺臂與副車架之間的運動磨損,保證其能在較長的壽命內按照設計之初的軌跡工作,於是車輛的懸架便用上了大量的襯套。
相比起工業襯套而言,由於汽車襯套主要用於懸架部分,因此汽車襯套還需要具備一定的減震功能。畢竟當車輛經過坑窪不平的顛簸,以及行駛在粗糙的路面上時,顛簸所產生的力除了會透過輪胎向上傳遞到避震器以外,還會透過懸架的各種擺臂傳遞到車身上,進而影響車內的乘坐舒適性。因此,汽車襯套通常會在內部使用質地相對柔軟,且擁有一定濾震能力的橡膠來保證舒適性,而在外部則會使用堅硬的金屬來進行限位,防止懸架在橡膠形變時偏離軌跡。
如上圖所示,避震器透過襯套與懸架擺臂相連,懸架擺臂又會透過襯套與副車架相連,而副車架同樣會透過襯套與車架(底盤)相連。這樣一來,當車輛遇到顛簸力以及行駛在粗糙路面產生高頻震動時,各種橡膠襯套就能透過一定的形變來吸收震動了。同時橡膠形變後的回彈力還能充當阻尼,大大降低傳遞到副車架上的“顛簸力”,提升車輛的舒適性。
不僅如此,底盤除了縱向擺放的襯套外,還有很多水平擺放的襯套,所以當車輛壓過減速帶時,襯套不僅可以和避震器一起化解縱向的震動(如上圖紅色箭頭運動方向),而且還可以化解車輛“撞”上減速帶時,車輛向前慣性所帶來的向後反作用力(如上圖黃色箭頭運動方向)。同時,橡膠襯套的存在,還會讓這股衝擊力所造成的噪音,從沒有橡膠襯套的“鐺鐺”尖銳金屬碰撞聲,變成聽感更低沉的“嘣嘣”聲。
一般來說,襯套的橡膠越軟,對震動的吸收能力就越強,也就越能提升車輛的舒適性。但由於越軟的襯套,其壓縮形變後的阻尼力也就越小,所以在遇到顛簸時,較軟的襯套就會因為阻尼力的缺失,出現一種趨於彈簧似的,不停往復運動的狀態,導致懸架經過顛簸後,在前後、上下的維度都很難迴歸到正常位置,進而傳遞給車內乘員一種抖動的體感。甚至還會成為急剎踩停後,車輛前後晃動的誘因之一。所以,為了在將襯套做軟的同時還能保證阻尼力,於是便有了內部填充液壓油的“液壓襯套”。
雖說相比橡膠襯套而言,液壓襯套的確是更高階的存在,但由於其結構並不複雜,生產成本也只有幾十塊錢,所以液壓襯套在一些15萬級別注重行駛品質的車型上就會出現,而在高於20萬的車上就很常見,到30萬的價格區間基本就是標配了。
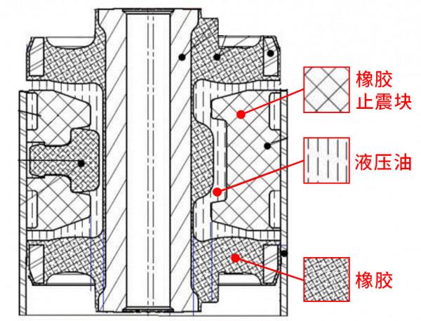
相比起普通的車用橡膠襯套來說,液壓襯套最具意義的提升就是打破了橡膠柔軟程度與襯套阻尼完全關聯的特性。如上圖所示,液壓襯套的外側依舊是我們熟悉的橡膠材料,但在橡膠的內部,則被設計了許多腔室、管道,並灌注了液壓油。所以當懸架運動,進而擠壓液壓襯套時,液壓油就會朝另一側流動,並在另一側透過油壓建立阻尼。這樣一來,液壓襯套就能在使用柔軟橡膠保證初段濾震的前提下,同時兼顧末段的阻尼力,以避免不必要的震動了。
看到這裡,那些對車輛懸架十分了解的朋友,應該已經發現液壓襯套的工作原理其實與車輛減震器是十分相似的。其中,液壓襯套外側的橡膠可以理解成彈簧,透過自身的形變來吸收、緩解震動。而內部的液壓油則可以理解為避震桶,透過油液的流動來產生阻尼效果,以此來解決橡膠過分形變或阻尼不夠所導致的不停顫動。
也正是因為液壓襯套能夠在使用較軟橡膠的情況下,還能擁有相當出色的阻尼,所以那些使用液壓襯套的車型,便可以在懸架結構的連線處,這種除避震桶以外的地方,為底盤帶來前段軟、後段韌的減震效果。如果此時,車輛的懸架調校也比較優秀的話,那這臺車的底盤就可以從容面對路面顛簸,為車內帶來更高階的行駛質感了。
實際上除了懸架以外,發動機作為車輛自身震動的“大頭”,也會透過在與車架相連的機腳處使用襯套,來大幅降低發動機傳遞到駕駛艙(車架)的震動,進而提高車輛的NVH。與懸架襯套一樣的是,一些注重行駛品質的車型(下到幾萬塊售價的車),或者是發動機自身震動比較大的車型(以三缸為主),也會透過使用液壓機腳襯套,來進一步降低發動機傳遞到車身上的震動。
不過需要注意的是,由於懸架部分的襯套相比於發動機機腳襯套的位置要更貼地,且更裸露,因此會很容易在路面融雪劑的腐蝕,以及沙石的衝擊下造成損壞。對於普通的橡膠襯套來說,惡劣環境會加快橡膠自身開裂、破碎的程序,濾震效果也會在老化過程中逐漸降低。但由於橡膠襯套的內部並不像液壓襯套那樣,要為液壓油留出不小的中空儲油腔室和管道,因此橡膠層的厚度是可以保證3、5年的使用壽命的。而液壓襯套由於橡膠層更薄,所以壽命是明顯不如橡膠襯套的。一旦外部的橡膠出現老化、破碎,那很容易就會造成內部液壓油的滲漏問題,並導致減震效果呈斷崖式下降。所以如果大家發現自己的愛車在上年頭後,遇到顛簸時會產生異響,或者是感覺行駛質感下降想找回新車的底盤緊緻感,那一定記得更換襯套哦!
要知道,一臺車要想完成轉彎動作,在駕駛員透過轉動方向盤給出轉向指令後,轉向力還得經過轉向齒輪帶動齒條、齒條帶動轉向拉桿、前輪轉動帶動輪胎形變、輪胎形變壓縮懸架和襯套,懸架和襯套帶動車身形變再帶動車頭、車頭轉向並帶動車尾的“漫長”步驟。其中,要想讓轉向力傳導到下一個步驟,就必須要等待上一個步驟的所有參與部件完成形變才可以。由此可以看出,每個參與轉向部件的形變數越大,該步驟力傳導轉向力所需的時間也就越長,整體的轉向時間也就越慢,操控感受也就越不直接。
也就是說,要想縮短駕駛員開始打方向,到車輛真正開始向預計方向進行轉向的時間,就必須要降低各個零件之間的形變數才可以。這也是為什麼在更換更硬的絞牙避震器、防傾杆,甚至更換低扁平比的輪胎後,車輛的操控極限雖然不會有太大的提升,但會在車身響應速度上有明顯提升,進而讓車輛在感官上具備更好操控性的原因。
透過上文我們已經知道襯套是如何透過自身形變,來提升車輛舒適性的。但由於形變在某種程度上就意味著動作的遲緩,感受的滯後,因此當我們在追求運動感和響應速度的時候,也是可以對襯套進行反向操作的。即透過增加襯套的剛性,減小自身形變數的方式,來達到降低懸架擺臂與副車架之間位移量的效果。目前市場上高剛性的襯套有聚氨酯襯套(可以簡單理解為塑膠)以及金屬襯套。其中,聚氨酯襯套的壓縮形變數要小於橡膠襯套,但由於聚氨酯依舊具備可壓縮性,所以可以在提升車輛響應的前提下,保留一定的舒適性。
而金屬襯套則幾乎不具備形變數,所以當車輛進行拐彎時,懸架擺臂與車身或副車架之間的形變數將會被最大程度降低,車輛的響應速度將會得到大幅提升。但由於金屬襯套沒有過濾效果,因此當改裝了金屬襯套的車輛經過坑窪路段時,就會有更多的衝擊力被直接傳遞到避震器和車架上,大幅降低車輛的乘坐舒適性,並加速避震器和車架的老化,提高異響機率。
多囉嗦一句,襯套的英文為Bushing,所以大家在淘寶以及各大改裝論壇上經常看見的“杯士”,其實就是Bushing音譯過來的一種非官方叫法。也就是說,改裝杯士其實就是改裝襯套。
雖說發動機、變速箱、底盤被並稱為汽車的三大件,但實際上這只是非常籠統的說法,因為在底盤當中就有懸架結構、避震器形式,避震器軟硬等諸多細分子項,而襯套則是這些細分子項中的一小部分。不過正所謂“牽一髮而動全身”,小小的襯套對於一臺車的影響其實也是很大的。它不僅可以直接改變整臺車的操控感受,同時還會影響車輛的舒適、濾震效能。所以,如果你收了一臺上歲數的老車,又或者是手中陪伴自己多年的夥伴已經失去了當年緊緻的底盤質感,那不妨快去換個襯套,享受老夥伴滿血復活的快樂吧!
