一套複式住宅,最大優點在於上下兩層的空間關係,能讓家人之間擁有自己更獨立的空間,又能同在一個屋簷下保持“一碗湯”的距離,也難怪不少人喜歡~
今日要給大家分享的裝修案例正是如此,這是一對天津夫妻的180㎡新房,他們的複式戶型略有特殊,所在頂樓,有少量斜屋頂,所以二層帶有部分閣樓區域。整套房子的裝修以淺灰、白、多層次的木色為基調,打造了這個自然氣息極強的詩意棲居,每一處空間都極致利用,反而清爽大氣極了,讓人一進屋就被吸引。居住其中,舒適、方便、美好、溫馨!讓我不由感嘆:等我再換房,一定要買套屋主家這樣的複式樓,學他家這麼裝修,太完美了!曬曬。(圖片以及案例來源:經@深白空間設計授權)
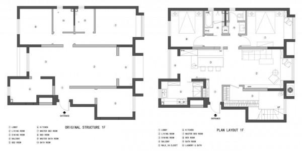
    設計圖紙
▲一層平面佈局
180㎡是整個房屋的使用面積,整個房屋的格局很不錯,採光很好。屋主夫婦都是非常優秀的自媒體從業者,目前兩口子居住,二人作息時間不同,工作繁忙經常在家辦公,利用複式樓的優勢讓二人同在屋簷下又擁有自己獨立的生活區,互不干擾又能隨時照顧。
一樓的休息區和公共區劃分清晰動靜分離,每一處關鍵的動線位置都融入了充足的收納功能。
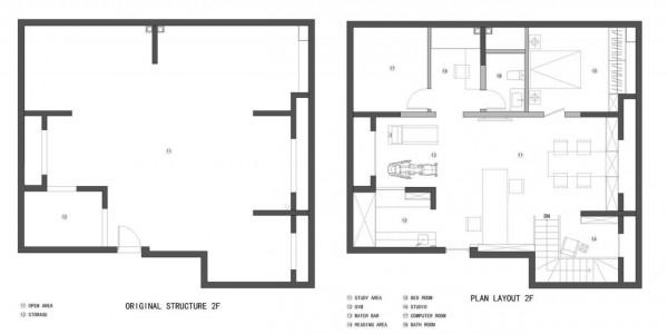
▲二層平面佈局
二樓空間使得男主人和女主人的工作時間可以完美錯開,並且互不干擾,樓梯也在距離臥室較遠的位置,如此上下樓的時候也不會吵到在臥室休息的另一半,男主人加班晚了,也可以直接在二樓休息。
廢話不多說,還有更多細節,且隨我檢視屋內實景吧!
    屋內實景
▲客廳過道視角
從這個視角可以整體看清楚客廳、餐廳門廳的空間關係和格局,整個裝修非常自然清新,配合優質的採光,讓人一進屋就覺得極度放鬆,木色系淺灰色的運用起到了至關重要的作用,解壓極了。鏡頭深處,可以看到門廳區域,右手邊是一整面牆的嵌入式鞋櫃,預留了中底鏤空和換鞋、掛衣區域,功能強大收納空間充足。
電視牆旁邊的牆體結構安裝木質護牆板,與鞋櫃色調融為一體,此處打造隱形門,完美降低突兀感。
▲餐廳
餐廳左手邊緊鄰廚房,並附帶一個小型陽臺。對屋主夫妻而言,平時在家的時間很多,所以廚房餐廳的使用頻率相對較大,為了增加實用性,在此不僅打造了卡座式餐椅,還設計了水吧檯,完美利用空間的同時,倍顯煙火氣息。
卡座巧妙利用邊角結構,能坐人能儲物。
另一側吧檯區的設計也尤為巧妙,L型格局,安裝了水槽,連線淨水器,開啟龍頭就能直飲水,進屋也方便第一時間洗手。檯面主要用於陳列咖啡機、杯具,此處相當於是一個飲水吧,工作累了渴了直接來這裡喝水十分方便。
櫃子收納也採用了“藏八露二”的理念,適當的鏤空區,用於收納筐分類儲物,存取便利一目瞭然,生活氣息極強。
▲客廳
對屋主夫妻而言,客廳使用頻率很高,但觀影頻率很低,平時大量接觸電子產品,在客廳區夫妻倆就喜歡能清靜的休息,所以在正常佈局下捨棄了電視機功能。
以投影儀+幕布的形式代替,這樣不用的時候可以把它隱藏起來,減少視覺突兀也方便打理。
客廳之所以現在這麼寬敞,得益於陽臺空間打通的融入,整個效果充滿了自然氣息,陽光下這個家的溫馨感讓人嚮往,天然的木色調,配合米色布藝沙發,圓形木質茶几,灰色百搭的牆面,點綴綠植,氛圍棒極了!
定製電視櫃的設計也尤為巧妙,鏤空區採用整齊劃一的收納盒進行儲物,乾淨整潔,極大提升生活效率。
沙發右側的鬥櫃,近距離拍攝才發現它非常有質感,隨手一拍都是精美畫面。
▲廚房
圍合的U型佈局真的是完美利用廚房空間,完美容納夫妻二人同時操作,搭把手非常方便,轉個身就能照顧和使用到每一處區域。
廚房的佈置,讓人一眼望去就能知道這是一對會過日子的夫妻~
▲一樓臥室門口
臥室門設計了一個貓洞,因為家中有小貓咪,方便寵物進出,此處同時緊鄰衛生間,地面做了石材鋪裝,更好打理更好保養地面。
▲主臥室
工作生活壓力大,臥室以氛圍燈替代主燈設計,開燈後乾淨、清爽層次鮮明,光照均勻且沒有絲毫突兀感。主臥中是沒有大衣櫃的,只有角落的小鬥櫃和常用掛衣架,這樣能保證主臥空間儘可能的寬敞舒適。
床頭櫃也採用了懸掛的形式,底部鏤空增加視覺輕盈感,也方便打掃衛生。
用右側的定製卡座櫃子,營造假飄窗的舒適休閒空間,併為主臥補充雜物收納功能,屋主喜歡睡前閱讀,鏤空的書櫃便於隨手存放各類書籍。
▲一層衛生間
整套房子在原始格局上有兩個衛生間,都在一樓且緊挨著(二樓只有管道)。考慮到使用頻率,和居住人口,一樓的雙衛改造成了三分離衛生間。
上圖區域為洗漱區和馬桶區,兩兩分離方便使用。幹區的兩側都設有充足的收納功能,隱藏鏡櫃的設計,也能存入超多瓶瓶罐罐。
另一邊是溼區,此處有獨立淋浴房、泡澡區,乾溼分離很完美,門口區域還打造了洗衣房,有洗衣和烘乾裝置,生活品質很高。
▲衣帽間
衣櫃在哪裡?
看上圖,實際電視牆右側的隱形門開啟,進入後就能看到衣帽間了,此處距離門廳很近,又是連線上下樓的樞紐,使用頻率很高,所以衣帽間放在這裡非常合適。
▲樓梯間
再往裡走就進入了樓梯間。
▲二層
男主是科技類自媒體《津津樂道播客》的主編,工作繁忙而充實,二層擁有部分閣樓區域,此處就打造了屬於他大二寬敞的辦公區。
雖然這裡是辦公區,但牆角的收納設計非常值得讀者學習,櫃體+收納筐的儲物形式,非常適合收納諸多零碎物品。
夜晚若是需要加班,男主在此工作產生噪音,就不會打擾樓下熟睡的妻子,二樓有獨立的客房,若是加班很晚,可以單獨在客房休息。上下兩層同在一個屋簷下,又保持著一碗湯的距離,很棒~作為同行的筆者,也很憧憬一個這樣的房子,你呢?


























 
			 
			 
			 
			 
			 
			 
			 
			 
			 
			 
			 
			 
			 
			 
			