今天給大家介紹的這套作品,來自設計師@木芯設計 。
房屋140㎡位於廣東廣州,原戶型7米長的開放式陽臺佔地面積多,利用率低。設計師採用7m落地玻璃窗代替了牆體,將開放式陽臺改為封閉式,一部分納入客廳,一部分用作休閒區,夜幕降臨,落地窗上映著室內光影、萬家燈火,充滿生活的氣息。
一起來看看吧!
以下圖文來自設計師@木芯設計
房屋資訊
戶型 4 室
使用面積 140 ㎡
裝修花費 80.0 萬元
房屋位置 廣東 廣州
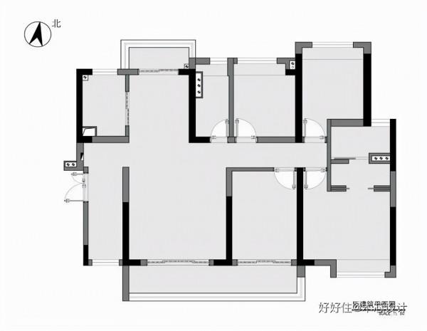
戶型圖
原建築平面圖。原戶型是四房兩廳的佈局,均攤下來客廳和房間的面積比較小,居住體驗比較差。7m長的開放式陽臺佔地面積多,利用率低。
原始圖片。
1.拆除玄關、廚房、客廳非承重牆體,擴大空間。
2.將封閉式廚房改為開放式廚房。
3.將一個房間改為茶室和休閒區。
4.開放式陽臺納入室內,去除多餘牆體後,採用7m全落地玻璃窗進行封窗。
透過三維立體的呈現整個房子的空間結構,從天花板、牆體、櫃體、動線進行全面的規劃,將舒適度提到最佳。設計不僅要美觀,實用性同樣也很重要,這個整屋的收納面積有70㎡,從圖上可以清楚的看到整個空間的收納:入門玄關櫃、收納儲物間、廚房櫥櫃、酒櫃、茶室書櫃、過道內嵌式收納櫃、主臥衣帽間、次臥衣櫃、兒童房衣櫃+書櫃、2個衛生間的收納櫃。收納面積是相當足夠的,設計師在有限的空間內實現了極完整的收納系統,同時在外觀設計上完美的融合了整個家居風格。
餐廳&廚房
巧妙的拼合,開啟別樣的用餐體驗。
餐桌一端採用金屬屏風作為隔斷,與大理石臺穿插在長木桌中,巧妙的工藝手法,將三者不同物品融為一體。
3.5m長的原木餐桌,兼顧日常用餐、家庭聚會使用,屏風的作用既是裝飾也是作為空間的隔斷,視覺讓整個空間顯得飽滿立體。
開放式廚房和餐廳之間,是沒有設隔斷的,一眼就能看到整個空間,十分考驗設計師對於空間規劃和材質色彩的搭配。這種金屬屏風+大理石臺+原木桌三者合為一體的設計,想要達到完美的嵌合效果,十分考驗工藝,設計師也曾好幾次蹲守工地,生怕施工師傅沒做出理想效果。
島臺、烹飪區、收納酒櫃、生活陽臺的連通佈局,根據人的感官習慣來打造環繞式一體的開放式廚房。精緻的烹飪環境,既要功能齊備,也要展示出生活的品味。另外這個黑色玻璃酒櫃,也是超愛的,這種光澤感,妥妥的低調奢華~
櫥櫃檯面材質選用堅固耐磨的巖板,櫃板是進口的愛格板,質感非常好。廚房的重中之重是島臺,這是請專業師傅現場定製的。材質選用了灰色大理石磚、進口愛格板、黑鏡玻璃,整體裝飾感非常強。
客廳
以白天、夜晚為不同背景,在自然光下、燈光下呈現截然不同的空間氛圍。
木格柵的嚴整有序,用線條去延伸空間的維度,從牆面至天花面,由面至體,還原立體形態。
不給空間設限,是本案的主旨,公共區域去除多餘的隔斷,各區域獨立而又彼此聯動。
7m長的大陽臺貫穿了整個客廳、茶室休閒區,從頂到地的落地窗,讓室內的光線始終保持在最佳狀態。
落地玻璃窗前,萬家燈火、室內光影都映在其中。
材質間的切換,多得於節點處的銜接工藝,使得空間內的結構變化自然流暢。無須繁複的軟裝點綴,空間自然的留白便能呈現這樣的低調奢華。
採用無主燈的設計,不同的可旋轉射燈能夠讓整個客廳呈現出不同的明暗變化,很好地營造出夜晚寧靜的氛圍,柔和的光線起到放鬆減壓的效果。
夜晚的落地窗景。
多功能區
生活是多面的,讓環境來改變來迎合我們的需求,賦予家更多的功能性。飲一杯清茶,以慰風塵,三兩好友齊聚一桌,品茶暢談,好不愜意。原木的茶桌自帶樸素氣質,落地的開放式書櫃,讓茶室的書卷氣息油然而生。
落地的開放式書櫃是茶室的背景牆,可放置書籍、文玩擺件、盆景等,打造一個自己專屬的藏品空間。
最為吸睛的是樹幹茶桌,利用原生實木打造,取之自然。整體風格是偏向禪式風,貼合茶文化以及居住者的審美需求。
陽臺打造成休閒區,連線了茶室與客廳,相通的設計令空間自由感更足。小朋友玩耍或者午睡、親朋好友相聚時喝茶閒聊,區區幾平米變得相當實用。
主臥
燈光烘托氛圍,開啟品質睡眠空間。
牆面是素淨的灰色與溫暖原木色進行搭配,木飾面板的紋理簡約而有別質感。
牆面採用灰色、淺棕色的木飾面來裝飾,配上一個懸掛床頭燈,營造簡約舒適的睡眠環境。
劃分了睡眠區、衣帽區、洗漱區,獨立分割槽互不干擾。
主臥門跟牆面是進行配套的,避免出現不連貫的設計,破壞整體的臥室風格。
透明黑玻璃衣櫃門讓人一眼就能找到自己需要的衣物,櫃門開啟時感應式燈帶隨即亮起,十分人性化。而且黑色的玻璃櫃門,在白天的情況下是完全不透明的。
衛生間門是玻璃門,作為隔斷之餘的裝飾,這個杜拉維特的懸空馬桶也是顏值擔當,幾乎沒有普通馬桶的笨重感。
兒童房
玩樂與學習並重,上床下桌躍層設計,孩子的世界就應如此繽紛。
兒童房是結合了孩子的成長需求,進行了多功能化設計,睡眠與學習、玩耍都能滿足到。考慮到孩子書籍、玩具、衣物的收納問題,所以充分利用牆面及樓梯空間,做了不少的收納櫃。
兒童房按照效果圖一比一落地,全屋櫃體採用愛格板,十分環保。尤其是這個兒童床,是現場直接定製的,用結實的鋼結構進行搭建,安全有保障。
衛生間
採用專門定製款大理石紋白磚鋪設牆面,繁複的紋理給人眼前一亮的感官體驗。懸空壁掛式馬桶、淋浴間壁龕,儘可能在有限的空間內發掘更多的實用設計。












































 
			 
			 
			 
			 
			 
			 
			 
			 
			 
			 
			 
			 
			 
			 
			 
			 
			 
			