硬裝分析 | 色彩搭配 | 成品傢俱 | 全屋定製
設計型別 | 精裝房 · 軟裝設計 · 硬裝局改
專案地址 | 成都 · 朗基和今緣
設計風格 | 意式極簡風
樓盤戶型 | 4室2廳2衛
第一次見到倩倩,著實讓人眼前一亮,這是個精緻時尚、健康活力,有自己獨特審美的小姐姐,她對生活的熱情,就是要努力讓自己活漂亮,她說只有把自己過好了,才有能量讓身邊的一切都變得更好。
所以關於新家的一切,她期望能在最大程度上取悅自己,下面就讓我們一起看看她對新家有哪些期待。
裝我愛的色彩
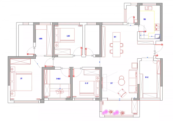
客廳 | 餐廳
倩倩是一個時尚博主,她自然對家的顏值要求很高,在裝修正式動工前,倩倩就已經從網上吸收了大量裝修經驗,總結了她認為將房子裝出高顏值3大必備屬性:①深色顯高階,②色少不顯亂,③設計款更出圈。
深色顯高階
“我瀏覽了很多家的完工照,無一例外發現,偏深色系的裝修都更顯質感,看起來也更高階”,所以深色是倩倩期望的空間色調。
這一想法與規劃師李豔不謀而合,“屋主家原始精裝房地面是深灰色地磚,門框、門扇也是深色的,這樣的硬裝基礎,淺色風格很難適配,”因此全屋的設計方案,圍繞著黑色展開。
全屋中的定製櫃體、背景牆面、沙發等大型傢俱都選擇了深色系,天花板上的燈具、牆面的裝飾畫也均以深色為主,分佈在空間的各個角落,達到視覺平衡。
同時,空間中每個場景下都增添了獨立的光源,避免一盞燈照亮全屋,更填氛圍感。
色少不顯亂
除了對色調的要求外,倩倩對空間色彩數量也有要求,“家裡的顏色要儘可能少,才不會顯亂”倩倩這樣表示。
因此,全屋中不僅大件的傢俱進行色彩控制外,就是紙巾盒、垃圾桶等生活用品也大都也是黑白灰等中性色,盡最大可能讓家在生活過程中也能保證色調統一。
設計款更出圈
除了透過色彩來提升整體高階質感外,房間中的設計款單品也不可或缺。比如Cassina品牌的烏得勒支扶手椅,MOFAS的人體雕塑燈,都是大師設計,十足的設計感。
客廳的熊貓石茶几、氣球男孩擺件、主臥背景牆上的裝飾,都是倩倩一件件從網上細心淘到的。不得不說,這些單品賦予了空間別具一格的調性與逼格。
改我喜歡的吧檯
吧檯 | 衣帽間
除開裝飾外,空間中最亮眼的設計莫過於一進門正對客廳的超大吧檯。
倩倩說她最希望家裡有個吧檯和酒櫃,能和朋友在家小聚暢飲,“一開始有考慮把餐廳打造成經常聚會的場地,但後來覺得若將酒吧與餐廳結合起來,著實缺乏儀式感。”
考慮到客臥的利用率太低,規劃師將客臥與客廳打通,打造面朝客廳電視牆的專屬吧檯。吧檯對面還定製了一整面到頂櫃體,作為酒櫃,這搭配簡直就是一個微形酒吧呀。
對於這樣的改動,倩倩表示非常滿意,“與其把這個空間作為大機率閒置的客臥,不如好好規劃實現我自己的夢想,我的家得先讓我舒服。”
當然這樣做的好處還讓客廳空間更為敞亮,也緩解了深色空間的壓抑感,可謂一舉兩得。
作為時尚博主的倩倩,需要龐大的儲物間,才能滿足自己大量衣物、配飾的收納,另外還要有獨立的梳妝檯,以及優良的採光條件,來滿足拍攝需求。
衣帽間無遺是整個房間中最佳的選地,近5m長的深色衣櫃,兼顧了收納要求和裝飾性,黑色櫃門讓衣物一目瞭然,搭配時非常便利,而這就是另一個讓倩倩十分喜愛的地方。
如何熱愛生活?倩倩說,把家變成我願意待的地方。
實現我愛的人的願望
書房 | 兒童房 |父母房
實現自己的夢想,也要滿足家人的願望,愛自己不等於忽視家人對生活的期待。在和每個家庭成員深入溝通後,倩倩也為家人準備了特別的小驚喜。
“兒子一直和我說自己未來想成為一位宇航員,長大後還要帶我去太空旅行,所以在兒子的房間裡,我特地買了宇航員擺件,兒子喜歡極了”倩倩說“小孩子的世界總是奇思妙想,所以我想盡自己可能實現他所有的願望。”
多功能的書房是給倩倩老公專門準備的,平時加班較多的男主人,很喜歡這樣一個獨立書房,不僅可以安安靜靜在這辦公,想要休息的時候,還可以在榻榻米上小憩一會兒,放鬆大腦。
父母房的牆面特別刷了倩倩媽媽最愛的霧霾藍,靜謐感的淡淡藍色調,是父母喜愛的專屬空間。
一個不會愛自己的人,也很難給予別人真正的關心和愛,因此真正的愛別人之前,我們要學會先接納自己,滿足自己的期待與願望,這樣才能為別人付出無條件、無保留、不求期待的愛意。
裝修,這件能夠提升生活幸福感的事情,希望每個人都可以按照自己的意願來進行,真正取悅自己,給自己集聚幸福的力量。
- 平面vs原始 -
①打拆原本展示間的輕體牆,用長吧檯代替;
②全屋配色以黑白灰為主,配合大量茶色玻璃,打造高階感私宅;
③每個空間至少保有2項以上的關聯功能性設計,將日常生活的便捷度提升到最高。


























 
			 
			 
			 
			 
			 
			 
			 
			 
			 
			 
			 
			 
			 
			 
			 
			 
			