/
專案地址丨Project Address:北京
設計丨Design:Nirvana
面積丨Square Meters:90㎡
攝影丨Photograph: 梵鏡
▲這是一箇舊房改造專案。
住宅地處交通樞紐繁華地帶,因為生活便利,上下班方便,於是在此基礎之上,即將成為新婚夫婦的他們選擇將老宅翻新入住。
說起來業主原本是戴森公司的員工,我們認識也是因為在她那裡買了吸塵器和吹風機,因為蠻聊得來,所以一直
在聯絡,後來因為經常在朋友圈以及好好住上看到我的作品,覺得很不錯,正好自己的房子也有了裝修需求,所以聯絡了我。
在前期溝通中,我們瞭解到這個房子是他們打算用來做婚房的,這幾年主要是他們兩個人住,所以在生活品質上需求比較多,主臥的設計格外重要。
➀.男業主想要能有自己專屬獨立的遊戲空間,女業主則需要儘可能隔出一個衣帽間,因為空間有限,這是需要重點考慮的問題;
➁.次臥在前期是不考慮長期住人的,所以希望能夠先做他用,後期需要的時候再進行改造;
➂.廚房很昏暗,而且櫥櫃完全不夠用,並且因為老式管道的影響櫥櫃利用率也不高的,冰箱沒有位置放,並且不介意開放式廚房;
➃.因為房子位於小區一樓,所以光線很差,因為在8-10年內不會考慮換房子,所以儲物空間也需要著重考慮,但是不能過於犧牲效果;比較喜歡溫暖的日式風格。
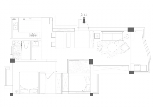
戶型設計介紹 | House Type
◇因為是舊房翻新,所以在結構上的改造比較大,為了解決房子在一樓非常潮溼的問題,在我們建議下,全房的地面牆面都做了防潮架空處理,而正好利用這樣的地面高差我們在進門的位置做了一個日式的玄關落灰區,實現了功能及美觀的共存,因為光線不好的原因,在空間佈局上都在考慮通透,開放。
客廳 | Sitting room
◇利用客廳超長的縱深將電視背景設計為55公分的深櫃,保證效果的同時,擁有了一個將近4米多長的大衣櫃,並不在考慮傳統的電視,而是在頂面製作幕布槽放置電動升降幕布。
◇考慮到空間因素,將實用型與美觀性結合。從收起的幕布後可看到整面背景牆櫃體,收納空間最大化。整體色調以白色為主,原木色調和,黑色點睛。過濾掉其他複雜繁瑣的顏色和裝飾,在此空間內呈現了柔和溫暖的氛圍。雖整體簡潔,但從細微的細節中,哪怕是地毯的材質或顏色,邊桌的尺寸都是恰到好處,體現著Nirvana設計的用心。
餐廳 | Restaurant
◇原木色為整體,標準的六人桌在保證日常兩人使用的情況下,有客人來也不會覺得擁擠。在餐桌邊設計了儲物高櫃,並在餐桌處區域性鏤空,可以隨手拜訪一些小物品在其中,隨手可取,也可做裝飾用。
主臥 | Master bedroom
◇主臥引入了灰色與白色的色調搭配,靜謐且純粹的色系使整個空間有著令人安定的力量,木色的點綴更讓房間增添的一絲溫暖,整個空間瞬間就有了溫度。
次臥 | Bedroom
◇次臥的寬大日式木門入門即是家裡的完美風景。因為前期不考慮長期住人,所以引用了純正的日式榻榻米設計,兩人時可作為放鬆的居心之地,朋友相聚時是寬敞的活動空間。日式榻榻米下是超強的收納處,真正做到家中無雜物。
廚房 | Kitchen
◇廚房擴大並改為開放式,將櫥櫃的佈置換到沒有多少管道的另外一邊,增加櫥櫃的利用率,並把原本窗戶擴大,增加進光面積。
◇白色小方磚與原木色的櫥櫃相搭配提升廚房亮度,使狹小的空間視覺上更為開闊。考慮到業主的身高和使用便利,廚房檯面最高採用90公分,釋放業主腰部壓力。
END
寫在後面
一個好的設計可以賦予家溫度,這套作品對於我和業主來說都不是一個死物,而是禮物和今後生活的美好憧憬。
在一開始的時候,Nirvana 設計師和客戶關係,但是在設計施工的過程中我們逐漸熟悉並認可對方,信任對方,整個過程中,我們經常一起探討,一起聊天,業主給與Nirvana 信任,我則是幫助他們整合問題,解決問題,更多的站在朋友的角度去為他們考慮。
專案的最後,我們真正的成為了好朋友,雖然合作已經結束,但是們私下還是經常互相安利一些實用的好東西以及約玩。
在這裡,真心的祝福他們往後的婚姻幸福美滿,一起穿新衣,一起住新家,一起用最溫暖的態度對待生活。希望他們喜歡這個禮物!
Nirvana寓意涅槃重生無限美好,只為無限美好。Nirvana設計,旨在創造具有時代風尚的居住空間,傳達精緻優雅的生活理念。















 
			 
			 
			 
			 
			 
			 
			 
			 
			 
			 
			 
			 
			 
			 
			 
			 
			