▲ 建築面積200平,造價80萬(不含傢俱家電),專案座標:青島,完工時間:2021年9月,本案為舊房改造專案,南鄰百年曆史的青島大學,距離海灘也就十幾分鐘的車程,業主對此次裝修更多考慮的是入住後生活的品質化與舒適度,以及希望在智慧與便利性方面得到提升
▲ 平面結構圖
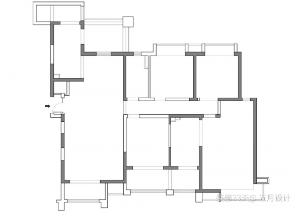
▲ 平面佈置圖
▲ 整個起居空間,拋棄繁複造型,儘量留白,啞光水泥灰地磚搭配無主燈設計,讓家變得明亮、簡潔、舒適
▲ 客廳,超長深色沙發落在水泥質感的地面不顯突兀,反而多了幾分穩重,簡約的線性吊燈,賦予燈光更多層次
▲ 抱枕和掛畫的色彩從傢俱色系中提取
▲ 天然的亞麻地毯,自然穩重,錯落的藝術之圓,啟蒙之至善至美,舒適自在,電視背景成品木作,簡單不失質感
▲ 簡單的木色,素白的牆面,樸拙親切的泥塑,隨手拾一本書,透過大面積玻璃的窗戶,在陽臺一隅感受生活的愜意
▲ 客廳望向餐廳視角
▲ 餐廳,白色巖板桌面,柔軟皮質座椅,兩側分別設計定製餐邊櫃與水吧檯
▲ 內嵌於走廊的開放格,造型精緻的禮品擺件
▲ 廚房,延續水泥灰地磚,強大合理的整體收納設計,符合操作習慣的動線規劃,配置完善的各式廚房電器,遊刃有餘的完成一日三餐
▲ 客衛,乾溼分割槽,提高使用效率
▲ 書房,通鋪原木地板,白牆搭配灰色櫃體與窗簾,精心設計的收納櫃兼貓貓娛樂場所,通道的一頭可通至走廊
▲ 室外的綠色精緻是書房最好的裝飾
▲ 次臥做長輩房,低飽和的牆面與窗簾呼應,選擇大地色大床與床品增加溫暖色調
▲ 臥室納入陽臺,好友贈之梅、蘭、竹、菊裝飾休閒一角
▲ 主臥,樸實的顏色,自然的物件,點綴肌理的木色,加持燈光效果,營造溫馨、舒適、放鬆的氛圍
▲ 床頭一角
▲ 床尾,白色雕塑與綠枝組合,取窗外景,與家中綠色呼應
▲ 成品傢俱打造小件收納與女主梳妝區
▲ 主衛乾溼分割槽,極簡的線條與微水泥的元素結合,呈現侘寂格調
文字編輯 | 深深
設計 | 五月設計(青島)
關注公眾號:裝修33天,可獲得設計師更多資訊
版權宣告:裝修33天出品,未經許可不得轉載。
