前天北京第二次土拍,對於房產人和媒體人,應該沒有比這個事情再大的事情了,馬老師團隊也是全員追土拍。同樣也是前天,北清雲際奧森春曉樣板間開放。
馬老師心想,我可沒有時間去看了,追完土拍再去吧!相信很多房產人,媒體人同行也是一樣,先關注土拍,先寫土拍稿子,先拍土拍影片。
北京二次土拍,是全部房產人,媒體人和買房人注意力最集中的一個時間點。
北清雲際奧森春曉選擇這個時間點開放樣板間,大機率是為了減少關注度,減少專案壓力,因為吐槽總歸是少不得的。
原來是,
精心挑選的時間!
刻意的選擇低調!
試想,如果為了擴大影響力,是不是應該是避開土拍節點,選擇在週六日開放樣板間呢?都等這麼久了,還差這週四和週五兩天嗎?
以至於,
前天,所有粉絲群都在聊土拍,只有北清雲際業主群聊樣板間,聊裝修,嘩啦嘩啦的聊一天,我也沒時間細看。
昨天,馬老師來了,看看這樣板間到底做的怎麼樣!
本文,主要呈現北清雲際和奧森春曉的樣板間實拍!
關注馬老師幫選房公眾號新增選房師微信,加入:
全北京最大的“奧森春曉北清雲際交流①,②,③群",群編號為,007,023,016群。
為什麼好多群,因為人多!
你也來吧。
我看北清奧森交付樣板間
北清雲際奧森春曉的交付樣板間,馬老師看完後的感受如下:
1、整體來看,牆面屋頂白牆,客廳地磚,臥室地板;
2、廚衛基本採用國產小眾品牌;(文末有交付標準表格照片,大家可以看)
3、可拆牆體的基本上保持拼接樣式(據說方便貼牆紙);
4、北清雲際,奧森春曉用材用料全部一致,4個樣板間也做在一起;(4個樣板間可以一起看)
5、被吐槽比較厲害的的衛生間的柱盆(洗手盆),和白色塑鋼廚房門,已經很多年沒有見到了,基本上要到出租屋才能看到這樣的塑鋼門;
6、沒有吊頂,沒有任何裝飾,沒有空調新風;
7、戶型格局和之前分析一致,應該唯一可以保留的是地磚(諾貝爾品牌);
8、基本上保持了出租標準,在二手房中介眼中,這個標準叫精裝,如果用於自住,這個標準遠不夠,我想大部分家庭後期會做拆改;
9、奧森96平米的大廳比較大,不過這是一個視覺假象,96平米做2居室的話,也會做成改善2居室,不會客廳巨大,房間巨小,這個戶型設計就是三居室,如果那個書房隔出來,侷促感馬上會出現;
10、131平米的戶型進門對著廚房,如果側面開門可以解決南北通透問題,但是,進門的過道會略浪費,還有就是不大氣,有這個預算的粉絲,馬老師建議看看檔次更好的專案,去震撼一下。
11、北清雲際的83㎡的戶型的儲藏間確實夠大,好在是在一角落上,按說這個套型面積不應該配這麼大的儲藏間,比例失調;
12、北清雲際108㎡的戶型,在保持功能性不錯的情況下,餐廳空間會有些侷促。
整體來看,這幾個樣板間,都保持了出租標準,剛需接盤,也會做改動和裝飾。考慮到這一波產業裝都需要拆,想通了也就這樣吧。只是對於剛需,拆的時候應該會有些心疼!
馬老師說過,北清雲際奧森春曉已經是海淀工作人群的最優解,不完美就不完美吧!要不買哪裡呢,預算提高400萬,還是跋山涉水去朝陽?
最優解影片見馬老師幫選房抖音號。
是不是,已經選擇北清雲際的準業主們?
北清雲際交付樣板間
北清雲際選擇的是83㎡和108㎡做的交付樣板間。先來看看戶型。
- 北清雲際交付樣板間戶型所在位置
 
北清雲際83㎡戶型圖
我來點評
MY VIEW
全南戶型,雖然不通透,但是朝陽面寬比較大。相比於這個戶型的傳統戶型,小臥的開窗加寬了,一定程度減少小臥憋憋屈屈的感覺。
這個儲藏間+家政間確實夠奢侈,好在位置在一個角落。
北清雲際83㎡交付樣板間實拍
- 客廳
 
- 廚房和廚房的塑鋼門特寫
 
- 主臥和主臥的視窗特點
 
- 次臥和次臥的視窗
 
- 衛生間(左邊是淋浴房,因為所在位置有承重,目前為貼畫)和進門的儲藏間實拍
 
北清雲際108平戶型圖
我來點評
MY VIEW
9.9米的南向三面寬,保證了房間主要功能區都南向。客廳餐廳各有其所,配餐用餐都很方便。
室各自獨立一角,私密安全。
功能性不錯,體量感不足。
北清雲際108平米戶型圖實拍
- 客廳和餐廳角度看客廳
 
- 餐廳
 
- 廚房和廚房門實拍,冰箱洗衣機都在廚房
 
- 主臥和主衛
 
- 次臥
 
- 小臥
 
- 客衛
 
奧森春曉交付樣板間
奧森春曉的樣板間也是有2個,96平米和131平米,這是所有戶型裡面最好的兩個戶型。
奧森春曉96平米戶型圖
我來點評
WHITE DEW
格局方正,但,次臥對著衛生間,功能有待最佳化。
戶型北側帶連廊,可以做到南北通透。
說一下客廳的+1空間,5700mm總寬度,如果客廳3400mm書房2300mm,應該是兩個功能區分配最合理的安排了。
不改,客廳相對房子過大;改了,兩個功能區又有點小!
實際看樣板間,確實如此!
奧森春曉96平米交付樣板間實拍
- 廣角拍攝奧森春曉96平米的大廳(餐廳+客廳+隔離書房),注意啊,這裡要隔出一間房才是3居室
 
- 廚房
 
- 衛生間和次臥(乾溼分離的衛生間,其實幹溼分離提高衛生間使用效率,缺點是正對臥室門口,外側為連廊)
 
馬老師連廊介紹的影片可在馬老師幫選房抖音號進行觀看
- 主臥室和主臥的窗子(這個凹進來的位置,是主次臥室的衣櫃,對照戶型圖看到更清晰。)
 
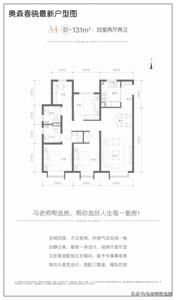
奧森春曉131平米戶型圖
為了讓戶型圖和交付樣板間朝向一致,馬老師把戶型圖做了反轉,需要看原圖,公眾號裡面點選放大就可以看原圖。
我來點評
MY VIEW
這個戶型看著方正,但是仔細看,一進門就是廚房,向前走,餐桌擋道,廚房南側空間又浪費。是不是把餐桌挨著廚房放置會更好呢。這樣過道就狹長!
房間比較勻稱,北側次臥偏小,建面6.21平米。南側的次臥,視窗小。
奧森春曉131平米交付樣板間實拍
- 客廳+餐廳
 
- 廚房(目前廚房的門對著戶門,可調整為對著客廳開門,這樣可以讓餐廳和客廳通透)
 
- 主臥和主衛
 
這個圖是馬老師在主臥的衣帽間位置拍攝的主臥和主衛,可以看清主臥的結構。
- 南側次臥(挨著主臥的次臥)
 
次臥突出的這個位置自己的衣櫃位置,背後是主臥的衣帽間。
- 北側次臥
 
- 北側書房和挨著的客衛
 
主客衛是對稱的,內部配置也是相同的。
北清雲際奧森春曉交付標準
兩個專案的交付標準,用工用料完全相同。
附上專案的材料名單。
需要原圖可以新增選房師微信索要。
圖片上傳公眾號,畫素會失真。
工藝工法
北清雲際奧森春曉的交付樣板間給大家介紹完了,大家對這兩個專案的交付樣板間感覺怎麼樣?
