隨著極簡風的流行,給牆面刷大白,從最初的普通也再次迴歸到了主流。不過對於追求溫馨感的朋友來說,全牆面刷大白,難免還是會有一點單調、平淡。
比如本案屋主就是如此,因此,在空間設計中,就放棄了當下主流的白色調,並堅持以低飽和度來定位空間。雖說完工後的效果,並沒有以白色調為主的空間,看起來那麼的敞亮,但當低飽和度搭配上啞光材質後,卻也真的超顯品質感。
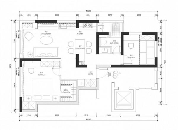
平面結構圖
新房面積90㎡,屋主是一對新婚小夫妻,原戶型非常奇葩,不僅擁有兩個入戶門,空間也被牆體做了徹底的分割。也正因為這樣,導致空間的利用率很低。比如餐廳過於擁擠,衛生間過於狹小,廚房與其它空間沒有互動,以及客廳過大等等。
而屋主對空間的需求,其實和大多數年輕人都一樣,就是希望在繁忙的工作中,能有一塊溫馨的避風港,從而靜心享受生活的美好。
平面方案圖
結合現有的空間情況,佈局改造如下。
1、拆掉所有的內牆體,重新整合空間功能,並將面對衛生間的入戶門封閉。
2、原客廳以主臥室定位,並延伸出一個衣帽間,解決日常的收納需求。
3、當原主臥與廚房打通之後,則以一體化的結構,融合了客廳、餐廳、廚房功能。
4、衛生間向外延伸,並將臺盆獨立在外,在提高使用面積的前提下,實現乾溼分離。
5、次臥目前以多功能間定位,滿足基本需求,並賦予空間更多變化。
玄關
透過玄關就是一體化的公共區,大量的木元素,以及低飽和度的色彩定位,一進門就給人一種愜意、舒適的氛圍體驗,且盡顯品質感。玄關櫃則設計在了入戶門左邊,在滿足日常收納的前提下,還內嵌了一臺冰箱。(Ps:可以從平面圖看到)
客廳
放棄當下主流的刷大白,並給牆面刷上微水泥,再透過低飽和度色彩的軟裝烘托,整個空間都充滿了暖意,完美符合屋主對居家氛圍的需求。而在空間佈局這塊,則將南陽臺完全納入室內。這樣一來,既有效提高了空間的通透性,也延伸出了一塊休閒角落。
電視背景牆並沒有設計複雜的造型,而是利用最簡單的模組讓電視機實現了內嵌,並與底部的地臺,形成了立體的層次。而旁邊的一組儲物櫃,則在彌補空間收納的前提下,也打破了空間邊界。
灰色的布藝沙發、極具現代感的黑色壁燈、以及輕盈的邊幾組合,既與整個空間基調融為了一體,也最大化彰顯出了肆意、慵懶的生活狀態。
客廳看向餐廳視角,頂面做無主燈設計,並透過磁吸軌道燈貫穿客廳,既賦予了視覺更多的延伸性,也凸顯出了極簡的格調。
餐廚區
當把廚房完全打通之後,則是採用一字型的結構,設計了一組櫥櫃。雖說看起來有一點小了,但近3.5米長的尺寸,對於家裡只有兩個人的屋主夫婦來說,也基本上夠用了。
考慮到餐桌旁邊的一堵承重牆無法拆掉,所以在設計餐桌時,就以定製的方式,讓兩者結合在了一起,以便延伸出更多使用空間。
衛生間
衛生間在原有的結構基礎上,向外面做了延伸處理。同時,將臺盆櫃獨立在外,不僅實現了乾溼分離,淋浴間裡還安置了洗衣機裝置。
主臥室
來到主臥,空間依然保持了低飽和度的色調,在與外面統一的前提下,也賦予了空間一抹靜謐、淡雅的氣息,從而讓睡眠環境更加舒適。由於床頭旁邊有一塊內陷空間,直接將其設計成儲物櫃,既彌補了收納能力,也充當了床頭背景牆的功能。
利用原有的空間尺寸,在床頭側面規劃出一個衣帽間,也是相當的實用。尤其是給衣帽間安裝上灰色玻璃移門,更是兼具了拓展空間、遮擋隱私的作用,且顏值也很不錯。
電視背景牆同樣設計了櫃子,並配置了一張書桌。這樣一來,不管是用來閱讀,還是用來梳妝,都十分的方便。
次臥室
次臥延續了整體的基調,佈局與我們常見的家庭也一樣。雖說沒什麼亮點,但實用性是沒話說的,並且還不會出現隱形浪費的情況。
整個案例看下來,可以說戶型很一般,即便改造後了,也依然不太理想。不過低飽和度色調所營造出了氛圍感,也真的是很舒適。尤其是當空間中的材質都採用啞光面後,更是將品質感給展現得淋漓盡致。
圖源:愚空間設計
