家的溫度
是對每位成員的關懷
這是一間20年的學區老房,業主裝修這套房子主要是為了小孩上學期間陪讀。原戶型相對方正,但各空間面積比例失衡,北房空間相對侷促。
如何利用好這間房屋的空間是我們為業主思考的最大命題,我們在保證基本機能空間的同時,還為這個四口之家創造出一個獨立的儲物間,滿足日常的收納需求。
專案資訊:
地址:無錫 新華三村
戶型:三室
面積:120㎡
預算:約40w
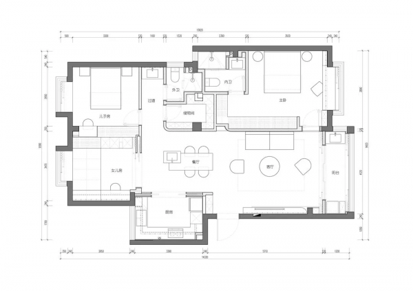
戶型圖
原始戶型的缺點:
1.南陽臺開間尺度較大,壓縮了客廳的橫向開間,使客廳的舒適度降低
2.入戶沒有獨立的收納空間,入戶顯得非常凌亂
3.廚房空間較小,因為北面的陽臺壓縮使得沒有足夠操作檯面
4.北面2個房間的開間舒適度較低,尺寸問題導致床的尺寸不滿足業主需要的1.5m床的尺寸
5.主臥動線比較繞,走道尺寸嚴重縮小了整屋的使用率
6.原始衛生間面積較大,空間的配比失衡
改造重點:
1.壓縮廚房部門尺寸,增加了入戶鞋櫃的功能,使入戶的體驗不再凌亂
2.南陽臺尺寸橫向壓縮,讓客廳的開間得到釋放,使得擠壓出主臥的動線,並用隱形門的方式隱藏房門,使得木飾面背景更完整
3.北房的尺寸向走道借,使得2個房間開間變大後舒適度增加
4.設計出獨立的儲物間系統,可以堆放全屋的生活雜物
5.利用走道的尺寸和原牆體尺寸,增加主臥的衣帽櫃收納,讓衣物有充分的擺放位置
玄 關
屋主日式風格,我們沒有將空間打造成一個傳統的日式住宅,而是取其自然的元素融入到空間之中。
懸掛結構的電視櫃,在拖地時也非常方便,不會產生衛生死角。
電視背景兼具收納功能,為小空間的打理提供了便利,藤編的躺椅讓客廳更具舒適度。
由於空間層高不高,在頂部的處理上,我們最大化吊頂高度,使空間沒有壓抑感。
主臥門與木飾面融合,大面積的木色增加空間的溫潤感,進門如結合鋼板挑面可以讓業主平時新增一些裝飾品和植物。增添些生活樂趣。
木飾面保持了空間的溫潤感,大面積的白色乳膠漆留白可以讓空間保持對應的透氣感,香格里拉簾的設計比紗簾更顯質感增加了空間的光影趣味。
黑色的落地燈增加了客廳空間在晚上時刻的閱讀功能,黑色的點綴讓木色的質感更為凸顯。同時落地燈溫暖的色溫也可以渲染客廳的角落,給人以安靜溫馨的直觀感受。
棉麻編織地毯增加了空間的樸實感,內斂的空間情緒從中傳遞出來,選用了不鏽鋼腿的餐椅可以讓餐廳更顯精緻和硬朗。
不鏽鋼配木色是比較討巧的搭配。現在有很多清洗工具是專門針對地毯來使用的,非常便捷,所以在搭配空間軟裝時,地毯是一個非常好的選擇。
藤編質感的休閒椅同樣呼應了空間中的木色,椅子配了布藝的坐墊增加了舒適度,傢俱的對坐關係促進了在客廳的交流。
布藝沙發的質感增加客廳的輕鬆感,輕鬆的質感可以讓客廳在自然光和木飾面的襯托下更有居家感。
在空間介面的處理上,我們對比各個面的比例與關係,利用材質來平衡尺度的美感。
鋼板置物是我們經常用的設計手法,輕薄的體量使空間介面具有透氣感,同時業主可以隨時調整和改變置物的內容增加生活的樂趣。
傢俱由設計師依據空間統一把控,在尺寸、比例、材質上相互協調,營造溫馨自然的居家氛圍。
香格里拉簾更好地弱化南朝陽光的直射,讓自然光感更顯層次。
圓弧的櫃體由全屋木作定製與設計師對接製作,我們仔細把控弧度與比例,讓電視櫃在空間中能呈現優美的弧度。
餐 廳
除了用木飾面增加空間的溫潤感,我們還用一些暖光燈帶來增加空間的氛圍。
鋼板的安裝需要提前預埋,在油漆工進場前就需把結構預埋好,這樣收口處才不會有鋼板的焊接痕跡。
餐廳檯面與西廚水池根據餐廳的實際空間尺寸,設計出圖定製成一體的結構,賦予了西廚和餐桌的整體功能。抽拉式龍頭可以方便水池的清理和打掃。
餐廳結合吧檯的構造,讓餐桌兼具西廚操作檯面的功能,中廚與餐廳的關係也非常緊密,便於日常就餐與整理。
硬裝簡化材質,增加體塊關係,讓傢俱和飾面有更好的融合感。由於原有梁位比較低,我們採用圓弧面來模糊梁的邊界,使其更為輕盈。
臥 室
灰色藝術塗料的處理讓臥室的牆面更顯層次,皮具的臥室床盒,讓簡約的空間更顯質感。
藝術塗料直接落地,簡化了傳統踢腳線的安裝,讓空間更乾淨利落。
保留原始飄窗的位置,利用飄窗深度設計成主臥閱讀區,臥室的閱讀區域保留出部分抽屜收納功能和部分敞開的放書區域。
由於飄窗不能拆除,我們利用其深度,做了一組書桌與收納櫃,滿足業主閱讀辦公的功能。
兒童房
利用懸空的書桌結構,內建鋼結構處理,讓小空間的書桌不再壓抑和緊湊,書桌尺寸留出了親子活動一起學習閱讀的區域。
來源:設計師郭恆博@PChouse家居畫報
編輯留言
歡迎大傢俬信小編,來聊聊裝修這件事吧~
