業主是一對年輕人,家中也有老人和孩子,一家人都比較喜歡新中式的裝修風格,於是,設計師按照業主的想法,對整個房屋進行了以新中式為主,以現代感為輔的設計改造,配上中式傢俱、掛畫的選擇,房間整體溫文爾雅,中國風中流淌著現代感的律動,效果客戶直呼yyds!
基礎資訊
專案名稱:豪第坊
建築風格:新中式+現代風
主要材料:木質地板,進口塗料,石膏板,瓷磚,新中式傢俱,極簡落地門等
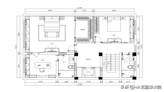
01平面圖
應中式裝修風格,房間的設計採用傳統的方格型的設計,臥室設計在房屋內側,能夠有效避免噪音影響休息睡眠。
02客廳
客廳的中間地板採用的是純黑色的設計,效果就是給整個客廳奠定了一種沉穩的基調。新中式的沙發不用多說,效果直撲眼底,美不勝收。沙發後面採用的是中式的鏤空隔斷,這不影響客廳整體的採光效果,而且又給客廳增加了中式風采,配上中間的一盆迎客松的盆栽,既提升了顏值,又能彰顯出業主好客的熱情。
業主一直嚮往能夠有一間充滿陽光、滿眼綠色的房子,設計師採用的是整面非承重牆用落地式大玻璃的設計,業主可以坐在家裡看著院子裡的綠樹鮮花,享受愜意的下午茶時光。
03主臥
主臥的空間留得很大,設計師將空間最大程度地向休息室傾斜,圓弧形的吊頂突出中式的風格,暖色色系的大面積鋪陳,加上床體深棕色的點綴,讓睡榻更具靜謐感。
衣帽間和臥室採用的是推拉式的大玻璃門,透光效能更好而且不佔面積,極窄金屬黑邊框和窗戶形成左右呼應,加深了房間的現代風格。
04主臥衣帽間
衣帽間大大滿足了客戶的收納需求,保證了臥室不顯擁擠和雜亂,配上簡單的綠植,衣帽間也能顯得生機盎然。
衣帽間的空間很充足,各式各樣的漂亮衣服女主人都可以在這裡更換,後期業主可以在這裡搭配一個全身鏡,以後每天出門之前都能挑選到自己喜歡的衣服,照照鏡子,化個美美的妝,想想都激動。
05老人房
古樸的落地燈體現著老人房的莊重溫雅,木質地板能夠最大化地減少噪音,滿足老人家的休息需求,加上鋪有地毯,能夠防止老人家生活中的不小心磕絆等等。
老人房的設計相對更加傳統一些,整個房間以房屋中線為中心向兩邊對稱開展,一側做有透明和非透明衣櫃,一側便是窗外美好的景色,加上床頭背景牆上中國畫的設計,相信老人肯定會愛上這間房子的。
06小孩房
小孩子的房間也是採用的木地板,每家的熊孩子都喜歡光著腳到處跑,木質地板的選擇更好地對孩子起到防滑、防涼的作用,床頭背景裝飾畫是採用的高山、鴻雁的題材,象徵著孩子以後能夠目光高遠,如鴻雁一般展翅高飛,勇於追逐自己的夢想。
兩側的床頭櫃是對稱的設計,白色的櫃門配上金色的把手更顯質感,圓形的兩盞床頭燈將中國風體現得淋漓盡致。
休閒凳和休閒小吧檯的設計十分實用,孩子們的零食、飲料都喜歡拿著到處跑,拿到臥室飲用,有了這個小吧檯,就可以讓小孩子乖乖的坐在這裡喝啦,不然就會弄得房間裡到處都是。
07書房
書房給人的感覺總結起來就是一個字:禪。背景牆做了滿滿一牆的書櫃,中部留有大面積空白,正中心配有圓形的山水畫,左側配有一副中國風的潑墨中國畫,加上溫瑞如玉的書桌和兩個小圓凳,整個書房安靜祥和,這也許就是戶主想要的心境吧。
古典的書桌配上文房四寶,一股墨香隔著螢幕彷彿都能聞到,如果再會寫毛筆字的話,在這裡揮毫潑墨,豈不是陶冶心境的絕佳地點?
平時,可以靠在書房的飄窗上,看著微風吹動著白紗簾,或是聽一聽舒緩的音樂,或是看一本自己喜歡的書,或是遠眺一下遠方的風景,這是最好的自我修行。
整個房間是中式與現代的相交相融,看完讓人久久不能忘返,目光流連於客廳的中式沙發、流連於書房的禪意設計,流連於臥室的靜謐祥和。
