每日忙忙碌碌,但我們都知道,自始至終這個世界上都有一個落腳點,他是溫馨與寒冷的隔絕,與外界截然不同,它分割了一切煩惱與風雨,擔負起所有的責任與溫馨,它充滿愛,關懷及瞭解,成為一個人養精蓄銳的場所,而這個地方就是家。
入住:
本案的業主是一個三代同堂的五口之家,夫妻倆喜歡讀書,旅行,有個正在上小學的兒子,並與父母一同居住。
業主需求:
業主夫妻溫文爾雅,性格也十分的含蓄,一家人表露出對新居的期待是簡潔且舒適的,業主夫妻平常都喜歡看書,而且十分喜好中國傳統文學,從語言和探討中便充滿著文藝氣息,再加之兩位老人喜歡喝茶待客,可以說是書香門第。總的來說,他們希望新家可以既實用又美觀,又要乾淨舒適,生活上,有充分的活動空間,又能讓老人安靜地休息,實用性上,希望保證充足的收納,實現中西廚。
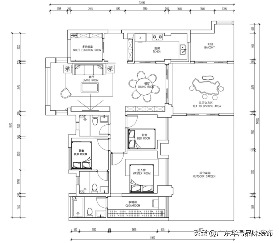
房子的戶型與整體佈局是怎樣的呢?
從戶型圖來看,房子的整體格局十分的周正,且呈現並列式的佈局,動態區分佈於北側,房間開闊,視野清晰,而與此相對,臥室封閉且面積較小,多處切割+承重牆的設計,使得對於三代同堂的家庭來說,生活的舒適度不夠,再加上居住人口較多,衛生間太過擁擠,許多生活物品都無法得到很好的放置。
設計師是如何改造和設計的呢?
經過綜合考量業主的需求,設計師選擇在現代風格的基礎上,加入中式風作為調節,客餐廳整體保留了自然環保的原木材質,使得空間十分的開闊自然。佈局上,在原先四房的基礎上,對其中一間次臥做了很大改動,透過將牆壁打通,增設一間衛生間和衣帽間,緩解生活上的收納與居住難題。色彩上以溫潤的原木色與白色作為主打,在視覺上放大空間並且顯得空間縱深感加強。
各功能區的風格和特點是什麼?
1. 整個客廳以實木色作為基底,去除蕪雜,只以簡單的線條裝飾,使得空間縱深感加強,地板採用了水磨石的材質,低調溫潤又不會顯得花哨,電視背景牆以環保材質的乳膠漆作為打底,僅以同材質的電視櫃,平衡空間的單調感,沙發選用了中式的窄邊沙發,L型的佈局使空間變得豐富有層次。
2. 餐廳與客廳不同,以白色為打底的空間彷彿一層杏仁巧克力,白色的大理石餐桌富有現代感的時尚氣質,杏色的麂皮餐椅與千鳥格椅背跳色搭配,使得空間的藝術感增強,餐廳一側以內嵌式置物架增加實用性,展示臺上擺放的香薰與擺件,讓空間多了些看得見的“靈氣”。
3. 廚房的色彩搭配與餐廳承襲,檯面使用白色大理石,櫃門則以暖原木色使得整體的色調統一一致,廚房多餘的位置拿來安置冰箱等大型電器,將空間面積利用到極致,U型的環繞式佈局,也將“洗切炒盛”的動線安排的條理明晰。
4. 臥室整體的配色比較復古溫馨,深棕色的床頭靠背與淺色的床品搭配,構成主要的色彩,很好的避免了單個顏色飽和度過高而帶來的突兀感,空間飾品的選擇和材質搭配上相輔相成,原木色復古床在中間起到了很好的色彩過渡,側面的白色鬥櫃款式新穎,衣櫃的腰封處都採用原木色板材,透過無主燈的投射燈的燈光,讓臥室看起來更加質感而且整潔有序。
5. 衛生間高質量的長虹玻璃門透光不透人,整體淺色的空間打造,無需過多的裝飾便顯得寬敞通透,整體三分離的佈局,馬桶區和淋浴區各自獨立,使用更加乾淨衛生,也提升了平時的使用感和效率。
業主最喜歡的功能區?
兒童房採用了榻榻米的佈局,很好地肩負起了空間的收納作用,床頭預留了一層開放展示格,可以用來放置孩子喜歡的睡前讀物和玩具,
佈局上,床櫃一體的形式將休息與讀書的功能雙合一,極大地滿足到了孩子成長的需求,書桌下方鏤空增高架放腿,更加符合人體工學的設計,也更能提升日常使用的舒適性。
結語
如果喜歡同樣風格的設計,歡迎參與留言區討論,獲取免費的設計方案和建議!
