現在買一套房子十分的不容易,所以能夠非常幸運地買到一套心儀的房子的話,我想很多人等不到交付的時候,就已經開開心心的開始計劃要如何裝修房子了吧。
大多數人在這個時候都會選擇在網上尋找一些裝修的案例,這樣不僅能夠降低踩坑的機率,而且也能夠方便自己在交房以後裝修出一個自己喜歡的家。
俗話說得好,廚房和衛生間是裝修中一個比較重要的一部分,“金廚銀衛”就能詮釋這一點。
本期我要介紹的這個案例,房子套內面積57㎡,業主是一位50歲的獨居阿姨。
阿姨的家不僅廚房十分的簡約時尚,最關鍵的就是衛生間,宛如身處綠野仙蹤之中,裝修出來的效果令人非常羨慕。
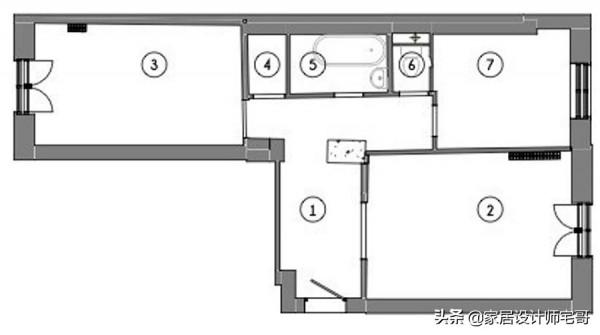
裝修前的戶型圖
整套房子的戶型咋一看就像一把菜刀似的,真別說,這戶型還挺別緻。裝修前的戶型在區域劃分上,看起來是比較固定的,但是這不代表不能夠進行整改,所以讓我們一起來看看裝修後的戶型圖吧!
裝修後的戶型圖
前面做對比的話,可以明顯地看出來,很多內牆在裝修的時候選擇了拆掉,尤其是在廚房和衛生間這一塊,在佈局的整改上比較明顯,但是整改以後住起來反而更加的舒服。
玄關
玄關的空間不是很大,整套房子的木板主要以木質地板為主,但是在玄關處這塊不算大的地板上,貼了一層貼紙,這樣看起來不僅更加的美觀,而且有很強的防滑性。
因為一般下雨天地面都比較潮溼,如果家裡有老人或者小孩的話,很有可能會摔倒,但是地板貼就會減輕這種情況。
左邊的牆壁上安置著幾個用來掛衣服的鉤子,下面則放置著一個板凳,可以坐在上面更換鞋子。
右邊的牆壁上安置著一個比較小的置物櫃,裡面可以用來放置物品。上面是一面壁掛式的鏡子,出門之前可以照照鏡子整理儀容,十分的便利。
距離玄關不遠的地方,放置著一個置物架,置物架分為了三層,每一層都可以用來放置物品。
最上面放置著幾幅畫,還有一些裝飾品,為室內增添了藝術氣息。
客廳
從玄關到客廳的進門處的旁邊利用牆體,設計了一個凹位,裡面放置著一個置物架,上面擺放著很多的書籍和裝飾物,非常高效地利用了空間。
客廳內放置著一個雙人沙發,沙發整體為淡黃色,算上是一個比較鮮豔的顏色,使得客廳整體顯得不那麼單調。
沙發旁邊放置著一個置物櫃,裡面可以用來放置物品,置物櫃上擺放著一幅以及其他的裝飾物,增添了藝術氣息。
沙發下面鋪著一層地墊,不僅起到防滑的作用,而且更加方便進行清潔。
雙人沙發對面放置著一個通體白色的懶人沙發,坐在上面應該會是一件非常享受的事情,後面有一個顏色十分樸素的屏風,增添了美觀性。
沙發旁邊的牆壁上安置著一個豎著的暖氣片,在冬天的時候,能夠為室內進行保暖。
客廳與廚房、餐廳之間擺放了兩扇藤編的屏風作為隔斷,看上去高階感十足。
廚房、餐廳
廚房一眼給人的感覺就是極簡中透露著時尚,櫥櫃是L形式的,能夠用來放置物品的空間比較充足。
大理石灶臺和水磨石瓷磚搭配,上面有一些色彩鮮豔的斑斑點點,看起來十分的美觀,不單調。
櫥櫃下面安置著一個嵌入式的微波爐,可以對食物進行加熱,只用幾分鐘就可以吃上熱騰騰的飯菜。
餐桌餐椅就放置在櫥櫃的旁邊,二者都是木製的,看起來非常的質樸,餐桌上面放置著一盆鮮花,為廚房內增添了美觀性。
臥室
臥室裡安置著一個雙人床,床的旁邊安置著一個通體白色的大衣櫃,裡面可以用來放置衣物,床尾的牆壁上還有一個壁掛式的鏡子,可以用來梳妝打扮。
一邊的床頭處放置著一個櫃子,櫃子裡可以用來置物,上面放著一幅畫,為臥室內增添了藝術氣息。
旁邊還安置著一個暖氣片,可以使臥室內更加的暖和。
床上面放了很多的顏色大小不同的抱枕,坐在床上抱著這些抱枕,或者是靠在上面,肯定會非常的舒服。
洗衣房
衛生間的旁邊有一個小小的獨立空間,裡面放置著一個洗衣機,這是對衛生間進行了乾溼分離。
洗衣機和衛生間是分開的,上方還有一個壁掛式的櫃子,可以用來置物。
衛生間
浴室櫃的臺盆是一體式的,浴室櫃配置了高腳的金屬支架,比較方便進行清潔。
全屋最重點的設計就是浴缸,浴缸周圍的牆壁是晶瑩的綠色,旁邊還放置著一些綠植,宛如身處大自然一般,給人極致的享受。
浴缸旁圓弧形設計的牆面上還有一個壁龕,可以收納放置洗浴用品,隨手就可以拿到,非常方便。
總結:在裝修房子的時候,如果能把廚房和衛生間裝修得十分美觀舒適的話,那對於居住者而言,簡直就是一種極致的享受。
對於這個50歲的阿姨來說,每天回家後自己下廚烹飪美食,睡前再美美地泡上一個澡,就足以消除任何壓力和疲憊。
