一字小戶型,既要滿足收納,又想空間顯大?
住友@狒狒大爺 把主臥的一面牆打造成頂天立地式衣櫃,完美解決全屋收納難題,小房間值得參考!
內容選自好好住APP使用者@狒狒大爺
全文無商業合作
01. 就憑一個櫃子,全屋收納翻倍?
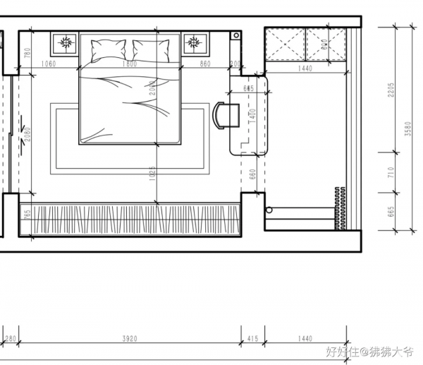
主臥衣櫃選擇了吊軌摺疊門,感謝好好住給了靈感,這個方案特別適合我家,這個位置正好三面都有牆,只要裝門就行了。
為了吊軌保留了地板的整體感,吊頂內部做了實木加固。
內部做了宜家艾格特,除了衣服,鞋子和雜物收納都夠用了,儲物空間應該不比獨立的衣帽間差。
可以說非常恐怖,為了戴森V8,衣櫃內還做了電源插座。
本來摺疊門是內扣手設計,無奈廠家給忘了,只能自己網上找了純銅錘紋小拉手,反而多了些精緻感。
02. 頂天立地式,遮醜又顯大?
衣櫃和吊頂整合在一起,內有中央空調和新風管道,還留了檢修口,吊頂內部為了能掛住滑軌做了實木加固,最終效果非常滿意,白色的吊頂+白色整體式出風口+白色烤漆門+白色軌道燈,乾淨又有範兒。
衣櫃長接近4米,高2米多,進深有0.7米以上。
