入戶門外延,樓梯藏在端景牆後,廚房設計雙入口回型動線,增加操作檯,閣樓規劃五大功能區,動靜結合。改良樓頂斜面窗,打造絕佳觀星視野。醫學博士的六口之家,值得借鑑!
屋主 · 需求:屋主夫婦都是醫學博士,自帶內斂儒雅的氣質與風度。三代同堂,六人居住,動靜結合,功能獨立。面對紛擾的都市生活,一處能夠讓心靈沉澱的生活空間,是他們心中共同的渴望。
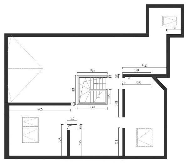
房屋 · 資訊:座標:北京;面積:246㎡;風格:新中式;戶型:頂層+閣樓;居住:三代六口人。
【改造前】
× 儲物功能較弱,一家六口居住,過於雜亂擁擠
× 閣樓最高處只有2米,且多為斜頂,利用率低
× 功能區太少,實用性不足,孩子沒有活動空間
【改造後】
√ 利用獨梯獨戶優勢,將入戶門外延,走廊一側增加鞋帽櫃,一側放置換鞋凳,打造獨立“換裝區”;
√ 一層北陽臺裝置間重新改造利用,設計成單獨的洗衣房;廚房增裝置餐檯,規劃雙入口回型動線,加強與餐廳的互動性;
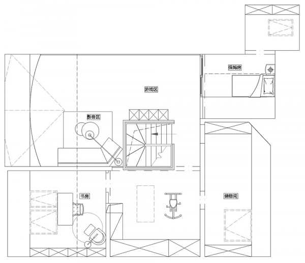
√ 閣樓規劃五大功能區:兒童遊戲區、影音區、書房、保姆房、健身區,動靜結合,滿足一家人的不同需求;
√ 閣樓斜頂下方的低矮空間,沿牆做整面儲物櫃,最大化利用犄角區域,放大收納功能;
√ 閣樓斜面窗統一進行改良,調高窗戶的高度,不影響窗下活動,同時增加採光和通風。
DESIGN玄關
入戶門外延,樓梯藏在端景牆後
【改造重點】在原有精裝基礎上,設計師在玄關端景左右兩側,採用米黃色木紋牆板增設對稱式方形立柱,使得進門後的第一處景更完整大氣。
開門後正對玄關端景,這是設計師在動線主軸上安排的第一個視線點,一點也不復雜,僅僅只是組合了端景牆和端景櫃,能展示、可儲物、有格調,輕而易舉地奠定了整個空間優雅別緻的基調。
端景牆後是通往閣樓的樓梯間,實木直梯造型簡單大氣,而且不佔地方,樓梯下方的空間,設計師選擇了留白,未做任何規劃,適當地留白,空間的可能性更多。
DESIGN
客廳
石材+牆板+金屬,豐富空間層次
【改造重點】沙發背景牆選用牆板進行裝飾,利用牆板與牆板之間的拼接線條,增加牆面的藝術性、裝飾性。
客廳選擇以石材鋪就,設計師利用米黃色牆板和黃銅色金屬線條,打破空間的冰冷感,同時透過三種材質的差異和對比,塑造出簡潔又富有層次的秩序空間。
石材紋理自然流淌,木飾面元素簡單,搭配黑胡桃木大理石電視櫃,黑白灰三色交織,恰到好處,毫無冗雜之感。
DESIGN
餐廚
雙入口回型動線,增加輔助操作檯
【改造重點】廚房規劃回型動線,設計雙入口,增強和餐廳的互動;緊靠餐廳的北陽臺裝置間改造為單獨洗衣房。
餐廳利用金屬線條、灰色調餐桌椅、藍色窗簾,在中式風格中,交織呈現出現代精緻感。到頂門洞設計從視覺上增加了空間高度,兩扇移門後藏著人間煙火氣。
廚房採用灰色地磚與白色櫥櫃形成對比,顯得空間更加明亮簡潔。廚房寬度足足有2.3米,設計師在原L型櫥櫃基礎上,於兩扇門之間增加一字型輔助操作檯,用於放電飯煲、豆漿機等小家電。
DESIGN
主臥
走廊盡頭絕對安靜,不受一絲干擾
【改造重點】主臥在走廊盡頭,與公共區域完全分開,是一個完全獨立的空間。延續電視櫃的色調和材質,靠牆做一組到頂衣櫃,與客廳遙相呼應。
沉穩、溫潤是主臥的旋律,低調的棕與深邃的灰,達到微妙的平衡,冷靜但又帶著溫暖,線條的組合,勾勒出空間的藝術美感。
主衛的頂、牆、地,被簡約的“魚肚白”填滿,看起來格外清爽,其韻悠揚,顛覆衛生間昏暗、潮溼、沉悶的刻板印象,乾溼三分離更是大大提升了家庭生活的效率。
DESIGN
閣樓
改良樓頂斜面窗,打造絕佳視野
【改造重點】在樓梯口寬敞的空間裡,隔出一間房,改做保姆房,又規劃出書房、遊戲區、影音區和健身區,有動有靜,滿足一家人的工作和娛樂需求。
閣樓的層高偏低,大多數地方無法直腰站立。為了充分利用斜屋頂下的空間,設計師對閣樓天窗進行改良,不止高度、採光、通風增加了2倍,同時也擁有了得天獨厚的絕佳視野和觀星地。
樓梯口是屬於姐弟倆的娛樂室,姐姐可以在影音區觀影,弟弟可以在“峰巒”黑板牆上盡情發揮創作天賦,默默相伴,又互不打擾。
今天的案例分享就到這裡,想看更多案例設計,記得關注美凱龍空間美學
