01
藝術冒險
當我們開始設計一套有追求的私宅,我們不用想“大家是怎麼做的”,而是結合主人的個性與需求,別出心裁地尋找更合適且獨特的表達。因而此次的專案設計,展示了設計師拒絕陳詞濫調和在不可能的碰撞中創造藝術冒險的願望。
這是來自重慶市中心的一套“學區房”,女主人與10歲女兒常住的住宅。女主人喜歡烹飪,做各種美食,女兒喜歡鋼琴與茶道。設計師把尺度不大的公共空間,透過一橫一豎,兩條交叉的軸線,規劃出餐廳、客廳、鋼琴與茶道四個不同的功能區域。每個區域即可單獨使用,又能相互滲透、交融。
02
出水芙蓉
空間氣質的營造,靈感來自南宋花鳥名畫《出水芙蓉圖》,提取粉色的荷花作為元素,透過抽象化、藝術化的演繹,呈獻出一個出淤泥不染、充滿詩意的粉色夢幻之家。
公共區域的牆面刷滿了粉色水性塗料。這片久違的粉色,因為特殊的材質肌理打磨工藝,讓人感覺粉而不膩,層次分明。少女心不僅是可愛或溫柔,更代表一種活力與力量,是對美好願望的祈禱與追求。
客廳中的隔斷矮牆,以黑色圓角的形式出現。黑色弱化了隔斷,圓弧邊化解了直角的衝擊。地腳線一反常規,做成了30公分高的大尺度,用黑色火山石作為基底,表面刷上白色水性漆,同時又保留石材原有的自然洞孔,雕刻出不一樣的質感。
03
茶道與光
茶道區域的牆面裂開了一條縫隙,讓一道陽光灑進來。光灑進茶桌和茶具,灑進品茶人的心裡。光線下的層板,擺上一盤蘭花。蘭花的清香,茶的芬芳,使人閒和寧靜,趣味無窮。
04
粉色夢幻
從客廳走向房間,迎面是過道中一個大圓弧的牆角,牆角中間構建了一個層層疊疊的樓梯形狀。我們想表達的就是:書籍是人類進步的階梯,粉色是少女治癒的秘笈。這裡有粉色,也有階梯,這是她學習進步、健康成長的樂園,這就是粉色夢幻家。
在臥室中,為使空間顯得更寬敞,天花與牆面大面積留白。床上點綴著粉色單品,與客廳遙相呼應、相映成趣。
05
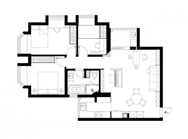
設計圖紙
設計團隊擁有飽滿的創作激情,完善的設計體系。以作品意識為基礎,專注於設計研究、分享。在都市中尋求商業與藝術的融合,自然與人的對話。用過去的文化,融入當代的精神,構建懷舊的未來。




























 
			 
			 
			 
			 
			 
			 
			 
			 
			 
			 
			 
			 
			 
			 
			 
			 
			