本案是125平的三居室,裝修上,對原始戶型進行了較大改動,以使得居室功能齊全,空間利用率更高。一些設計,如懸吊式電視背景牆,主臥隱藏衣帽間等,都極為個性,滿足了使用,還凸顯了氣質。新房裝了日式風,整個以原木色的為主,更溫婉舒適,適合居家生活。
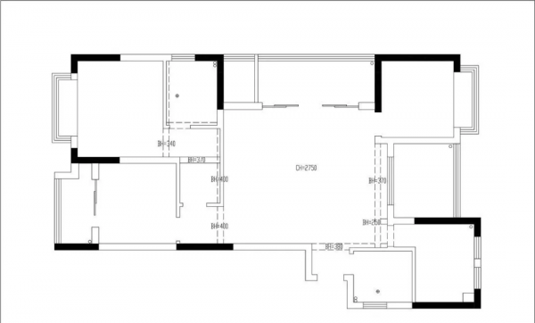
平面圖
1、原始戶型並沒有鞋櫃的位置,考慮後將衛生間門洞改位,整面牆打掉做鞋櫃,收納更多。
2、廚房門洞改位,衛生間得以乾溼分割槽。
3、餐廳外推,贈送面積擴入房間做餐廳使用。
4、懸吊式的電視背景牆,也用做分割客餐廳兩個空間,雙動線更加流暢,採光更好。
客廳
踏進家門,就能感受到日式風格的輕快灑脫與無限生機。
入戶與客廳相連線的是整面牆的收納櫃。白色的櫃門看上去沒有壓迫感,開放格的設計,在進門時取放物品更加方便。
懸吊的電視背景牆,分隔了客廳和餐廳兩個區域。
下部懸空保持了空間的通透感,動線流暢又分隔。
整個空間用最簡單的白色與木色,營造了大空間效果。白色的牆面乾淨明亮,木色則用來增添溫暖感。
客廳落地燈開啟時,整個居室都變得溫柔有生活氣息了。簡約客廳在拋物線落地燈襯托下,不禁性感了幾分。
客廳整面牆的展示櫃,既可藏書又可以展示業主的收藏品,很有品位的樣子。
懶人沙發,讓慵懶的午後,多了一份舒適與愜意。
餐廳
餐桌呼應整個空間的木色,沒有過多的裝飾,去繁從簡,至拙至美。
衛生間
衛生間幹區定製木格柵做半開放處理,通而不露,使得采光更好。
木色配上卡其灰的牆磚,黑色的邊框做點綴,看似簡單隨意,卻在細節處彰顯著藝術美學。
浴室裡面,依舊灰色地磚,時尚、有質感。浴簾隔水,省地便捷,適合空間不大的衛生間。
廚房
廚房乾淨整潔,無需過多修飾。
冰箱上面貼滿了他們旅行的照片,留下更多的美好回憶,讓整個家都瀰漫著香甜的氣息。
主臥
將次臥的儲物間改入主臥,主臥床尾處做了整面牆的衣櫃+隱形衣帽間。
無需繁雜的裝飾,素雅的床品,配上夜晚點亮的床頭燈,入室便覺輕鬆。
主衛溼區反以灰色和黑色為主,浴室櫃用一抹木色躍入眼中。
陽臺
休閒桌椅、白色文化磚、牆上洞洞板,及竹簾等元素,讓陽臺休閒風十足,不管是喝茶、看書,都是愜意的。
(本文由齊家小編編輯,侵權刪!)
(此處已新增小程式,請到今日頭條客戶端檢視)
