時髦的中年夫婦,花費一年改造舊房,想法比年輕人還前衛,好獨特
這個案例是一箇舊房的改造專案,業主兩人明年就要退休了,所以想要在退休之前將郊區的這個老房子重新裝修一下,等退休之後就可以回到老房子享受生活了。這對中年夫婦也是十分的時髦,想法比年輕人還前衛,花費了一年時間改造的舊房,真的很獨特!
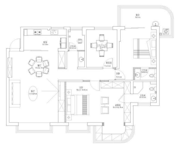
房屋戶型:三室
房屋面積:140平方米
裝修預算:50萬以上
所在城市:長沙
設計師:王安安
主要建材:鐵件、石材、人造石、系統櫃、木作、油漆、玻璃、仿清水模漆
對於業主兩個人來說,這個房屋的面積已經足夠大了,設計師本以為業主會選擇比較沉穩的中式風格,但沒想到他們選擇了以白色為主的極簡風格,重新裝修舊房的時候也砸掉了一些非承重牆,擴大了室內的視覺空間,讓空間變得更加開闊。
【廚房】
設計亮點:定製櫥櫃
平時兩個人基本不會到外面吃飯,所以對家裡廚房的需求還是很大的,為了能夠滿足兩個人的生需求,設計師特意在廚房內部定製了頂天立地的大櫥櫃,可以用來放置更多的物品。
廚房的主體櫥櫃和操作區域則是以白色為主的設計,純淨的白色讓整個空間看起來更加的乾淨利落。
【餐廳】
設計亮點:開放式區域
餐廳是開放式的設計,實木的桌椅坐落在中間的位置,簡約又實用,實木的材質加上大方的擺放,讓整個空間都變得很舒適隨性。
平時兩個人在家的時候還很喜歡品酒,實木的桌椅搭配上法式的紅酒,竟也給人一種很奇妙的感覺,不得不說兩個人也是很會享受生活了。
【客廳】
設計亮點:電視櫃和書桌結合
客廳也是白色為主的設計,搭配上黑色的皮質沙發,讓客廳多了一些摩登氣息,客廳中央擺放的實木茶几,和皮質沙發形成了一種反差美。
客廳的電視櫃和書桌是結合在一起的設計,不僅滿足了女主人看電視的需求,也為男主人準備了一個可以進行網上炒股的區域,兩個人互不打擾。
【臥室】
設計亮點:臥室和衣帽間打通
之前這個位置是兩個臥室,不過平時家裡就只有業主夫婦居住,所以在裝修的時候選擇將兩個臥室全部打通,臥室的一面是休息區,另一面是衣帽間,完全打通的設計十分大氣。
整個臥室和衣帽間都是純白到底的設計,乾淨的白色搭配溫潤的實木,讓整個空間都變得很淡雅舒適。
【衛生間】
設計亮點:雙洗漱區
開啟衣帽間旁邊的隱形門就可以進入到衛生間了,考慮到平時兩個人的起居時間基本都是一樣的,為了方便兩個人的生活,衛生間設計了兩個洗漱區,使用起來更加方便。
時髦的中年夫婦,選擇了純白色為主的極簡風格,打造了一個清新大方的開放式生活空間,比很多年輕人的家還要前衛,真是太獨特了。
【圖片若有侵權,麻煩私信刪稿】


















 
			 
			 
			 
			 
			 
			 
			 
			 
			 
			 
			 
			 
			 
			 
			 
			 
			 
			 
			