上有天堂下有蘇杭,杭州,一座美麗的城市,隨著網際網路的發展和經濟的騰飛,吸引了越來越多的年輕人來到這裡置業!本案就是如此,為杭州夫妻的89平(應為套內面積)新家,這個面積不大不小,作為剛需房來說其實正好!至於裝修,夫妻倆和很多年輕人一樣,不喜歡過於傳統的設計,就選擇了大膽創新,比如捨棄“客廳”,不買沙發,陽臺再加高10公分的方案就是如此,這麼裝實用極了!不信給各位曬曬!(圖源:文青設計)
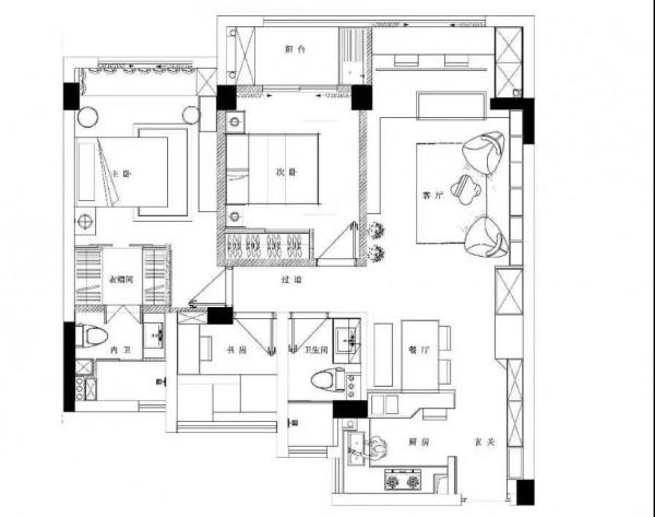
這個是平面圖,戶型為三室兩廳,加之動靜分離的格局,整體還不錯!
客廳作為此次裝修的重點,我們首先就從這裡開始講起吧!前面我們說過捨棄“客廳”,請注意這裡是打了引號的,意思是摒棄了傳統的客廳式佈局,然後捨棄沙發和相應的背景牆,這樣一來直接擺放兩把舒適的座椅,加上定製的櫃子,整體構建了一處極為輕鬆愜意的休閒閱讀場所!
為了避免空間顯得壓抑,櫃子採用了白色的免拉手櫃門,如此看著大氣一些!
需要補充的是細節,櫃子中間為封閉式的結構,兩側為開放式的結構,這樣既有了色調上的對比(黑白),看著也更加富有層次!不過最根本的還是做到了有藏有露的收納細節,因為開放式的櫃子用來藏書或者放置展示品都比封閉式櫃子要更加順心。
對面是陽臺,打通內包之後空間顯得更加敞亮!
考慮到工作的需要就在地面加高了10公分左右,一方面是便於功能分割槽,另一方面是擺放雙人位的書桌,如此效果出來說堪比多間房一點也不為過!
對面是電視牆,沒有買相應的櫃子,而是以置物地臺來代替,加上溫潤的地板,整個客廳隨處都可以用來休閒!而背景牆本身雖然有做造型,但並不繁雜,結合電視機的孔位,看著平整大方!
除了電視牆,客廳和陽臺相接的地方還安裝了投影儀幕布,如此可以滿足多樣化的影音需求!至於天花板之下的吊頂是拉平的,然後採用無主燈設計,一方面這樣看著更為簡潔,另一方面這樣設計光線更為均勻!(之所以不買沙發而選擇座椅,也是基於影音方面的需求,因為後者便於移動,靈活性更高)
梳理一下,經過一番設計,客廳算是集齊了影音、休閒、閱讀和辦公四大需求!
站在這個角度可以看到對面的入戶門,不得不說業主家的利用率很高,直接將玄關走廊的過道利用到極致,然後定製鞋櫃和餐櫃,如此用來滿足基本的收納沒有任何問題!需要補充的是細節,比如鞋櫃不僅滿足了最基本的儲物需求,還設有換鞋凳和相應的掛鉤區,功能很強大,只是缺乏相應的細節圖,這裡就無法分享了。
來到餐廳,黑胡桃木色的簡約餐桌看著很有氣質!
右邊是餐櫃和冰箱,為了不讓效果顯得突兀,定製櫃子的時候特意預留了一個空位,然後將家電擺放進去,看著確實美觀不少。
廚房是一個小空間,所以佈局為開放式結構,這樣顯得敞亮的同時,也能便於家人之間的互動和交流!
細節,主要是灰色的免拉手櫥櫃,加上同色系的牆磚,看著頗為時尚!
來到走廊,乾淨整潔的效果令人賞心悅目!當然,對面的裝飾畫也不錯,可以為空間潤色!其它的則是夫妻倆養的寵物了。
一共三間房,這間是主臥,亮點有很多,比如背景牆不僅點綴了裝飾畫,加上帶有燈光的飾品,看著很漂亮!再就是下面的護牆板兼床頭靠背了,結合舒適的大床和其它傢俱,整體落落大方非常適合休息!當然飄窗也不錯,鋪上軟墊後,用來放鬆休閒很愜意!
這個是床尾左側的梳妝檯,透過鏡面能夠看到床頭左側的黑色邊幾。
來到書房,面積不大,就定製了榻榻米地臺,這樣滿足工作需要的同時,還可以作為客房用來睡覺休息,如此設計當真一舉兩得!
最後就是書桌右側的黑色收納區了,用來收納各種書籍或者檔案資料正好!至此本案就分享到了這裡,希望大家喜歡,謝謝!
