這是一套60平米的雙鑰匙公寓,上下兩層單獨設計,以滿足同時租住兩戶的需要;在面積有限的基礎,透過巧妙的空間利用設計,實現了實用舒適的居住體驗,整體以現代風的空間設計,透過佈置簡雅溫馨的軟裝傢俱,也讓空間充滿現代自然的舒適感。
效果圖&平面佈置圖
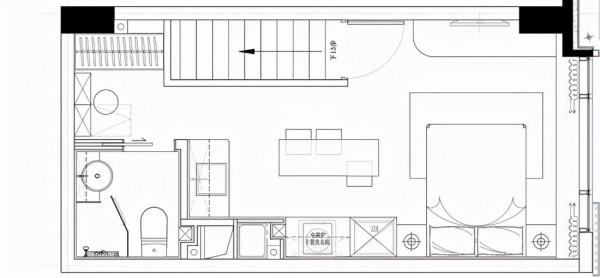
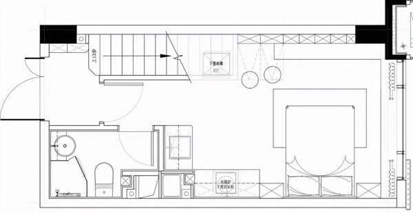
▲雙鑰匙的公寓,兩層的大致功能一致,客餐廚與臥室設在同一個空間內,以單身或兩小口租住為主。
▲一樓設定臥室與廚房功能。
▲二樓與一樓佈局類似,多了一個餐廳與衣帽間。
二樓
▲在靠窗為主擺放床鋪,床頭牆以木飾面與長城板的背景基礎,床上鋪設樸素優雅的床單,天花以無主燈的設計,床旁邊就是餐廳與廚房區域,小小的空間卻也功能齊全。
▲木飾面的床頭牆上,掛上一幅黑白裝飾畫,床上佈置樸素的床單、枕頭,床側邊佈置一個簡約優雅的床頭櫃,整個臥室都顯得格外的溫馨舒適。
▲床頭櫃上佈置花瓶、檯燈與裝飾畫,旁邊牆面是長城板與木飾面的材質,整個空間質感現代優雅而高階。
▲床尾位置佈置一個小矮櫃+空調櫃機,佈置綠植與裝飾畫,而在餐桌後的空牆上也是掛了兩個圓形的裝飾,讓這個公寓空間充滿簡雅溫馨的文藝氣息。
▲大理石臺面的餐桌,後方小小的廚房操作檯只有一個水槽,在小公寓裡沒有太複雜的烹飪,沖沖泡麵、吃點水果、點個快餐之類的,倒也是有一個方便的用餐位置。
▲衛生間以灰色的地磚,牆面鋪上白色麵包磚,鑽石型的淋浴房兩側佈置馬桶與洗手盆,臺上盆的下方也加入了木質的浴室櫃,整個衛浴空間顯得文藝舒適而實用。
一樓
▲一樓與二樓的大體佈局一致,床頭兩側加入了定製櫃式的床頭櫃設計,結合黑白格紋的床單、灰色條紋的地毯,也讓臥室顯得更現代自然。
▲床頭旁邊的操作檯做成L字形設計,牆面貼上白色小格磚,讓小公寓也有文藝優雅的烹飪環境,側邊牆面的壁龕,也讓空間更加實用方便。
▲操作檯上方的吊櫃加入實用的開放格,常用的用品可以放在上邊,取用更加方便。
▲樓梯間利用起來裝上收納櫃,為小公寓提供了實用的儲物位置,牆上掛上多種顏色碰撞的裝飾畫,也顯得更加文藝優雅。
▲床尾裝上卡座+吊櫃組合,也提供了一個情趣而實用的收納與休閒角落。
▲小小的公寓空間,在細節處充滿細膩的考慮,讓小戶型的生活空間也充滿情趣優雅的舒適感。
設計:大鑠設計,點評:設計館
