一位45歲單身阿姨曬出獨居生活照:如果沒結婚,這是我向往的生活
後來的民政局說:結婚不一定幸福,不結婚也不一定孤獨。
在《鮮衣怒馬少年時》裡有一段話:成功沒有標準,在鹿門山是靜好歲月,在長安是光輝歲月;只要你內心想要的,就是好歲月。
把這段話引入到婚姻上也是一樣,結婚是為了幸福,單身也是為了幸福,無關乎其他,只要你自己開心就好。
就像這位阿姨@秀英,雖然已經45歲了,但是她依然單身,而且是快樂幸福地單身著。
也曾有家人朋友勸她,女人總要找個歸宿,可是她說:我自己就是自己的歸宿。
也許是因為自小生長在一個父母每天都爭吵的家庭中,也許是因為看多了身邊的朋友結了又離的婚姻,也許是因為恐婚擔心自己融入不到另外一個家庭中,所以她選擇了一直獨身。
秀英阿姨喜歡攝影、閱讀、手作和油畫,她把自己的愛好也做成了事業,偶爾會和三五好友相約著出去或者露營、或者爬山,日子充實而浪漫。
秀英阿姨前年買下這套兩居室的小房子,去年裝修完畢,如今搬進新家已經大半年了,她喜歡這個日式風的家,一人一貓,日子好不暢快。
寫在前面:
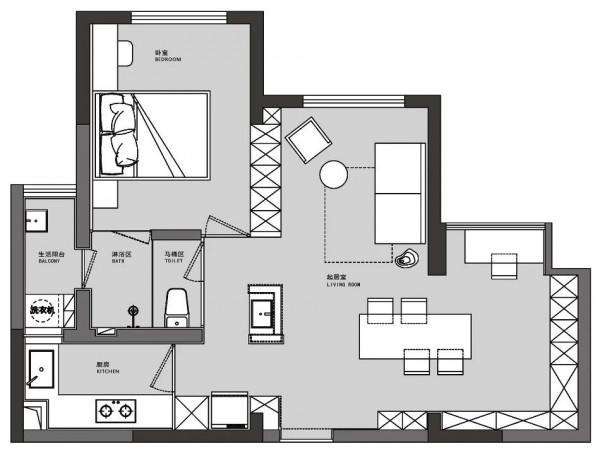
秀英阿姨最開始拿到這套房子的時候,戶型是比較常規的兩居室,每個空間都相對獨立而且都比較小,於是秀英阿姨請設計師給房子做了一些改造。
改造之後的家,不僅看上去寬敞明亮了許多,還有更多的收納空間,自己的衣物還有書籍都有地方安置了,連貓咪也有了自己玩耍的小天地。
充滿儀式感的玄關
原本戶型沒有玄關,進門就是廳,但是秀英阿姨說可以沒有獨立玄關但是一定要有一個儀式感的玄關。
於是設計師利用多層實木地板和找平的厚度差給入戶區做了一個下沉式的玄關地面,透過高低差和材質的轉變,讓回家有了儀式感。
入戶左側是一個小小的雜物間,櫃門上安裝了大尺寸的穿衣鏡,愛美是每個女生的天性;右手邊定製了鞋櫃,留空的地方都用原木色的木飾面裝飾,一進門就能感受到日系的溫暖。
拆除掉原廚房、公衛、主臥和次臥的非承重牆體後,整個公共空間以洗漱區為中心,形成一個新的洄游動線。
“去客廳化”的休閒客廳
秀英阿姨是一個人獨居,所以希望客廳的佈局隨意一些,平常都是手機電腦,沒有看電視的習慣所以果斷地設計了電視,把原來電視牆的位置定製了一整面牆的衣櫃,這也是客廳和臥室的隔斷。
秀英阿姨的客廳就只是一個休閒的空間,有時候她會抱著喵星人窩在沙發上看書,或者發呆,偶爾也會把畫架搬到窗前,安靜的畫畫,對她來說,做自己喜歡的事就是一種享受。
前段時間,秀英阿姨覺得沙發有點佔地方,於是就把沙發挪開換了一張單人椅和收納櫃,喜愛的唱片機、自己動手創作的裝飾畫,在這個多元化的客廳裡藏著的都是屬於自己的美好。
模糊了界線的餐廳和書房
把原來的次臥隔牆拆除後,餐廳和書房就合二為一了,兩個空間沒有明顯的界線。
公共區域的收納櫃都是沿著牆體定製,這樣留出更多的活動空間;秀英阿姨特意選了一張長桌做餐桌,平常除了聚餐吃飯以外還可以在上面做手作、整理畫作、看書辦公、侍弄花草等等。
餐桌旁靠牆放置了一張成品書櫃,裡面藏滿了秀英阿姨喜愛的書籍,空閒的時候就會拿本書坐在餐桌旁閱讀。
側面的組合櫃除了收納以外還有一部分空間是留給貓咪的,攀爬玩耍,是屬於它的小天地。
原來的次臥飄窗敲掉後,秀英阿姨覺得這塊空間非常好,光線也好,如果空著就太浪費了,所以就放置了一張書桌,打造成了一個小小的手工區,藝術氣息非常濃厚。
當光影透過木質百葉,飄落在牆面的洞洞板上,一深一淺之間留下的都是歲月的故事,溫馨又美好。
Mini卻實用的廚房
外賣雖然簡單方便,但是遠不及自己烹飪的美食那樣暖心又暖胃。
秀英阿姨雖然是一個人獨居,但是她說:一個人的生活更不應該將就,你應該把自己照顧好,不僅是情緒還有身體。
廚房的門內推,把冰箱放在了廚房門外嵌入到收納櫃中,L型的櫥櫃佈局把空間利用率最大化,灰色的瓷磚搭配原木色的櫥櫃和白色的超薄檯面,簡潔又幹淨。
秀英阿姨還特意展示了她的創意,在地櫃中設計了一個可抽拉的層板,可以放置電飯煲,非常方便。
輕復古的臥室
臥室的房門採用了隱形門和客廳的收納櫃以及轉角牆面做成了一個整體,裝飾性非常高。
臥室很寬敞,採光也不錯,尤其是選擇了木質百葉簾,秀英很喜歡這種窗簾,光影透過它進入室內很唯美。
地面是人字拼的地板,牆面大面積選擇了留白,秀英阿姨說人道中間不喜歡太花哨,就想幹乾淨淨的,但是也不想太平淡所以就在床頭牆面用復古的地板做了半牆高的背景設計。
床頭靠近窗戶一側放置了一張復古的書桌,平常也是梳妝檯;另外一側放置了一張自己DIY的床頭櫃,配合整個空間的復古氣息,很個性。
三分離的衛生間
衛生間的改造是秀英阿姨很滿意的,原本只有一個公衛,不過設計師巧妙地在臥室裡開了一個衛生間門,公衛也是主衛。
衛生間的三分離設計,洗漱區放在了過道上,搭配懸掛式的鏡子,成為了公共區域的一個視覺焦點。
寫在最後:晚上在家抱著喵星人窩在沙發上,聽聽音樂或者看看書,然後小酌一杯,帶著微醺的自由進入夢鄉。
單身的獨居生活一點也不孤單、不寂寞,而給足夠她安全感並且治癒她內心的正是這套53㎡小窩裡的美好。
