來源:邦哥看豪宅
安藤忠雄紐約首作
_________________________________________
鋼筋、混凝土、玻璃、鋁合金......看似冰冷的材質混合澆築起座座高樓。萬幸的是,我們的城市並未因建築們的平地而起而變成冷冰冰的鋼筋叢林,外立面紋理中滲透的光影、空間中不斷蔓延的美學與詩意,都在詮釋城市生活的溫度。今天一起走進安藤忠雄參與設計的紐約頂級豪邸伊麗莎白街152號,感受高階生活品質下的極致人生吧!
富有詩意的頂級豪宅
伊麗莎白街152號由日本設計大師安藤忠雄操刀打造,在立面設計上,這位設計師充分的發揮了自己的“詩人”天賦,構築出這座純粹有張力的建築。
雖然坐落於“大蘋果”紐約,伊麗莎白街152號並未透過立面來樹立豪宅威望,相反,它由混凝土、金屬和玻璃澆築而成,這些“20”世紀的材料”讓建築在穩固厚重與清透明亮間產生了和諧的對話。
立面上均勻排列的通氣孔有助於建築空氣流通以及牆體乾燥。
為了進一步展現對城市與人民的友好,這座建築後側鋪設一面55英尺高、99英尺寬的植物牆,於清風縈繞時,賦予住戶恰到好處的清新與呼吸感。
7套公寓
頂層公寓售價超2.2億
室內設計由知名工作室Gabellini Sheppard 打造而成。
這對設計組合從極簡風格與外立面肌理中汲取美感元素,為室內空間營造出一種深沉的華麗。
建築大門保留混凝土和石面的天然紋理,輔以光線注入,冷靜的空間氛圍將內部的奢華悉數斂藏。
大門右側是入戶大堂,灰色的飾面、暖黃色的光線,關懷與細心都在簡約凝練的空間中定格,歸家後的身心的舒適感從這裡開始。
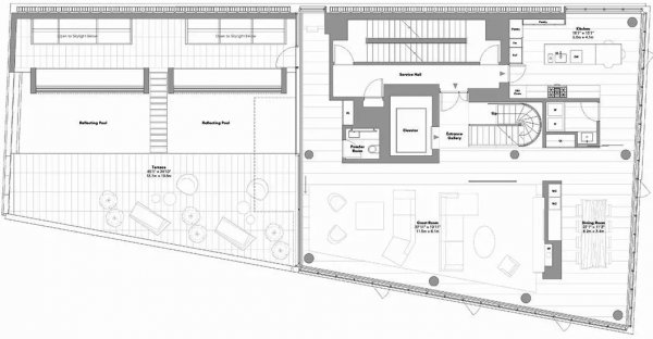
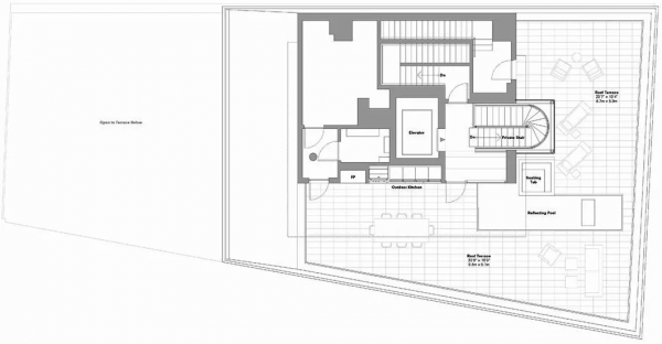
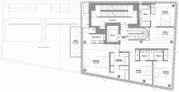
頂層公寓總面積約521㎡,將包括四間臥室和4.5間浴室,目前售價超過3500萬美元(約合2.2億人民幣)。
在頂層複式的設計上,Gabellini Sheppard 將建築的“詩歌風格”延續到底,做到整體如一——灰色立柱、木色隔斷板、白色牆壁以黃金比例交融,簡而不空、純粹而有內涵的“詩卷”徐徐鋪開。
牆壁內嵌的灰色篝火爐採用義大利砂岩作為框架,與火苗形成鮮明的對比。
客廳從座椅到沙發,大多元素均由曲線勾勒而成,與周圍板材的輪廓形成反差。
全景落地窗將不同方向的自然光迎進室內,光線與多個夾角相遇,產生零散的陰影,自然景緻的加持,增強室內設計的平衡感,讓空間在時光中沉澱。
位於角落的帶狀樓梯盤旋而上,吸引人們走進上層世界,玻璃、鋼表面、金屬製成的扶手極具光澤感,水磨石樓梯,每步皆是沉穩。
廚房由深木色主宰,島臺處由大理石架構起一處臨時就餐區,在外部城市盛景的烘托下,醇厚的煙火氣不言而喻。
臥室也利用明亮色調打造淡雅清新是私密氛圍,藤編長椅、白色躺椅以形態展示出悠然自得的生活態度,結合高空區域,更有一種尊貴的居家風範。
頂層豪宅帶有多個戶外露臺,總面積約為302㎡,戶外區域被鬱鬱蔥蔥的植物圈攬,恬靜的水景與天空深情注視,兩側的石牆為中部行走的居者隔絕喧囂,戶外客廳於動靜之間豐富高空生活。
其他6套公寓也充分融入自然肌理,不受打擾的謐境,造就了生活的多種可能。
我們因建築的恢弘體量、極致高度而震撼,因色彩、材質所築就的奢華而驚豔,但不得不承認在看遍了高調的國際豪宅後,我們卻依舊因匠心而執著,為簡約而心動。
