記得點選關注“裝個好房子”哦~
每天為你帶來裝修乾貨、改造新靈感與美好生活故事
探尋美好居住方式,我們值得更好的生活!
----------------------------------------------
北京是中國教育的高地,而海淀在北京教育領域又是獨一檔的存在,每年清北錄取人數佔比超過六成。
為人父母,在力所能及的前提下,總是願意為孩子提供更好的教育環境。據調查,7成家長願意為學區房買單。而生活在北京的楊揚夫婦,就是這其中的一份子。
楊揚是一位國企職員,妻子是一名教師。一家人原本住在郊區一套面積比較大、也比較新的房子裡。後來為了方便女主人上班和孩子上學,夫妻倆決定賣掉郊區的房子,置換成市區的學區房。
新家位於海淀,可以說是典型的老破小,兩室一廳的60㎡老式住宅採光很不好,衛生間和廚房的分配也不合理,存在很多居住使用上的問題,而這個家,卻要住下三代五口人。長輩會一同居住幫忙帶孩子,未來也有可能要二胎,一家人的居住問題非常嚴峻。
改造前
由於家裡人口原因,屋主希望能在有限的空間下,每個人都擁有相對獨立的空間,同時兼顧較高的生活品質。
為此,設計師透過獨特的創意設計將兩室變三室,並將空間的動線巧妙的串聯起來,打破所有的邊界和框架,最大程度的保證了佈局自由和採光合理,最終實現了這個舒適高效的家。
,時長03:00
、
戶型:兩室
面積:60㎡
花費:36W
地點:北京 海淀
原戶型沒有玄關,收納空間嚴重缺乏,縱向的客廳通風、採光都極差,生活動線和空間規劃也不合理,嚴重影響一家人的生活品質。
原始戶型圖
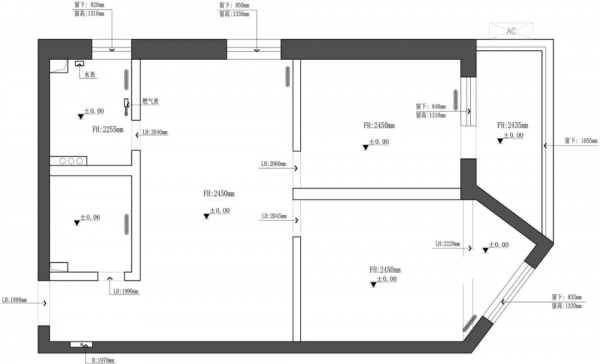
設計師對室內的空間重新進行了結構佈局,拆除大部分非承重牆,借用原主臥和客廳的部分空間,擴充出一個兒童房和廚房的操作區域;並弱化了原戶型斜面結構,打造成了一個老人房;衛生間則做到了乾溼分離,雙向雙出,最終用精簡高效的功能佈局滿足一家人生活上的習慣與偏好。
改造後平面佈局圖
從進入玄關開始,入戶門採用外開形式設計,充分保證了進門處的空間利用率。
右側打造了頂天立地的儲物櫃+換鞋凳,中部與下部鏤空的設計,更加實用,滿足一家五口未來的收納需求。
從玄關進入室內的走廊做了45度切面,並懸掛了鏡子,視覺上感到空間倍增,把公共區域最大化表現的淋漓盡致。
原戶型客廳呈豎直狀,客餐廳狹長,功能劃分不明確,通風采光也極差。改造後的客廳改為橫向延長,家政區、水吧、餐廳、客廳、老人房等空間依次排開,高效利用空間。
客餐廳的中心區域靠牆設定了卡座,上下搭配木作收納櫃,提高收納力。
卡座連線著水吧檯與家政櫃,功能強大又保證了空間的整潔。
卡座對面懸掛了電視機並安排下了一架鋼琴,既可以安逸的看電視,又可以享受美妙的琴聲。
客廳同時兼具餐廳的功能,餐廳的視角與廚房相對應 ,方便家庭成員之間互動。餐桌椅和室內色調一致,簡樸自然。
由於孩子還小,家裡的長輩在幫忙照顧,所以需要為他們打造一個獨立的休息空間。
設計師利用了客廳區域靠窗的斜面,在這裡量身定製了一張榻榻米床。
用摺頁式隔音簾做隔斷,白天開啟,讓陽光可以進入到客廳,保證採光和通風。夜晚關閉時,又變成了一個獨立的空間,保證了老人起居生活的隱私性,帶來安靜舒適的睡眠環境。
頭頂的燈帶不僅可以方便起夜使用,也為這個區域營造出溫馨的氣息。
整個客餐廳空間在改造後靈活多變,三代人在屋簷下都能找到舒適的活動空間。
主臥的面積不大,因為男主人有看書的習慣,所以這裡需要集中休息、閱讀、辦公等功能。
設計師將臥室與陽臺相結合,既擴大了室內空間與採光,也滿足了屋主的個人需求。
出於對簡約風格的考慮,臥室沒有采用傳統的成品衣櫃,而是與床一體化設計,在床尾部做了白色定製櫃,足以收納下夫妻倆所有的衣物。無把手的設計既避免了磕碰,又削弱了存在感。
床頭還做了靠包,倚靠的時候更加舒適。
陽臺的讀書角讓整個空間變得更加溫馨了,這裡的功能性特別豐富,辦公、閱讀、運動、晾曬衣物等樣樣齊全。
兒童房的位置原來是客廳,拆除了一部分非承重牆後,打造出一個趣味性成長空間,整體顏色明快又不會過度搶眼。
小朋友也特別有主見,她希望擁有一個好玩的高低床。設計師採用了步梯式結構,上半部分像一個盒子,搭配雲朵形狀的壁燈,滿足休息功能的同時,也提高了安全性與趣味性。
步梯空間也沒有浪費,每一個階梯都暗藏收納。
下半部分是衣櫃,滿足收納功能的同時,也讓地面空間最大化,玩耍活動都更加自由。
原廚房是一字型,狹小無比,操作麻煩,改造後借用了部分客廳空間,將廚房擴大了一倍,打造成了U型佈局。烹飪區與操作區分離開來,告別手忙腳亂,同時還可以與客餐廳有所互動。
廚房內建了高櫃,將大型電器做了內嵌處理,同時儘可能的多做抽屜,比起櫃門+層板的收納方式,會大大提高空間利用率,拿取也更加方便。
衛生間主要有四大功能,洗漱區、馬桶區、淋浴區、洗衣區。在不大的衛生間內既要保證乾溼分離,又要減輕擁堵,並不是一件容易的事。
在原戶型的基礎上,設計師在衛生間中間安置了一個玻璃隔斷,將空間分割為了淋浴間與馬桶間,且兩個空間都各帶一個獨立洗漱區,起到乾溼分離的作用,也解決了高峰期用廁擁擠的狀況。
衛生間還可以雙向進出,中間玻璃隔斷起到了保證隱私的功能,可以滿足多人不同功能的使用,非常靈活。
從馬桶間的洗漱區看向隔斷另一側的洗漱區。淋浴間以及馬桶間都定製了儲物櫃,提供大量的空間方便就近收納。
從馬桶間另一個出口可以直接通向玄關,形成回字型動線。
洗衣功能則被外接在玄關與客餐廳的交界處,做了一個嵌入式空間,用來收納洗衣機,從淋浴間出來後把換洗衣物放入洗衣機,整個動線合理又靈活。
家的設計,本質來說就是滿足人們對生活樣貌的期待。“打破常規,不如在常規下細緻入微”,這是設計師一直所堅持的理念。
沒有過多的炫酷設計,而是在尋常的生活裡將屋主所需的功能做到最大化,保證了動線與佈局的舒適,才是一個足夠體貼、有人情味的家。
圖片與素材由恆田設計提供









































 
			 
			 
			 
			 
			 
			 
			 
			 
			 
			 
			 
			 
			 
			 
			 
			 
			 
			 
			