本次的設計作品是為一對90後夫妻打造他們的住宅,女業主高冷是一個美妝博主,她希望擁有一個很耐看、年輕的家,除了基本生活需求外,還要滿足工作需要,比如拍照好看。
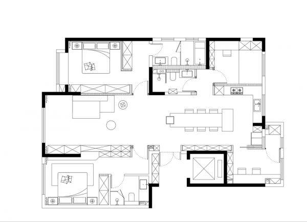
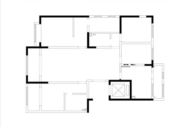
房子面積約140㎡,原始戶型房間比較零碎,為了更好地體現簡約感,並將面積做大,設計師大膽地進行了打通空間的改造,最終呈現了四室三衛的生活場景。無論是二人世界還是未來的三口之家,亦或是父母小住,都為日後生活需求做了全面的安排。
原始空間平面圖
改造後空間平面圖
設計手稿
極簡的家|最關鍵的並不是扔東西
The minimalist home
家好像內心世界的呈現,極簡的過程即拋去無用的,再裝滿喜歡的。
設計中,材料、空間關係、光線都是可以營造簡約質感的因素。比如原始戶型空間比較零碎,設計師便透過線面關係,將它們都引到主空間的「後面」去了,在一扇扇隱形門的裡面,滿足著三室三衛一書房的生活需求,給予休息空間更多的私密性。
實景分享 ▿
沒有多餘的紋絡、凹凸,極簡的隱框門與牆面合一,大大提升了空間感。一公分內嵌的踢腳線和空調封口樣式的管道排風,可以保持牆面和頂部清爽簡潔,也是對工匠收口手藝的一次考驗。
衛生間延續著這份潔淨感,設計時選購了一體成型的材料,告別了熟悉的磚塊式樣,連淋浴房也以將玻璃直接嵌入的方式去掉了擋水條。高冷坦言,自己太愛這個空間了!
空間改造|極致空間的運用術
space transformation
比起為每個房間定義功能,為業主設定生活場景,如果將空間自由地交與人使用會怎樣?
這是一個比較有創意的改動,設計師儘可能將多餘的牆拆掉或做薄,使得整個客餐廳和廚房完全打通,形成了這條縱跨東西的筆直動線。
高冷實現了夢寐以求的開放式廚房
作為主空間,這裡享有明亮通透與不被侷限的氛圍感,生活動線也更加順暢。房間之間的邊界被淡化,比起在房間裡各做各的,現在大家更喜歡待在這裡,中島臺上可以用電腦追喜歡的綜藝,鬆軟的沙發裡可以靜靜閱讀,既獨立又能彼此陪伴。
透過兼顧儲物櫃功能的中島臺,用餐區與廚房流暢契合。開放式廚房的優點是寬敞的面積和互動氛圍,當主要生活空間的邊界消除,彼此聯通,即使一人在家也是滿滿的安全感。當朋友來做客,這裡便成了絕對的社交C位,一起做飯一起閒聊,不用擔心自己獨自在廚房忙碌,把客人丟在客廳了。
餐桌與中島臺自然的落差豐富了空間裡的層次感,吊燈輕盈垂下,整齊的線條步入視野,營造著利落的空間節奏。7月傍晚,伴隨著西瓜味的風和橘黃色的晚霞,晚餐開啟!
高冷隨手拍
生活感|和喜歡的設計一起過日子
space transformation
「好好生活一段時間後,一個房子和自己的生活習慣磨合出來的結果」,這是高冷心目中的生活感。入住半年,她的家也被可愛的喜好一點點填滿著。
這是她第一次完全按照自己的想法裝修房子,但剛開始也有一些小迷茫,比如不是那麼確定自己想要一個什麼風格。在和設計師的交流中,她開始收集好看的圖片,慢慢地發現了自己確實對某一類空間特別喜歡,尤其是光打進來,明暗的效果。
線形燈提供了很好的空間延伸感
從夕陽西下到夜幕降臨,從窗外橙黃色的餘暉到家裡的星星燈火,溫暖的光線裡盡是浪漫。
實用的設計必不可少。開放式廚房改造時保留的承重牆,與冰箱和高櫃巧妙重組,充分使用空間的同時,也保持著一貫的簡約質感。
高櫃拉籃的設計十分契合高冷的烹飪習慣,這也是她在北美生活時發現的收納神器!真正好用的儲物空間不只是存放物品,也要更直觀地讓人「看到」它們,拿取它們,避免遺忘和重複購買。
衛生間的牆面開了一個洞,安裝了小巧的壁掛洗衣機,方便清洗夏季衣物和未來寶寶的小衣服,省水省空間。
其他空間⌢
臥室
臥室
書房
歡迎回家️️
Information.
專案名稱 | 天悅壹號
專案型別|平層公寓
專案面積 | 140㎡
專案地點 | 北京市豐臺區
完工時間 | 2020.12
設計團隊 | zeeshin design studio
設計主創 | 孫梓馨
施工團隊 | 品界裝飾 逗點科技 匠木高定 德瑞寶鹿 歐神諾 一禾東古
Designer.
孫梓馨
zeeshin design studio設計師
2009年畢業於北京交通大學,2012年創辦Zeeshin Design Studio。善於對建築、景觀、室內做整體融合,追求秩序、完整、美感、細節,將理性與感性相結合,創造出宜居舒適的生活環境。擅長風格現代、輕奢、極簡,代表作品:棠頌別墅、福熙大道、紫金長安。
— END —
共合設·品宣部
撰文、編輯:牛QQ
主編:小葉
共合設官方微信平臺整理釋出
未經授權,請勿轉載
