各位粉絲:
今年北京新供地的共有產權房中,首個專案終於來啦!
今天,位於房山區長陽鎮的首開•熙悅麗博專案開放樣板間,從目前的進度看,該專案距離申購已經不遠了。這處地鐵房山線長陽站附近的共有產權房將可以提供680套房源,全裝修銷售均價2.7萬元/平米。
值得一提的是,相比前些年,今年北京新供應的共有產權房地塊較少,全年一共才供應了4個專案,肯定處於供不應求的狀況。因此有意申購的家庭千萬要注意申購公告和我們推送的資訊,別錯過了。
1
首開•熙悅麗博專案位於房山長陽核心區,交通非常便利,位於兩條主幹道京良路和京深路交匯處,距離地鐵房山線的長陽站大約1公里左右。
從這裡出發,地鐵三站就可以到達中心城區豐臺科技園區的郭公莊站。而且未來不但可以乘坐房山線北延到首經貿站換乘10號線,房山線今年還將與9號線實現跨線運營,直達9號線沿線車站。
各項配套方面,該小區配建有約4000平米幼兒園;周邊的小學有黃城根小學、西營完全小學、北京小學(長陽分校);中學有北京四中(房山校區);此外,距專案幾公里之外就是良鄉大學城。
商業配套方面,長陽本身就是房山區最為繁華的區域之一,周邊有首開福茂、長陽京投港、長陽半島廣場、金泰廣場、首創奧特萊斯、熙悅天街等大型商場。同時,小區內部也配備了咖啡館、圖書館、健身房、小型商服、社群衛生服務站等。
2
熙悅麗博專案總建築面積14萬平米,可以提供共有產權房680套,為15到18層的高層板樓。
建築外觀採用現代風格,部分外立面使用了檔次比較高的天然石材,入口處設計了中式大門,小區內人車分流,以及主題園林景觀,設定了550米的健康慢跑道,兒童、中青年、老年人均有公共活動空間和運動場所。
此外,小區還採用了多種智慧社群系統,如社群門禁、人臉識別、智慧停車、社群服務平臺等。
可以看出,雖然是一個共有產權房專案,但熙悅麗博是按照一個品質社群來規劃和建設的。
此外,該專案並沒有使使用者內中水模組。
價格方面,該專案含全裝修的銷售均價為27000元/平米,而目前長陽地區次新二手房的單價在每平米4萬多元,相比之下,這個共有產權房的價格優勢和價效比還是非常明顯的。
根據目前專案的進展,熙悅麗博預計將在明年二季度開放申購。
而且,此前房山的幾個共有產權房專案都是不但面向房山區戶籍或社保(京籍和非京籍)的家庭開放,而且還向城六區戶籍或社保(京籍和非京籍)的家庭開放,因此該專案大機率也將是這樣,面向房山區和城六區申購家庭。最終以申購公告為準。
3
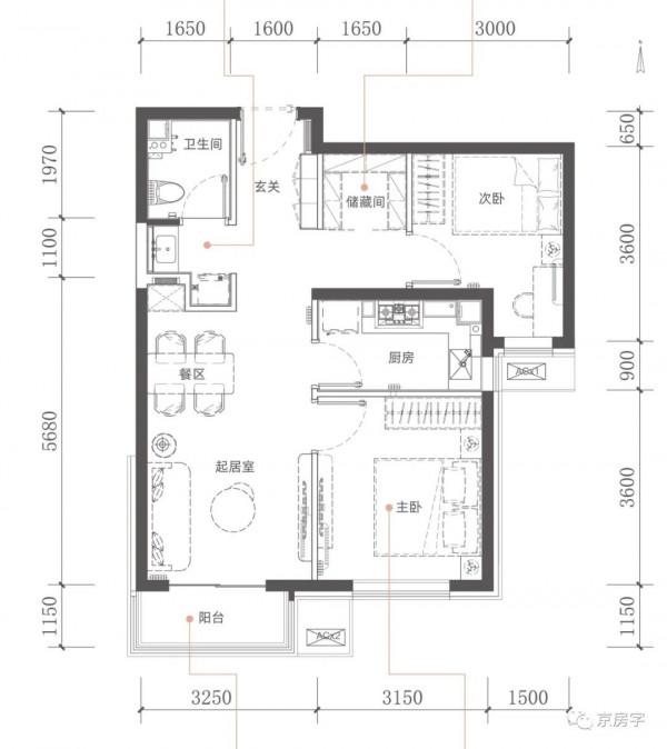
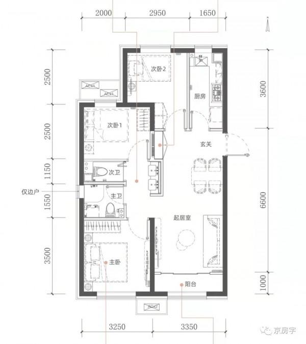
戶型方面,該專案主要分為三種戶型,80平米的兩居室、89平米的三居室、119平米的四居室。可以說是覆蓋了不同共有產權房申購家庭的需求,即便是三代同堂或是二胎家庭也都綽綽有餘。
而且戶型設計的也比較合理,對空間面積的利用率比較高。
其中,80平米的兩居戶型,做到了客廳和兩個臥室均朝南,而且進門的左手邊還有一個儲藏間,客廳有陽臺,衛生間也是乾溼分離。
89平米的三居戶型是南北通透的,而且雖然是89平米做三居,卻竟然能做出兩個衛生間,洗手檯是在兩個衛生間的外側,而且還竟然是雙盆設計。
119平米的四居室,客廳、主臥和一個次臥均 朝南,明廚明衛,客廳有陽臺,主臥有飄窗,進門玄關處還有一個小型的家政間。
按照該專案的銷售均價,一套80平米的兩居室總價在216萬元左右,首付最低在65萬元左右;一套89平米的三居室總價在240萬元左右,首付最低在72萬元左右;一套119平米的四居室總價在321萬元左右,首付最低在96萬元左右。









 
			 
			 
			 
			 
			 
			 
			 
			 
			 
			 
			 
			 
			 
			 
			 
			 
			 
			 
			