樓梯大挪移,一招解決採光問題
拆掉門廳一堵牆,視野通透10倍
樓梯間改衣帽間,擁有頂配套房
書房隱藏側翻床,三合一多功能
130平頂層複式上演“換位大法”
屋主 · 需求
屋主希望擁有通透的生活環境
最好是進門就有豁然開朗的感覺
老人和夫婦倆活動區儘量保持獨立
改善餐廳和衛生間的使用舒適度
擴大儲物空間,增加實用功能性
房屋 · 資訊
座標:南京
面積:130㎡
風格:現代
戶型:複式
居住:三代同堂
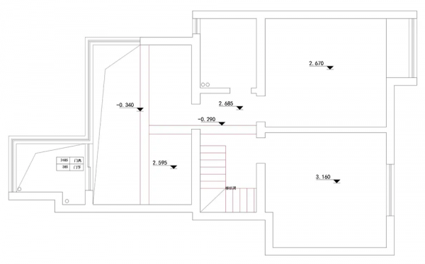
【改造前】
× 樓梯位於進門右手邊,擋住光線,導致門廳很暗
× 門廳空間太小,且進門正對著一堵牆,視野受限
× 餐廳在樓梯下方,空間太逼仄,用餐環境不太好
× 次衛無干溼分離、主臥面積侷促,空間利用率低
【改造後】
√ 拆掉一樓小臥室,將樓梯挪過去後,進門視野變得開闊了,同時,門廳、餐廳都有了足夠寬敞的空間;
√ 在進門左手區域,即廚房門左右兩側,分別設計衣帽櫃和鞋櫃,滿足進出門換衣換鞋及儲物需求;
√ 餐廳靠牆設計整排到頂儲物櫃,開放式與封閉式結合,有藏有露,拿取方便;
√ 一樓朝南次臥門洞移位,原門洞封上後,將次衛洗手盆外移,做三式分離設計,利用率大大提高;
√ 二樓原樓梯間區域,設計成獨立衣帽間,並納入主臥室內,成為頂樓“舒適套間”;
√ 書房做開放式設計,與樓梯口融為一體,是整個二樓的公共區,同時利用定製側翻床,需要時可直接作為客臥使用,同時還兼具健身、休閒等功能。
    客廳打通南陽臺,引四季陽光入室
【改造重點】次臥門洞移位後,為了不破壞電視背景牆的整體感,門洞直接到頂,白色為底,黑色點綴,不僅不突兀,反而滿滿高階質感。
為實現客廳的開闊大氣感,摒棄繁冗的複雜吊頂和無謂的空間浪費,以流暢輕盈的線條,勾勒出極簡、乾淨的空間;拆除客廳與陽臺之間的推拉門,讓視野毫無遮擋,在四季陽光入室時,目光所及之處皆是暖意。
在素雅簡約的客廳內,即便是倚牆隨意放置的一幅畫作,也能凸顯整個空間的藝術氛圍,抽象的筆觸,簡單的色彩,描繪出自由又隨性的居家態度。
黑白灰的配色,透著清冷和乾脆,一腳踏入家門,喧囂與忙碌瞬間被關在了門外,留給居住者的只有這一方靜謐的天地。
    餐廚挪走擋光樓梯,餐廳通透開闊
【改造重點】餐廳原來位於樓梯下方,幽暗狹窄,樓梯移位後,餐廳光線充足,視野開闊,空間足足擴大2倍。
餐廳著重滿足屋主的收納需求,運用通頂嵌入式餐邊櫃,以達到最佳的儲物效果,同時兼具現代感和實用性。
以收納櫃為背景,大理石餐桌與深灰色皮質座椅完美融合,黑白灰的使用在視覺上力度均衡,與客廳的簡潔與質感銜接得恰到好處。
L型轉角窗戶使廚房光線充足,通透又通風,窗外的景色也可盡收眼底,下廚從此不必匆匆,盡享慢時光。
    臥室樓梯間改衣帽間,利用率大增
【改造重點】二樓原樓梯間改造為衣帽間,並和主臥室合二為一,打造為寬敞套間,彌補臥室空間小、收納弱的不足。
利用溫潤的木質元素,讓主臥空間更加舒適自然,床頭半牆運用木飾面裝飾,黑白裝飾畫與圓形燈具搭配和諧,沒有多餘的陳設,整體簡單大氣。
低飽和度的粉色,削弱了粉色給人的甜膩感,與清冷的灰色搭配,只剩柔和與優雅,白色花朵造型的吊燈裝點出春日清新活力!
    書房緊鄰樓梯口,開放書房功能多
【改造重點】沿樓梯而上,二樓平臺設計為開放式多功能房,利用定製側翻床,同時滿足書房、客臥、健身房等功能。
開放式的佈局,讓空間有了更多伸展的可能性,絕佳的視野與大面積的透光,給人以開闊、明朗的愜意感。
百葉窗將陽光塑造出豐富的光韻和質感,無論是清晨、午後還是夜晚,拉開窗簾,趁著傾瀉而來的光,安靜地讀一本書,生活的小格調就此蔓延。
    衛生間洗手檯外移,三式分離更實用
【改造重點】次衛空間本不寬裕,將洗手檯外移後,淋浴區便擁有了寬敞的空間,三式分離的設計,也大大提高了次衛的利用率。
黑與灰佔據了衛生間,時刻流竄著低調、質感、沉靜的氣息,個性又高階,生活的幸福感與儀式感,充斥著每個角落。
    設計師有話說
本案在佈局上做了較大改動與重組,樓梯移位後,空間得到最大化利用。整體以黑白灰為主,透過引入自然光線,視覺上增加空間的通透感覺,利用極簡線條、配色和裝飾,勾勒出張弛有度的美感。




















 
			 
			 
			 
			 
			 
			 
			 
			 
			 
			 
			 
			 
			 
			 
			 
			