本案是一套42㎡的“貓系屋企”案例,業主擁有四隻可愛的貓主子,希望打造一人四毛的溫暖小天地。原本戶型空間劃分比較明確,顯得每個空間都比較侷促,所以設計師將整片區域打通,做開放式空間,最大限度的讓自然光線充滿全屋,貓咪的活動空間也更隨意。
房屋資訊
戶型:一室
面積:42㎡
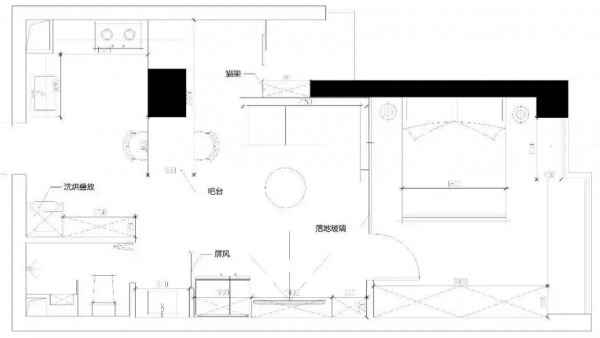
平面佈置圖
Floor Plan
玄關
Entryway
入戶是整片的公共活動區域,設計師按照舒適的生活動線,進行合理的佈局,巧妙的使用空間,提高空間的利用率。
將洗衣機與烘乾機放置在玄關處,與玄關櫃相連,形成一個小的家政間,集洗衣烘乾收納與一體,超方便。
玄關、餐廳、客廳實現互通,空間更為通透寬敞。
客廳
Living room
客廳以簡約風為主,選擇灰色的布藝沙發,沉穩大氣、人字形地板視覺有延伸空間的效果、將冰箱嵌入電視櫃中,保證空間的整體性、以長虹玻璃屏風作為與洗漱區的隔斷。
圍繞承重牆做出一圈木質檯面連線廚房與餐廳,實用方便,牆上做洞洞板,方便收納一些雜物,顏值還很高。
沙發後面是專門為貓咪定製的玩耍空間,定製的儲物櫃,下方儲物可以放置一些貓的生活用品,上方做造型洞,實現了收納與貓空間的合一。
餐廳
Dining room
承重牆延伸的木質面做餐桌,還可以作為吧檯使用,平時在這裡辦公也是可以的,極致利用空間。
廚房
Kitchen
開放式廚房設計,生活動線方便,採光更好。黑色櫥櫃搭配白色檯面與吊櫃,簡約高階。
臥室
Bedroom
臥室與客廳的隔斷採用了電動玻璃的設計,保證空間的通透性,白天通透,晚上霧化,既保護了室內的隱私,又保證了採光。臥室的門上還專門為貓主子開了一個小門,方便貓咪自由穿梭在每個空間。
臥室地面延續了客廳的人字形木地板,靠飄窗的一側還設計了一個小書桌,整個臥室裝修的舒適又溫馨。
床尾做了整面牆的收納櫃,連線飄窗做了一列書架,方便屋主平時在飄窗上讀書,享受一下愜意的陽光浴。
衛生間
Bathroom
衛生間三分離式設計,洗手檯外接在通道空間,多一些燈光設計,不會顯得灰暗擁擠,黑白色的搭配,更加高階大氣。
黑白色的地磚延伸到馬桶區,與洗漱區保持風格一致。淋浴區與馬桶區又做了玻璃隔斷,每個功能區都是獨立的空間。
