新中式風格出現在中國傳統文化復興時期,其中完美地將中式風格與現代風格和諧地融合在一起,打造出一個既有中式韻味又有現代藝術的新中式家居。新中式風格的出現既滿足了現代人對於中國傳統文化精神的追求,又能體現出現代人對於傳統中國文化的現代感的理解。
客廳是一個家的中心,也是一家人活動最密集的場所,因此客廳裝修不光要光鮮亮麗,還要滿足日常的生活需求。
新中式風格比較適宜於性格較為沉穩、並且喜歡中國傳統文化的人群。同時文化及教育界人士也比較適合新中式風格的設計,需要知道的是新中式風格能營造出強烈的中國風,具有強烈的中國氣息,同時也會給人厚重的感覺
臥室的裝修並非只是擺設一張床這麼簡單的事情,在臥室裝修中,有很多需要注意的地方。現在的臥室,室內功能越來越完善,舒適度也越來越高,基本可以滿足主人的任何生活需求。
新中式風格的出現既滿足了現代人對於中國傳統文化精神的追求,又能體現出現代人對於傳統中國文化的現代感的理解。
餐廳裝修風格是讓很多人頭疼的問題,其實流行風格每年都會變化,選擇自己最喜歡的即可。我們在餐廳裝修的時候可以簡單裝飾,像裝飾畫、掛盤都可以使用,不需要花費多大力氣。如果餐廳的桌椅傢俱都買齊了,就差牆不知道怎麼弄了,這種做法是最適合的。
新中式風格的設計大多數採用中國傳統元素,中式建築有自己的特點,實木型傢俱以及中國特色的門窗裝飾,給人一種悠遠、寧靜的文化韻味。
其中主要體現形式為簡單素淨的氛圍,因為中國傳統美學形式強調的是簡素美,不採用過多的裝飾技巧,體現出淡雅的文化氣質,加上現代感的設計更能體現出簡單素淨的感覺,同時多種傢俱也需要體現出統一的和諧性。
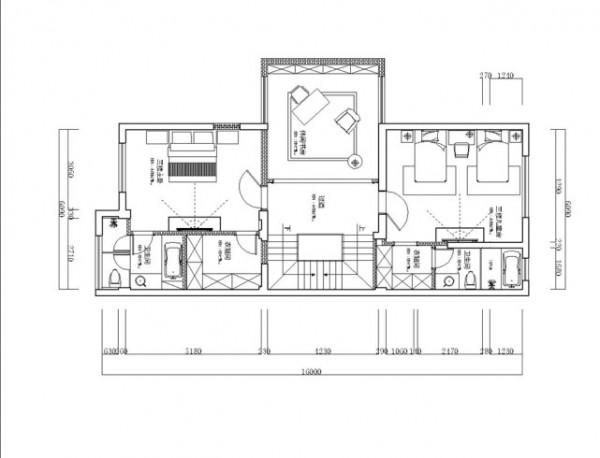
戶型圖,原始結構圖,平面佈局圖,三樓平面
兒童房裝修應該避免這樣一個個誤區,不要用性別去判斷顏色,不要想當然男生適合淺藍色,女生適合粉紅色。小朋友自己是有答案的,讓小朋友自己決定吧。
新中式風格的特點是將現代元素與傳統元素相互結合的形式而產生的,同時以現代人的觀點來體現出與傳統中國風格不一樣的設計。
戶型圖,原始結構圖,平面佈局圖,二樓平面
戶型圖,原始結構圖,平面佈局圖,三樓平面
圖,閣樓平面
戶型圖,原始結構圖,平面佈局圖,閣樓平面
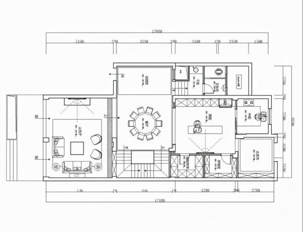
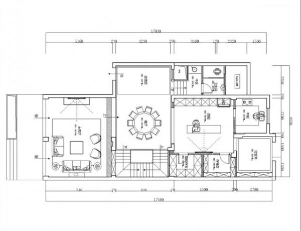
戶型圖,原始結構圖,平面佈局圖,一樓平面
圖,閣樓平面
,平面佈局圖,一樓平面
樓平面
,平面佈局圖,一樓平面
