如何在“內卷”中脫穎而出?
人生最低的境界是平凡,其次是超凡脫俗,最高是返璞歸真的平凡。
——周國平
淨
![]()
![]()
別林斯基曾說:“純樸是藝術作品的必不可少的條件,就本質而言,它排斥任何外在的裝飾和雕琢。”當我們身處於五顏六色的時代,白色就彷彿心中的一方淨土。
應用白色牆體和流暢的弧形線條搭建出別緻的櫥窗造景,建築外立面構築出多維立體結構。上方展示logo,下方引光線入室。同時,原始混泥土承重柱也實現了一種返璞歸真的美,二級梯步順勢而上,自然融入整個場景之中。
![]()
![]()
白色的防水藝術塗料塗滿整面外牆區域,在街景之中給人帶來了一種乾淨的視覺體驗。而4個直徑統一的小視窗又使得整面牆不至於單調,搭配上從內部透出的柔和的光暈,使得整個外立面簡約而不簡單。
徑
![]()
![]()
曲徑通幽處,有限寬度的入口,申引出通透明亮的室內空間,上面若隱若現留下城市伸縮變化的影子,豐盈了視覺感受,引人一探究竟。
鏡
![]()
![]()
鏡是服裝店的靈魂,在燈光下可變成映象的大門,以及在自然光線和室內燈光交點的鏡面,隨時可以為顧客帶來第一時間的試衣反饋。魚骨狀的燈飾置入其中,人在試衣時的走動與光影發生互動,可跟隨腳步肆意欣賞,也可駐足靜靜觀賞,帶來無數種非凡體驗。
靜
![]()
![]()
![]()
![]()
![]()
歌德說:“成功的藝術處理的最高成就就是美。”無論是混凝土澆築的陳列臺,還是由最簡單的點和線組成的吊燈,亦或是純黑色的壁爐,看似與現代城市格格不入,但經過藝術設計的排列組合,卻為燈紅酒綠的喧囂帶來一份寧靜,彷佛一瞬間迴歸到了最樸實的田園生活。
![]()
![]()
大廳的服務區域,設定在中部靠牆一角,不干擾行走動線,同時便於觀察欣賞。刻意地迴避主體視線,避免破壞整體畫面和諧。獨具風格的單人椅,給人帶來無限思考,可以化解等待的焦慮,迴歸於平靜。
![]()
白色作為百搭的顏色,既不會奪走產品的色彩,也更容易凸顯出產品的真實。牆面運用漫反射原理,減少光汙染,藉助嵌入式照明設計表達空間光線,讓顧客對空間的觀感層層遞進。
![]()
![]()
而樓梯則採用“退化”設計,將扶手剔除,營造出科技感,梯步結構按照合理的高度等比例精心排列,帶來一種規律而有層次的美。牆面的線性燈光平行向上延伸,在承上啟下的同時吸引顧客向上探索。
![]()
車爾尼雪夫斯基說:“追上未來,抓住它的本質,把未來轉變為現在。”設計師正是很好地把握了藝術的本質,以點、線、面的方式鋪開,聯合整個場景組合串聯排列,逐步加深顧客行走其中的體驗和情緒。同時材料、工藝磨合呈現,儘量還原材質真實的一面。刻意裸露的原始感與肌理感盡顯細節之美。
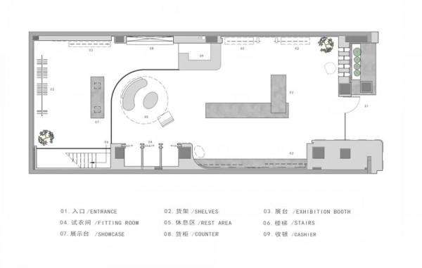
專案資訊
PROJECT INFO
專案名稱 | 城市麗人
專案地點 | 湖北荊州
空間設計 | YOUNG DESIGN 樣設計
主創設計 | 王旌宇、郭楠
設計面積 | 177 ㎡
專案攝影 | 上海木隼建築攝影製作
作品版權 | YOUNG DESIGN 樣設計
展覽|菜市場、咖啡店、二手書店……未來以北設計工作室作品背後的生活圖鑑
國內最大潮玩店:X11再造Z世代最愛潮流地標!
花廚新店落地上海“頂流”商圈:構建美學餐飲空間
成都寬窄巷子店鋪“上新”:好利來1992概念店
新商業建築 | 食空製造 | 環球展覽設計
快閃商業精選 | 創意視覺營銷設計
場景喚醒實驗 · 論壇 · 工坊
