2021年還有兩月多就過完了,就我個人而言,做設計的狀態是比較懶散的,有客戶就做、沒有客戶就休息。通常一年做五到十戶,掙點外快就差不多了。雖然掙得不多,不過很喜歡這種狀態,可以專注的做一件事:從原始平面到平面最佳化佈局、從平面到三維立面推敲、從立體模型到施工圖紙,從施工圖紙到實裝落地,就像看著自己的孩子一點點長大,還是頗有成就感的。
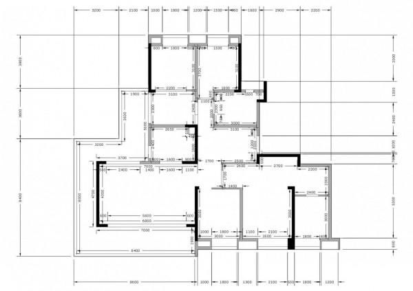
當前這季節不大適宜於裝修,通常也是我開始給自己放長假的時間。既有天氣的原因,也有工人師傅們春節都要回家的原因,不過我還是意外的接到了委託。下面來看戶型圖:
五室兩廳一廚兩衛、動靜分明的格局,採光良好的南向三開間、面寬七米的客餐廳、闊綽的主臥以及可以作為跑道的270度大陽臺;樓棟位於樓盤中心的“樓王”位置,一梯兩戶,很不錯的改善大平層。產權面積209平,陽臺半計產權;經過測量連陽臺在內,實得使用面積176平,得房率還行吧。
業主夫婦兒女雙全,老人也跟著一起住,常住6口人,主臥之外,需要設定兩間兒童房、一間老人房、一間客房;希望能有間獨立書房、獨立的茶室,以及一間孩子練習小提琴的琴房。
下面對照原始結構稍作分析:
1、整個屋子面寬18.3米,進深達15.8米,南、西、北三面採光,但玄關全暗、廚房採光一般;
2、承重牆體不多,有一定的改造最佳化餘地及可能;
3、玄關面積偏大,達到了4.2米乘2.5米的尺度,比大多數緊湊戶型的次臥都大,且玄關南北兩面牆體縮排有些大,南面縮排70釐米、北面縮排60釐米,通常玄關櫃深度有35釐米就足夠了;
4、主臥面積達到了27.4平,主臥衛生間也達到了7.2平,主臥北端一片長條形的空間面寬7.5米,進深1.7米,看似寬敞卻不好利用,造成較大空間浪費;
5、主臥儲物略有不足,但其衛生間偏大,公衛承載4口人使用,相對卻有些侷促;
6、陽臺雖闊綽,但畢竟不能真作為跑道,1.3W的單價,必須設法利用起來。
按照業主的功能需求,還要費些功夫最佳化,今天就先分享到這裡。對這個戶型最佳化感興趣的條友,可以關注後續。
