sponsored links

三層歐式別墅,外觀華麗,格局舒適,提升全家人的生活品質

三層歐式別墅,外觀華麗,格局舒適,提升全家人的生活品質

品牌:建房說

1、別墅圖紙編號:JF20597

2、主體毛坯參考造價:47-57萬

3、佔地面積:152.2平方米

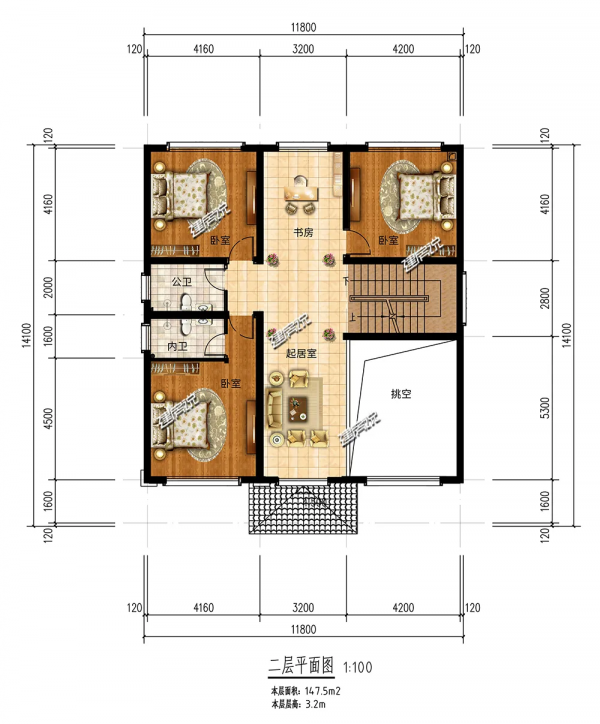
4、建築面積:422.1平方米

5、開間11.8米,進深14.1米

6、磚混結構,建築高12.952米

設計功能

一層:客廳、2個臥室、2個洗手間、廚房、餐廳

二層:挑空客廳、3個臥室、2個洗手間

三層:起居室、2個臥室、洗手間、露臺

全景展示圖

三層歐式別墅,外觀華麗,格局舒適,提升全家人的生活品質

三層歐式別墅,外觀華麗,格局舒適,提升全家人的生活品質

三層歐式別墅,外觀華麗,格局舒適,提升全家人的生活品質

三層歐式別墅,外觀華麗,格局舒適,提升全家人的生活品質

三層歐式別墅,外觀華麗,格局舒適,提升全家人的生活品質

平面佈局圖

三層歐式別墅,外觀華麗,格局舒適,提升全家人的生活品質

三層歐式別墅,外觀華麗,格局舒適,提升全家人的生活品質

三層歐式別墅,外觀華麗,格局舒適,提升全家人的生活品質

三層歐式別墅,外觀華麗,格局舒適,提升全家人的生活品質

分類: 家居
時間: 2021-09-17

相關文章

三層歐式別墅,精美雕花在夜色的襯托下,讓別墅更顯得金碧輝煌

三層歐式別墅,精美雕花在夜色的襯托下,讓別墅更顯得金碧輝煌
老家房子千千萬,唯有自家最好看.在老家建一棟小別墅,算是作為給奮鬥多年的自己的禮物,也改善了家人的生活環境,提高生活質量. 下面這款是湖南省永州市程總私人定製的三層歐式別墅,大氣華麗,精美的雕花.精緻 ...

三層歐式別墅,外型高階華麗,簡直就是高階大氣上檔次的代言

三層歐式別墅,外型高階華麗,簡直就是高階大氣上檔次的代言
品牌:建房說 1.別墅圖紙編號:JF20596 2.主體毛坯參考造價:65-75萬 3.佔地面積:233.7平方米 4.建築面積:615平方米 5.開間17.52米,進深14.91米 6.框架結構,建 ...

三層歐式別墅,外觀高階上檔次,不論從哪個角度都十分有層次感

三層歐式別墅,外觀高階上檔次,不論從哪個角度都十分有層次感
品牌:建房說 1.別墅圖紙編號:JF20621 2.主體毛坯參考造價:39-49萬 3.佔地面積:126平方米 4.建築面積:345平方米 5.開間12米,進深10米 6.框架結構,建築高度10.5米 ...

三層歐式別墅,佔地方正,配色清新大方,符合大眾審美

三層歐式別墅,佔地方正,配色清新大方,符合大眾審美
品牌:建房說 1.別墅圖紙編號:JF20687 2.主體毛坯參考造價:38-48萬 3.佔地面積:124.1平方米 4.建築面積:356.61平方米 5.開間9.42米,進深15.855米 6.框架結 ...

三層歐式別墅,配色清新雅緻,造型大氣精美,別墅看起來明亮溫暖

三層歐式別墅,配色清新雅緻,造型大氣精美,別墅看起來明亮溫暖
品牌:建房說 1.別墅圖紙編號:JF20677 2.主體毛坯參考造價:36-43萬 3.佔地面積:121平方米 4.建築面積:333.5平方米 5.開間10米,進深12.5米 6.磚混結構,建築高12 ...

三層歐式別墅,端莊大氣上檔次,看一眼就讓人忘不了

三層歐式別墅,端莊大氣上檔次,看一眼就讓人忘不了
品牌:建房說 1.別墅圖紙編號:JF20630 2.主體毛坯參考造價:40-50萬 3.佔地面積:133平方米 4.建築面積:368平方米 5.開間10.8米,進深13.8米 6.框架結構,建築高12 ...

簡單美觀的歐式別墅,如此漂亮的外觀,讓人心動

簡單美觀的歐式別墅,如此漂亮的外觀,讓人心動
我們應該每年給自己定一個小目標,讓自己每年都有足夠的奮鬥動力.這幾年不用爸媽幫我自己要買了車,也活成了別人嘴裡別人家的孩子,這也是對我自己努力成績的肯定. 今年也是一樣,給自己定一個大目標,攢一點錢, ...

2層歐式別墅,佈局合理,功能齊全,為家人帶來溫馨的居住體驗

2層歐式別墅,佈局合理,功能齊全,為家人帶來溫馨的居住體驗
歐式別墅圖紙1 品牌:建房說 1.別墅圖紙編號:JF20353 2.主體毛坯參考造價:27-36萬 3.佔地面積:111平方米 4.建築面積:204平方米 5.開間11米,進深10米 6.框架結構,建 ...

一層歐式別墅,別墅造型新穎別緻,與天空相映生輝,造型感十足

一層歐式別墅,別墅造型新穎別緻,與天空相映生輝,造型感十足
在外打拼多年小有成就時,總會想起家鄉秀美的山水.清新的空氣.淳樸的鄉親.可以在老家,蓋一棟不大不小的房子,給父母養老,改善父母的居住環境. 下面這款是河南省安陽市韓總私人定製的一層歐式別墅,專門為父母 ...

造價50萬的三層現代別墅,面積將近500平,適合全家總動員

造價50萬的三層現代別墅,面積將近500平,適合全家總動員
這款造價50萬的三層現代別墅,最適合假期帶上家人一起來別墅轟趴,房間配置齊全,擁有多間臥室,還有兩個棋牌室,一個KTV,大大的露臺,足夠全家人一起來休閒放鬆. 圖紙編號:xgf3138 [所有圖紙均可 ...

5室2廳3衛1廚1工作室(茶室)1書房2衣帽1花房1露臺雙層歐式別墅

5室2廳3衛1廚1工作室(茶室)1書房2衣帽1花房1露臺雙層歐式別墅
今天給大家分享一個帶院子的兩層歐式別墅. 這個建築總面寬是14.4m,總深度是17.5m. 一層平面圖 一層把廚房餐廳佈置在西南面的側房,與客廳居住空間分隔開來,使用起來更加方便.東南角佈置了一個工作 ...

乾淨清爽的95㎡原木風二居室,舒適、休閒又有品質的居家生活
今天和大家分享易路榮昕設計師江帆老師的作品,業主是知名IT界程式管理層,對智慧功能性和生活品質有較高的要求,喜歡自然舒適的乾淨清爽風格,設計師在色調和材質上做了相應的平衡,整個基調以白色為底色,淺木飾 ...

新房終於喬遷入住,裝修不豪華不大氣,舒適的幸福新生活開始啦

新房終於喬遷入住,裝修不豪華不大氣,舒適的幸福新生活開始啦
換了一個家,其實就是換了一個新的生活環境.辛苦打拼換來的家,按自己的需求去裝修,不要求多麼豪華多麼大氣,儘量能裝出一家人所期待的效果.去除甲醛後,挑選一個合適的時間喬遷入住,享受新環境,太幸福了. 屋 ...

我一眼相中這種裝法,掄掉飄窗砌12公分地臺+衣櫃,提升生活品質

我一眼相中這種裝法,掄掉飄窗砌12公分地臺+衣櫃,提升生活品質
Q:飄窗拆不拆? 不拆→可以做休閒區,平時在這躺著曬曬太陽,真的很舒心. 拆除→每個人的裝修需求不同,如果飄窗對自家沒啥用的話,也就是隻用來放衣服了.所以選擇拆掉,動動腦子發揮最大的功能,不是更划算嗎 ...

11x12米歐式別墅,旋轉樓梯+36平大餐廳,這樣的佈局,你不心動嗎

11x12米歐式別墅,旋轉樓梯+36平大餐廳,這樣的佈局,你不心動嗎
一幢獨門獨戶的小樓 滿載歡心的風景和陽光 款待每一個追求幸福的人 今天介紹的的這款三層簡歐別墅 7臥2廳+可容納多人大餐廳 配起居室+書房+茶室 讓你的居家生活盡顯雅趣 效果圖展示 整個別墅採用米白色 ...

三層新中式別墅,講究空間層次感,有格調又不落俗套

三層新中式別墅,講究空間層次感,有格調又不落俗套
品牌:建房說 1.別墅圖紙編號:JF20604 2.主體毛坯參考造價:30-39萬 3.佔地面積:100平方米 4.建築面積:258平方米 5.開間9.16米,進深11.26米 6.磚混結構,建築高1 ...

三層新中式別墅,韻味十足,不僅上檔次,還很有文化品味

三層新中式別墅,韻味十足,不僅上檔次,還很有文化品味
品牌:建房說 1.別墅圖紙編號:JF20605 2.主體毛坯參考造價:58-68萬 3.佔地面積:173平方米 4.建築面積:508平方米 5.開間16.4米,進深14.4米 6.異形柱框架結構,建築 ...

金九銀十的好日子,來一套這樣的二層歐式別墅,十里八村都羨慕

金九銀十的好日子,來一套這樣的二層歐式別墅,十里八村都羨慕
去過的地方越多,心裡越覺得還是家鄉那一畝三分地最讓人心安,都說村外的世界是多麼繁華,但其實對大多數老百姓來講,安居樂業一輩子,便是最好的選擇. 既然如此,蓋一棟稱心如意的房屋,便成為了最重要的一件事, ...

實拍第五代途勝L,外觀變樣動力再提升,16.18萬起,是你的菜嗎?

實拍第五代途勝L,外觀變樣動力再提升,16.18萬起,是你的菜嗎?
今年4月,第五代途勝L上市,在就坊間引發熱議.因為此前該車以實用性著稱,新車在保留原先優勢基礎上更進一步,對空間.動力和科技性進行了全面的升級,帶來了不一樣的體驗.第五代途勝L官方指導價為16.18萬 ...