能“列為榜樣”的裝修設計,一定有其“厲害之處”。
這套來自深圳的裝修案例就是如此。
其中的裝修風格不能保證人人都喜歡,但女屋主核心的“裝修手段”、“設計智慧”,真的非常值得參考,妥妥的“榜樣式”設計思路,考慮非常周到。
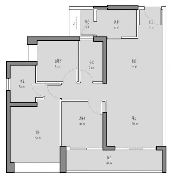
    房屋情況及設計說明
98㎡的使用面積,標準的小三臥,兩廳兩衛格局。(資料不含公攤)
女屋主鄭小姐是一位在深圳打拼的獨立女青年~
做事雷厲風行的她,喜愛極簡乾淨的室內裝修佈置。
雖然房子當下只有她一人居住,但她也很有遠見、且周到地考慮了“未來的居住可能”。
所有改造亮點,都在設計圖中清晰標註,喜歡探究設計的,可以放大檢視。
好設計“三言兩語”講不完,喜歡直接看實景圖的,就接著往下看~
    屋內實景
在小區施工規範允許的範圍內,更換了原來開發商的大門,對原有大門進行了適當地向右拓寬。
並把右側鞋櫃背後的牆體拆掉,朝廚房方向內推(新建),從而打造了現在這個尺寸適宜的玄關區。
    
        ▲客廳空間總覽
雖不是南北通透的格局,但一開門視線就能望到屋外,整體開闊的視野彌補了戶型上的不足。
    
        ▲客餐廳橫向視角總覽
整個裝修是極簡風,符合女主人乾淨、幹練、高階的氣質。
簡約的線條,隱形門的櫃子、無主燈的設計、素雅的通鋪水泥大板仿古磚,組合在一起顯得格外大氣,簡約不簡單。
吊頂細節的處理也很精簡到位。
加長的空調風口設計,更有整體性和視覺延伸感。
透過層高區分開客廳、餐廳,使其主次分明。
提到無主燈:
好處不光是簡潔大氣,更是能讓室內燈光照明效果更為柔和均勻。
分散式的光線,有效吊燈、筒燈、射燈加以組合,能均勻照射到空間的邊角處,防炫目的效果仿照白天的自然光線,柔和護眼,讓極簡之家多了不少溫馨之感。
透過右側電視牆櫃體和左側區域形成的牆面結構差,輔以白色護牆板通鋪牆面,讓整個玄關空間從視覺上顯得更大,很妙。
更妙的是餐廳區域的設計,著重考慮到了餐廳和左側客廳以及右側廚房的居住動線關係。
加長型的定製吧檯式餐桌設計,不僅可以容納多人聚餐,還能作為廚房的備用西廚區,更是可以作為客廳之外的臨時休閒場所。
不容小覷的是這個空間當中,簡潔有充足的收納。
櫃子不是單純的收納工具,更是為整個空間的顏值加分。
在壁櫃銜接餐桌的區域,設定餐邊收納區,用定製的玫瑰金板材打底,為整體空間增色的同時,又顯得格外高階。重點是實用、好打掃,咖啡漬、茶漬弄上去都能輕鬆擦乾淨。
打通了廚房外的生活陽臺,透過隱藏式管道,設定新風,解決左側公衛的排風換氣問題。
擴大後的廚房實用性增加不少,能容納多人同時配合料理食物,櫃體空間充足,各種實用電器嵌入式佈局一應俱全。
“假開放式”的廚房,符合年輕女主人的喜好,實則在餐廳廚房結構交界處,暗藏聯動推拉門,關上後就是安全好打理的封閉式廚房。
這樣的設計,安全、顏值、功能、易清潔性都完美滿足,也難怪這樣的設計理念會被越來越多人喜歡~
除了喜歡“假開放式廚房”,還有越來越多人更喜歡“全屋裝滿櫃子”的設計。
因為現在的極簡櫃子太妙了,一門到頂的白色櫃門,視覺上和牆面頂面幾乎融為了一體,絲毫沒有壓抑感。
    
        ▲玫瑰金鏤空作為層次跳色
主要是現在的人越來越理性了,要顏值,也要實用性,而且房子住久了家裡的東西一定會越來越多,這樣滿滿一面牆的“隱形儲物櫃”,超實用。
稱女主的“裝修手段”為榜樣,絕對不為過~
    
        ▲電視牆櫃細節
    
        ▲豎紋沙發背景牆,簡約的層次肌理
    
        ▲公衛
公衛的位置更居於全屋動線核心區域,考慮到經常要在這裡洗手、做清潔。
明智地選擇了把幹區擴大,把溼區縮小。
幹區,得以擁有更大更好用的洗漱區,還有充足的鏡櫃做收納,其次還設計了洗衣機、烘乾機的擺放區域,節約了陽臺的晾曬面積,對於潮溼悶熱的深圳來說,好處太多。
溼區因利用率低,把面積儘可能縮小,確保可以正常如廁、洗澡即可。
    
        ▲次臥
雖然平時主要是一個人住,但偶爾父母也會探訪留宿,或親朋暫住,這個房間暫且就用來當客房。
即便不常住人,設計也絲毫不含糊,一體式的半牆床頭靠背,顯得小房間更大氣,右側也沿用了主空間的極簡櫃子設計,整體淺色系非常乾淨明亮。
次臥一部分空間挨著陽臺,就把陽臺一半的面積包了進來,設計了一個備用的書桌。
主要考慮到父母來住會用來看書,朋友來住會用來臨時辦公,將來若是有了孩子可以拿來當學習桌,未來生活中有可能存在的條件,幾乎都提前考慮到了。
書房的設計也很妙,雙門洞,可以從公衛門口進入,也可以從主衛門口進入,形成了一個暢通無阻的動線,提升利用率的同時,也更利於室內通風。
利用飄窗的空間打造了一組書桌,延長的桌面恰好給予了下方放腿的空間,一旁緊挨著角落結構的書桌設計,用了透明超白玻璃遮擋灰塵,取物也一目瞭然,很顯生活氣息。
右側還留了一組牆面空間,預備用來安裝櫃子。
目前,這個書房還可以作為健身區、瑜伽室。將來若是有了孩子,這個房間可以安裝櫃子,並改造成一間臥室,或是作為孩子的遊戲區。
小結:(圈重點)
在考慮以後不時之需的情況下,也滿足了當下的居住需求。
利用床對面衣櫃和左側牆角形成的富餘小空間,擺放換鞋凳,確保空間寬敞感,也能當作更衣區。
    
        ▲主臥內部視角
依然是經典的隱形門衣櫃,連帶吊頂出風口的一體式設計,整體感超棒,左側床頭頂部還有見光不見燈的照明光暈,溫馨十足。
兩個房間之間可以直達,前面提到過,無論是空間的利用率還是通風效果都得到了保證。
利用推拉門的設計,節約內部空間。
使得淋浴區左側,還能裝下一個女主人喜愛的浴缸泡澡區~
    
        ▲客廳陽臺
包給次臥的一半陽臺封閉了起來,另一半靠近客廳的臥室選擇了開放式,牆地頂鋪設了防水、耐曬、防滑的整合仿木紋牆板。
屋外是一覽無遺的壯闊城市光景,真是太美了~
陽臺一分為二,兩種利用方式,超讚~
    文末總結
案例回顧,這套案例的四大主要亮點:
- “假開放式玄關”的靈活性,多重優點。
- 備用空間的可塑造型,比如書房的可變動性。
- 充足的隱形櫃儲物空間,確保家中不因物多而凌亂。
- 恰到好處的極簡設計,讓面積不大的戶型顯得很大氣。
這套裝修案例你們喜歡嗎?歡迎在評論區發表寶貴看法,感謝閱讀!
























 
			 
			 
			 
			 
			 
			 
			 
			 
			 
			 
			 
			 
			 
			 
			 
			 
			