本案例這套實際面積99㎡的新房,房子位於中國臺灣省,四室兩廳兩衛的戶型,業主是一對新婚夫婦,全屋選擇現代簡約風格的裝修,舒適寬敞又實用!下面就和齊家云云一起來看看吧,希望大家喜歡~
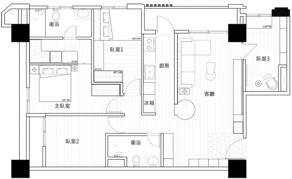
▲平面佈局圖
▲入戶玄關,做下沉式設計,鋪貼了拼花地磚,有效界定了落塵區域。進門左手邊定製了一排玄關櫃,城堡造型和洞洞板的加入,告別了生硬與呆板。
(此處已新增小程式,請到今日頭條客戶端檢視)
▲客廳,牆面大面積留白,搭配淺木色地板,加上無主燈設計,乾淨簡約不失溫馨。放棄了傳統的茶几,留出了更多的活動空間,視覺效果也得以提升。電視牆塗刷淺藍色乳膠漆,搭配橡木懸空電視櫃,以及一側洞洞板,空間活潑不單調。
▲玄關櫃一側定製了頂天立地的收納櫃,裡面暗藏可摺疊的餐桌,平時不用收進去,不佔用空間。櫃體中間留空打造成操作檯,作為西廚區使用,充分利用了空間。
▲將一間臥室改造成書房,整體塗刷深藍色乳膠漆,看上去獨立且安靜,有利於提高工作效率。
▲主臥,整體以藍色系為主,將兩面牆採用三個不同色度的藍色牆漆塗刷,做分色牆設計,造就起伏視覺感,宛如崇山峻嶺的山色夢境。設計師還在主臥內隔出了衣帽間與主衛,打造成功能強大的大套間,大大提高了空間利用率。
▲兒童房,整體以天藍色為主,搭配靈活的彩繪牆設計,讓空間更活潑更有童趣。齊家云云提供更多裝修資訊,喜歡我的朋友記得收藏和關注哦!(素材來源於網路,無法核實真實出處,如有侵權,請直接聯絡齊家云云刪除。謝謝!)
