意式都市簡約風,拋開浮華、喧鬧的外表,還原生活本真。
注重設計,更加註重生活方式。本案138㎡住宅空間,業主是幸福的一家四口,一對夫妻帶著一雙兒女。男業主溫文爾雅,女業主優雅風趣,愛好廣泛,她希望擁有足夠多的儲物空間和辦公空間,喜歡簡單、輕鬆、自然的居住環境。
設計師圍繞空間、內涵、質感的主題,用細膩的設計,詮釋出業主高雅的生活品位。
一、戶型解析與佈局
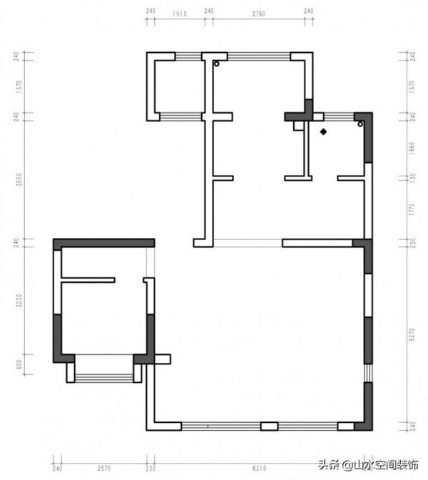
一層戶型分析與佈局
二層戶型分析與佈局
設計要點:一層戶型方正,南北通透,採光、通風效果佳。客廳超大開間,與景觀後院相連,空間感極強。但廚房位置不合理且空間小、原始餐廳空間也較小,後期可能會使用不便,稍作改動。二層承重結構較少,佈局靈活度高,採用全明設計,採光通風良好。
二、落地實景
尊重業主的需求,讓生活迴歸到一種更加簡單、沉靜的方式,將設計中融入生活氣息,營造出一種現代、輕奢而不張揚的居家空間。
客廳
整體採用黑白作為底色,融入深咖色和線條元素,以及現代簡約的沙發、茶几等傢俱陳設,營造出沉靜內斂的空間氛圍。推門而入,開放、自在的空間,遇見最真實的自我。
餐廚
餐廳與客廳相連,與開放式的廚房相呼應,簡單的黑與白,看起來既穩重、大氣,又不失時尚精緻感,品位不凡。開放式的吧檯與廚房以實用性為主,色彩明亮,簡潔明快。
臥室
位於二樓的主臥室空間,依然採用業主喜愛的深咖色作為點睛之筆,與木地板、窗簾形成豐富、分明的層次感,讓空間看起來更加柔和、舒適。注重空間搭配和佈局的舒適、低調時尚的意式風格逐漸成為時下一種潮流。
女孩房的設計安靜、柔和,淺灰色中融入溫柔的粉色,輕盈潔白的紗帳,處處洋溢著美好的童趣。
男孩房的設計充滿幻想、奇妙的元素,以黑與白作為主基調,融入男孩子喜愛的太空、外星等科幻元素,創意十足,給孩子無限的想象空間。
一方空間,動靜有序,取捨有度。透過設計,最佳化佈局,這套138平米的新居,最大限度地滿足了業主希望全屋增加自然採光的需求,並留出足夠的活動空間、收納空間,以及個人獨立空間,讓整個家居環境更加舒適健康。
