| 隔壁鄰居都驚呆了:只有67㎡?! |
賦予空間更多可能,使人與境產生新的對話。
——辰境設計
小戶型的神奇改造總令人羨慕,
但今天這個“神仙操作”,
看完更是忍不住感嘆一句:絕絕子!
在這個67㎡的小家中,
設計師把原本的一間臥室改成了兩間,
還透過「盒子」恭桶間的置入,
打造了一個四分離衛生間!
這個家看起來既寬敞又舒適,
拍畢業照時,連攝影師也忍不住感慨:
明明是67㎡的家,看起來卻彷彿有167㎡!
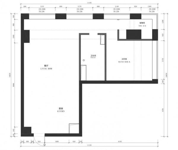
原始戶型
套內面積67㎡,戶型基本呈現L形,
長窗朝西,景色臨街是優勢。
但臥室空間顯然無法滿足一家四口分配,
且南北東西向均有巨梁,所有管道無法穿越,
建築外立面也不允許增設新孔。
新風中央空調和地暖是屋主的硬性需求,
功能改造所需要的上下水位移也是勢不可擋,
如此一來,層高更是捉襟見肘……
平面佈置圖
屋主希望這個家能陪伴兩個孩子的成長,
滿足實用收納且具有品質感和趣味性。
設計師打破原有戶型的限制,
透過位移和分割衛生間,
在空間“置入盒子”的手法啟用空間,
形成新的功能和場景。
改造要點:
1、透過分割和位移衛生間,置入“盒子”恭桶間;
2、“盒子”兩側形成了兩道獨立動線,分別通向兒童房與主臥,且順勢形成了四分離的衛浴佈局;
3、起居室透過佈局,依次滿足玄關-餐廚-客廳-學習區的功能;
4、透過地新風-功能佈局-管道排布結合,解決巨梁帶來的問題。
在有限的空間內滿足屋主的所有需求,
巨量儲物,家庭遊樂,鋼琴,書房,
四分離衛生間,臥室,兒童房……
延伸,穿透,借景手法的使用,
讓每個區域通透感都有了一定的改善,
不同生活場景的收納也各自得到了解決。
玄關
入戶玄關設定L型衣帽鞋櫃和裝置高櫃,
解決入戶收納問題的同時避免視線一覽無餘。
櫃體內隱藏了洗衣機和烘乾機
以及所有的清潔用品。
懸空櫃體下設燈帶引導路徑,
拉出櫃體暗藏旋轉鞋架,儲物力max。
靠近入戶設定洞洞板來提高利用率。
頂部採用木飾面與燈膜的搭配,
大面積的燈膜化解玄關採光問題,
頂部線條變得更加整潔,
三種材質的對比也使空間更有質感。
廚房
廚房和玄關採用了木飾面分色,
透過材質暗示與客廳區域的過渡。
木飾面與灰色瓷磚的搭配
讓空間散發出沉穩而有質感的氛圍。
廚房區域的燈光設計豐富而靈動,
利用了點、線、面等不同光源,
創造均勻柔和的居家感受。
牆面設定了多功能插座和管線機,
島臺下方特意設定了空間分類回收垃圾。
抽屜內利用了多功能五金,
便於分門別類收納物品,實用度滿分。
從客廳看向廚房,能看到燈膜灑下的餘光。
客廳
滿牆書櫃奠定了起居室的基調,
學習、玩耍、交流是這個空間的定位。
沙發背後打了滿牆的書櫃,
陳列小朋友的樂高與書籍。
背靠玄關櫃設定了鋼琴區域,
可謂名副其實的“文藝家庭”。
為了便於兩個小朋友席地而坐玩耍,
客廳沒有擺茶几,鋪了寬大厚實的地毯。
沙發對面設定了壁爐,看著就暖融融,
天冷時男主人喜歡坐在壁爐旁看書。
這個角度可以看到整體的空間佈局,
左側新置入的“盒子”,形成了左右兩側
通往兒童房與主臥的兩條路徑,
“盒子”的內部其實是單獨的恭桶間。
每個人在這裡都有自己喜歡的事物,
家庭成員的互動交流也十分順暢。
現代住宅中,起居室的功能已然改變,
不再單純以電視為中心,
而更多承載了連結家庭成員的作用:
學習,玩耍,就餐,觀影,
每一幕溫馨的場景都可以是空間的主旋律。
在客廳的承重樑上設定了2個掛鉤,
裝置則可以根據不同使用者靈活運用——
小朋友學習累了,就蕩個鞦韆玩耍一下~
男女主人在此都有自己獨有吊掛的裝備,
爸爸在這兒鍛鍊,媽媽在這兒瑜伽。
“盒子”的側面還設定了塗鴉區域,
方便2個小朋友的激情創造~
餐廳&書房
沙發另一側靠窗處是餐廳區域,
實木的大餐桌也是書桌,
因此也是一家人的學習、閱讀、手工之地。
靠近飄窗設定了燈光和輔助收納,
因整個房間的採光面都是西向,
特意用了蜂巢百葉簾來柔和光線、緩解西曬。
兒童房
從兒童房看向餐廳
恭桶間的側面開了不同尺寸洞口,
用磨砂亞克力隔開保障隱私性,
以一種趣味十足的方式改善內部採光。
兒童房空間採用了淡淡的綠色系,
定製了適合小朋友尺寸的上下床位,
樓梯其實也就是客廳那個鞦韆——
掛在客廳可以盪鞦韆,平時掛在臥室做樓梯。
兒童房也配備了單獨的學習區域,
讓兩個孩子將來可以獨立學習不受干擾,
座椅採用了適合小朋友不同升高的學習椅。
下方的金屬網格是地送新風的一個出口。
衛生間
獨立的恭桶間成了客廳一個獨特存在,
圓形的亞克力窗戶增加內部採光,
白板就是前文提到的小朋友們塗鴉的陣地,
下方金屬網格是地送新風的另一個出風口。
盒子”的內部
巖板一體定製小臺盆,單獨的排風系統,
開出的小孔洞帶來了寶貴的自然光。
通往主臥的通道凹出了洗手池,
下方懸空區域設定了掃地機器人所在。
右側的壁龕借用了壁爐上方櫃體的空間,
增加洗漱用品和護膚品收納。
原來的衛生間則形成了獨立的溼區,
有單獨的浴缸和淋浴區,並暗埋了電暖氣。
整個衛浴間四分離的格局互不干擾,
解決一家四口未來早上的同時使用情況。
主臥
主臥有一根600X400的梁,
設計師採用弧形進行了弱化處理,
同時也增加了空間的溫柔氣質。
主臥採用無主燈設計,畢竟
躺在床上時被強光刺眼實在不舒服,
照明全部依靠更柔和的燈帶實現。
飄窗的處理同樣沿用了客廳的方法,
凸出的部分暗藏了燈帶,
將高度設定到適合坐的尺寸,
同時也解決了收納問題。
好的設計離不開落地,因趕上疫情,
宛如經歷了一次夢想改造家過程,
施工中碰上的巨梁,差點讓方案全部推翻……
好在,一番努力換來了欣慰的結局,
每一個來到家裡的親友都會說,
不敢相信這是67㎡面積的家!
你對這個小戶型的改造有什麼看法?
歡迎移步留言區與我們探討~
房屋資訊
專案地址:北京 朝陽
使用面積:67㎡
專案總花費:50w
設計機構:辰境設計
設計費用:400-600元/平米
