二手老房改造遇到奇葩戶型,
設計師腦洞大開,業主驚喜連連。
歐式簡約風極致呈現,成功打造夢中豪宅。
105㎡老舊房逆襲變成“歐式殿堂”。
★億陶實拍案例★
房屋面積:105㎡
房屋原戶型:2室2廳1衛1廚
房屋現戶型:3室2廳2衛1廚
居住人口:3人
裝修風格:歐式·簡約
房屋屬性:二手老房
裝修費用:50萬
房屋資訊
這期我們要改造的是一套業主剛買入的二手老房,位於黃浦區徐家彙路,磚混結構的房子,年頭已久,裝修過時,套內105㎡,原戶型2室2廳1衛1廚。
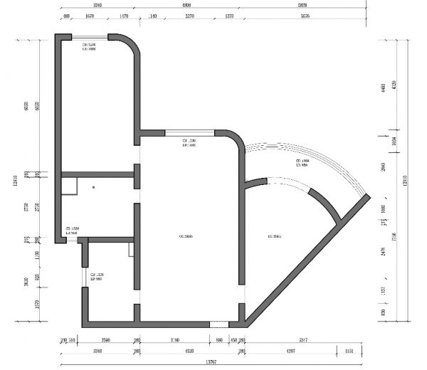
這是原始戶型圖,造型非常別緻吧,我們從右往左看下空間佈局,最右邊扇形區域為主臥+陽臺,中間上部為客廳+下部為餐廳,左邊最下面是廚房、中間是衛生間、上面是次臥。
透過原始戶型圖的結構印象,我們先跟著設計師量房時拍下的照片,瞭解一下原始房屋狀態,上圖是入戶門,進門玄關處當時無鞋櫃,缺少收納衣物鞋子的空間。
入戶後,左側空間是餐廳局域,餐廳佈局沒有具體的方位以及合理的動線劃分,前面的門洞是進入廚房的。
廚房間灰暗老舊,門洞太小,缺少與外部整體空間的聯動性,進門見一字形長條廚臺,內部空間浪費較多,沒有廚房電器的擺放區域,相對現在的女業主烹飪需求已相當落後。
再看客廳空間很不規則,左邊衛生間與次臥兩個獨立門洞極不合理,佔用了客廳可利用牆面空間;頂部一排排的燈光管充分證明了之前的室內光線不均勻,客廳右上角為異形弧角,需要注意空間融合。
衛生間的空間挺大,但沒有做到乾溼分離功能區劃分,而且管路還是明排的,非常老套陳舊,業主需求是想把衛生間改成三式分離空間,並多增一個備用馬桶間。
次臥空間挺有深度,業主考慮改兩間,孩子一間,孩子個子較高,對床尺寸有要求,備留一間老人的(家裡老人偶爾會來住1-2個月),但如果強改兩間,空間感會瞬間喪失顯得非常擁擠,這塊設計師如何巧妙改造的呢,我們最後再看吧!
再來看主臥,扇形的房型,空間比較小,衣物收納是個問題,床的朝向如何擺放合理也是個問題,主臥往裡是陽臺。
主臥陽臺屬於一個挺長的弧形空間,之前完全沒有充分利用,這次與業主改造溝通,陽臺左半邊女業主想要一個洗漱臺和晾曬區,陽臺右半邊男業主想要個辦公休閒區。
億陶設計師
業主當時透過籬笆網平臺找到億陶裝飾,看了籬笆日記的帖子以及其它業主對億陶的評價,最終在幾家裝修公司的比較下,看中了億陶設計師-蘭天的改造方案。
總監設計師
設計師蘭天從事家裝室內設計15年,蘭老師常說一句話:以家為中心,以人性化設計為半徑畫圓,呈現多元化開放式設計思維與理念。
蘭老師平鋪圖改動亮點:
1、首先設玄關,增添換鞋凳、鞋子收納櫃等。
2、主臥利用不規則空間改造了可觀的收納儲物櫃,規劃出了化妝臺,展示櫃以及衣帽間。
3、陽臺改造了男業主的休閒榻榻米空間,以及女業主的洗漱臺、晾曬區。
4、擴大廚房門洞增加區域聯動,餐廳區域增添了中島臺,與客廳的空間做了動線劃分。
5、客廳做了對稱的弧度融合,衛生間獨立門洞填實,增加客廳牆面使用空間。
6、次臥的空間做了很大的調整,解決了來老人的居住問題,也解決了孩子休閒問題,同時保證了整體空間的合理性。
7、衛生間設計師做了四分離空間,馬桶間、淋浴間、泡浴間,洗衣幹區間。
施工細節
選好良辰吉日,然後就開工大吉了,畫面真喜慶呀!圖中最左邊是此房專案經理:董爾富隊長,最右邊就是咱們設計師:蘭天老師。
記得水電驗收時,印象非常深的是業主對於億陶電工師傅的讚揚(電工:楊宏師傅),業主表示對楊師傅的電路施工質量非常滿意。
為何業主對楊師傅如此讚揚?因為業主家做了全屋內網智慧控制系統,所以楊師傅電路工程很多細節連結非常之重要,監理現場驗收時,各個環節零差錯,楊師傅十幾年的電工經驗在此專案中可謂是發揮的淋淋盡致,整體的排線工藝讓人賞心悅目。
經過長達3個月的施工,我們再去看此房的時候,全屋智慧系統、中央空調、定製櫃、整體牆面護牆板等基本樣貌已經成形,後期又透過1個月的軟裝佈置,此套房算是完成了真正的舊貌換新顏!下面我們來解析一下最終的實景效果。
實拍效果欣賞
玄關
以櫃體增設進門玄關位,左邊設計了多功能組合收納櫃,保證了充足的鞋子衣物收納空間,右邊新砌了獨立的磚體雜物間,進門處設計了內嵌式的換鞋凳,整個雜物間外層做了護牆板包裹。
餐廳
餐廳整體區域做了合理的動線劃分,頂部採用雙層歐式石膏線條吊頂增加空間的深度感,下方增設了中島臺讓餐桌擺放更有歸屬感。
中島臺後面的雜物間做了隱藏式門洞,提高了視覺完整性,並節省空間預留出通往廚房的走道,廚房的門洞做了擴大,並選用了透明式雙移門,與餐廳聯動性瞬間增強。
餐廳區域還做了壁爐裝飾設計,女業主特別喜歡,上面做了一個歐式的鐵藝壁畫裝飾,下面的壁爐整體結構找大理石廠定製加工而成,歐式生活的濃重色彩讓餐廳氣氛特別愜意。
廚房
進入廚房後,看到女業主左邊放了一款千石阿拉丁迷你烤箱,十分可愛哦,廚臺改造成了U型包圍式的,讓空間特顯通透,檯面功能區也做了合理劃分,整體廚櫃選用與外部相同的駝灰色為主題。
cooking,烹飪大師的戰袍。
客廳
巧妙設計造就完美空間,映入眼簾的客廳展現出了殿堂級的輕奢感,衛生間門洞填充後,做出寬大的電視背景牆,掛上了70寸的電視,坐在歐式的真皮沙發上盡情享受家庭影院。
我們再看下沙發後的牆體設計,首先都是用了非常精緻的護牆板做了包裹,其次左邊原始戶型牆角是有弧度的,設計師為了融合這個弧角的空間感,在右邊設計了對稱的弧角牆體做融合。
此設計一舉兩得,讓客廳與餐廳區域劃分更明確,更解決了單邊弧角的尷尬戶型缺陷;整套房的新風、中央空調控制系統觸屏面板也裝配在這面牆體上,操作起來也是十分方便。
衛生間
客廳通往次臥與衛生間做了同一門洞後,左邊為衛生間,右邊為次臥,在走道處設計了玄關展示櫃,專門放置大男孩的興趣手辦。
果然大男孩都喜歡機械手辦,展示櫃裡放了一輛布加迪轎跑機械模型,帥得有點過分,據說我們攝影師當場流下了羨慕的口水。
衛生間因為做了四式分離,不需要再裝門了,間接也節省了內部可利用空間,然後選用了一款中式復古的旭日東昇布簾做遮擋,真是十分應景啊,莫名有一種要去泡湯的感覺,哈哈。
左邊是洗漱臺及洗衣區,正對的門是淋浴間,右邊的門是泡浴間,靠近進口處右邊是獨立的馬桶間。
洗漱臺選用了懸空式臺櫃,下面方便打掃。洗衣機和烘乾機真是銀光閃爍啊,這兩款機器選自海爾旗下高階產品:卡薩帝系列。
徹徹底底的乾溼分離,淋浴間內做了雙層壁龕,放置洗浴用品很方便;泡浴間放置了簡潔的日式大浴缸,方便平常清洗;獨立馬桶間選用了懸掛式馬桶,增加了視覺空間感,後方設計了儲物櫃,平常抽紙都可以堆積在裡面很實用。
次臥
次臥做了空間劃分,次臥內間用於男孩睡覺,外間設計成了多功能房(兼睡覺功能),擺放了一個橙色懶人沙發,可以悠閒的坐在上面看書、打遊戲、看電視,右邊做了一體式的壁櫃,預留了電視擺放區及書本陳列區。
為了避免雙間床位佔用空間的問題,設計師在左邊櫃門設計了一個隱藏式床板,放下來後鋪上床墊就可以睡覺,也巧妙解決了偶爾來老人的睡覺問題。
次臥內間的右邊牆角是有弧度的,設計師透過櫃檯的直線性嫁接以及長方形吊頂方式改變格局,巧妙的拉回了整體空間的視覺方正感。
主臥
主臥整屋駝灰色的護牆板包裹,線條分明,輕奢大氣;雙眼皮滿吊頂,視覺空間寬闊不壓抑;精選的床頭燈及床頭櫃,金邊映襯,營造出了歐式浪漫主義的室內氣氛。
女業主非常喜歡主臥的設計,設計師把扇形的主臥做到了最大化的空間利用率,滿足了女業主的收納需求及實用需求,梳妝檯、展示櫃、衣帽間樣樣俱全,衣帽間做了隱藏式門洞,進門處增設了一塊遮擋牆,保證了主臥的私密性。
陽臺部分把之前的護欄改為了牆體半封閉,右邊設計了日式榻榻米休閒辦公區,男業主對此處改造十分喜歡。
設計師:蘭天(億陶七建店)
專案經理:董爾富
電工師傅:楊宏
木工師傅:朱文才
泥工師傅:方習友
油工師傅:周勤
工程監理:周杰
