本案例這套位於北京的40㎡小戶型,房子是90年代的老破小,加上全屋的承重牆,改造起來難度不小。經過曉藝設計的改造後,僅花8萬便完成大變身!接下來,齊家栗子就為大家帶來這套40平北歐風小戶型裝修案例,希望大家能夠喜歡!
▲原始戶型圖
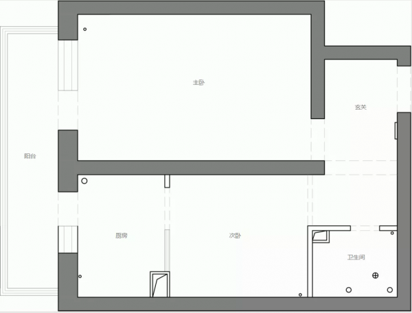
▲平面佈局圖
▲入戶獨立小玄關,地面通鋪水磨石,讓人進門就有清新之感,同時劃分出落塵區。進門左手邊擺放藤編鞋櫃,進門右手邊安裝大面積全身鏡,進門正對面則擺放造型簡潔的換鞋凳,兼具顏值與實用性。
▲客廳,牆面通刷了豆沙綠的乳膠漆,沒有多餘的裝飾及造型,搭配紙質創意落地燈、綠植,給人一種清新自然的感覺。打造了長長的地臺沙發,除了簡單的會客功能外,平時也作為親友到訪時的客臥。沙發一側放置了長書桌+擱板的組合,滿足了在家辦公的需求。
▲餐廳,緊靠廚房而設,動線更加合理。另一側牆面採用磚砌的櫥櫃設計,並將冰箱嵌入進一旁,牆面安裝了兩層擱板擺放瓶瓶罐罐,作為西廚區使用,大大解放了廚房壓力。
▲將陽臺改造成開放式廚房,兩側都打造了地櫃,並透過長長的擱板相連,呈U字型的佈局,提供了充足的收納+操作空間,充分利用了空間。
▲將進入臥室的門框設計成拱門造型,並將地面整體抬高,提升了儀式感。直接鋪設床墊代替床鋪,既緩解了矮層高+地臺的壓迫感,平時還可以收起來不佔空間。利用實木擱板+金屬支架,打造了整面牆的收納系統,既美觀又實用。
▲陽臺,與廚房空間相通,利用櫥櫃另一側塞下了洗衣機與小推車,滿足了洗衣房的功能需求。另一側有序擺放了綠植,讓家裡多了一處養眼的綠意小天地。
▲衛生間,採用了徹底的三分離設計,盥洗區、馬桶區、淋浴區互不打擾,使用起來更加方便。淺粉色方磚、水磨石磚,讓這個空間變得更加精緻浪漫。
