現代 | 康虎
| 設計理念
以充滿個性與現代美學質感來打造優雅卻不失獨特的空間,在方寸之間,滿足空間功能完整性,強調個人品味的藝術化表達,注重營造空間的舒適度與情調。
大落地窗為客廳引入充足的自然光,讓居者在家中就能領略日月穿梭,四季變換的美。大幅現代畫作為沙發背景,既特別又為空間增加一抹亮色。吊頂也是一大亮點,在隱藏窗簾盒增加美觀度的同時,又讓單調的頂層空間有了起伏,增加空間的呼吸感。
餐廳採用設計感十足的吊燈,搭配米、橘色系餐椅,精緻現代,時尚感十足。淺色系櫥櫃搭配嵌入式冰箱,保證了空間的整體性,又讓傢俱生活更加便捷。
在臥室這樣一個可以徹底放鬆身心的地方,採用無主燈設計。燈帶加個性十足的吊燈為主人提供寧靜的生活空間,木地板與地毯的加持,更是極大地提升了臥室的舒適度。
兒童房是一個家中最溫馨有愛的地方,淺綠色牆面,粉色系的掛畫、單椅,為孩子創造一個多彩夢幻的世界。定製雙層床為孩子提供一個私密基地,可以在這裡盡情地玩耍和發揮無限的想象。
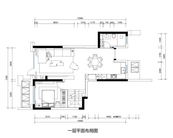
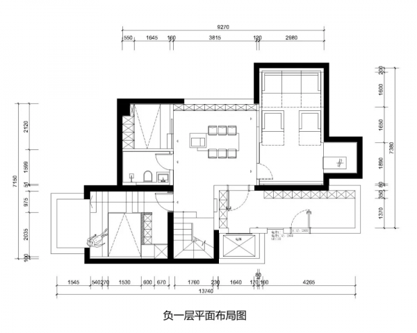
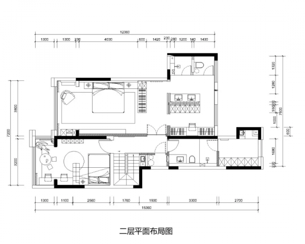
▼平面佈置圖,Layout plan
設計師︱康虎
所在單位 | 柒坊空間設計
