01
作品資訊
專案地址 | 合肥·華地森林湖
專案面積 | 135㎡
專案戶型 | 四室兩廳
專案風格 | 日式
作品名稱 | 溫暖如初
設計施工 | 安徽華然裝飾集團
【原創宣告】本文中裝修專案為華然裝飾設計施工並現場實拍,圖文原創,請勿轉載。
02
背景介紹
本案屋主是一家三口,夫妻倆和一個可愛的孩子。業主是廚藝愛好者,並燒得一手好菜,也喜歡和朋友在家聚餐。對於愛好烹飪的業主來說,需要有一個大大的廚房和餐廳,還要配備中廚和西廚的功能。同時對於收納空間的要求也比較高。在其它方面,希望越簡單越好。因此在設計風格上定為日系休閒風。
03
設計解析
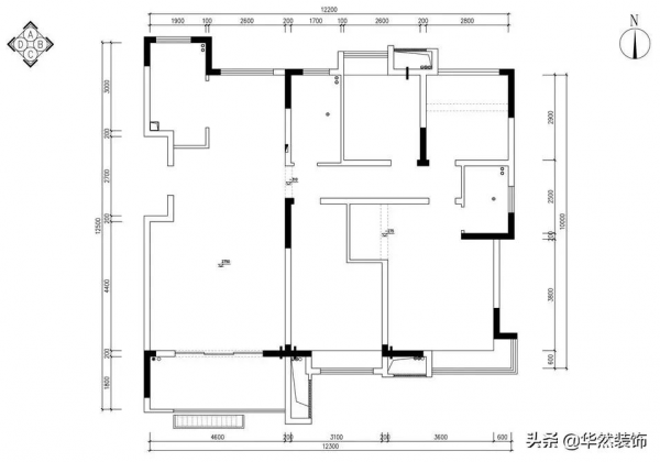
-原始結構圖-
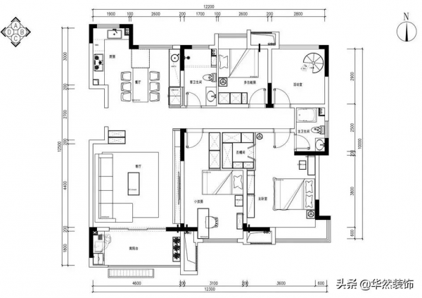
-平面佈置圖-
原建築算是一個標準的四室兩廳,客餐廳和廚房在外,中間過道,裡面南北各兩個房間。戶型很好,也很方正,但是廚房和餐廳的空間滿足不了喜歡下廚的業主的需求,因此在設計上進行了相應的調整。
將原有廚房和餐廳融合到一個空間,既滿足了業主對空間的需求,又能擁有一個很大的中廚,方便放置一些中廚的裝置,同時具備了西廚的功能,烤箱、蒸箱完美嵌入,餐桌旁的操作檯還可當吧檯用,空間利用率大幅提高。餐廳因為廚房的改造,顯得很是寬敞。
客 廳
LIVING ROOM
客廳的佈置,簡單精緻,沒有太多的物品,卻溫馨無比。原木茶几搭配米色沙發,清新又自然。透過內嵌筒燈配合隱藏燈帶,輕鬆實現客廳照明。
沙發背景採用咖啡色木紋護牆板,與淺色沙發形成強烈的層次衝擊。摒棄了傳統的電視牆的做法,做了一個超大的懸空收納櫃,電視嵌入櫃體,投影幕布與齊平的櫃體平行,在家裡也可以享受精彩的視聽盛宴。
餐 廚
DINING ROOM&KITCHEN
廚房和餐廳打通,將兩個空間融合,做成開放式。島臺和餐桌一字型排開居中擺放,中西廚分列兩側,做中餐的時候,可以讓家人在西廚區域打下手,朋友來家做客,開放的西廚就成了朋友聚會的場地。
冰箱、微波爐和烤箱三位一體,嵌入同一高櫃,讓空間看上去更加自然和諧,簡潔明淨,頂部仍可以留出空間用於收納儲物。
吧檯是一種情懷,是一種放飛自我的生活方式,早上在吧檯泡一杯咖啡,耳邊迴盪著熟悉的音樂,看著窗外鳥語花香,一切煩惱都煙消雲散。
臥 室
BEDROOM
臥室以白色和原木色為主,整體乾淨純粹。床、床頭櫃、梳妝桌和電視櫃都選擇了原木材質,紋理細膩,質樸自然。
進門右手側是一組定製櫃體,關上門就是一個普普通通的衣櫃,可誰曾想開啟櫃門,裡面竟藏有一個小型衣帽間!
背景牆留白,搭配女主人喜愛的抽象裝飾畫,一盞亮在床頭昏黃的吊燈,溫暖和愜意的感覺油然而生。
衛 生 間
BATH ROOM
衛生間做了乾溼分離設計,水磨石瓷磚、方形白磚只貼半牆,增加空間層次。淋浴區融入壁龕設計,整體風格變得統一有格調,又能起到很好的收納作用,沖涼時,閉著眼睛也能夠看到洗髮水和沐浴乳。
【歡迎互動】喜歡這篇作品,就點個【贊】再走哦!也歡迎在評論區留下你的想法。
【私信諮詢】如果您有住宅裝修需求,請私信留言,我們會及時與您聯絡。
