手裡有了一筆大錢,首先你會做什麼?
容小姐毫不猶豫地買下了121㎡的房子,適合一家三口居住,又大又舒適。她喜歡北歐風的溫暖,工業風的酷颯,又青睞現代簡約的實用。於是設計師巧妙地將三種風格結合設計,最後碰撞出怎樣的火花呢?快來一起看↓↓↓
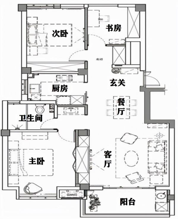
房屋概況
房屋面積:121m²
常住人口:3人
設計風格:混搭風(北歐+工業+現代簡約風)
房屋戶型:兩廳三房一廚一衛
整體的設計把北歐、工業、現代簡約三種風格融合得恰到好處,十分巧妙。格局以現代簡約風為主,北歐風體現在主要的家居中,如沙發、地毯;工業風則是在裝飾、色調上作為點睛之筆。三輔三成,成就了這樣一個集溫馨、舒適、實用、高階的絕美之家。
玄關
進門見廳不隔斷,光線自然流轉,一眼望去,整體空間開闊又明朗。
綠植為玄關增添自然氣息,藝術掛畫點綴,簡約不失格調。放置落腳鞋櫃,滿足業主換鞋、儲物等需求,清潔也方便。
客餐廳
客廳的佈局十分通透,將現代簡約風展現得淋漓盡致。在造型上沒有多餘的設計,以動線流暢為主,將顏值與效能最大化。
木地板是北歐風的最佳裝備,溫馨又舒適;與工業風滿滿的灰泥牆冷暖相應,相得益彰,營造出一個愜意、輕鬆的居住氛圍。
高階灰布藝沙發,米色幾何圖案地毯,色彩豐富的裝飾畫,金屬感十足的撞色茶几,還有各種清新的綠植,三種風格元素的混搭,讓空間顯得充滿年輕的活力感。
融入現代簡約風中常用的長虹玻璃,將室內自然採光做到極致,同時保證使用者隱私。
帶有工業色彩的一抹藍,讓人眼前一亮。嵌入式電視櫃,大大提升了空間利用率,展示與收納也都完美兼顧。
客餐廳沒有隔斷,開放的空間,讓餐廳看起來非常寬敞。木質餐桌椅質感十足,搭配簡約吊燈,營造出愜意輕鬆的用餐氛圍。
設計師大膽地把全身鏡融入移動軌道,安置在餐廳牆面上,可根據生活需求隨意移動,別出心裁的設計實用又美觀。
廚房
U型廚房設計,合理的動線規劃,靈動的空間佈局,讓烹飪更得心應手。
上下雙櫥櫃,廚房收納不再是問題。無拉手抽屜,貼心地避免了日常生活中的碰撞。
主臥
主臥以舒適為主,延續客廳的自然木色調,給人一種平靜而安穩的感覺。
獨特極簡的無主燈設計,讓空間營造出高階優雅的時尚與檔次感。小巧的原木梳妝檯,生活的精緻一覽無遺。
一門到頂的整牆衣櫃,與白色牆面融為一體,不僅延伸了橫向空間,還滿足了收納需求。
次臥
優雅的藍色散發出恬靜的氣息,無處不在的色調呼應,極其純淨的色彩組合,為這個私人空間注入了契合身心的溫柔、安心。
創意管道造型燈,搭配簡約黑色床頭桌,凸顯出工業風的不拘一格,使整個空間更有個性。
書房
夫妻倆平時加班多,一個能安靜辦公的書房自然必不可少。書房沒有複雜花哨的設計,強調功能性,以減少干擾。
竹捲簾遮光透景,藝術掛畫與書桌的擺畫交相呼應,為書房的氛圍增色不少。
以上案例來自靚家居佛山南莊店資深設計師楊宗達設計
靚家居,20年整裝連鎖品牌,超140+家購物中心直營大店,覆蓋廣東、廣西、湖南、海南4省。從房子到一個家,靚家居幫你實現!
