“歡迎參觀我的家”
“作為一名導演,平日裡的我輾轉於各個片場、劇組,協調拍攝當中的大小事宜,常常忙得日夜顛倒。為的是用最好的狀態呈現一個又一個動人的故事。而生活中的我則期待有自己的一方天地,包容我工作之餘的情緒,承接我身份褪去的疲倦和勞累。所以我追求工作的效率,更渴求生活的品質“
——業主方導演
風格:現代
套內面積:102m²
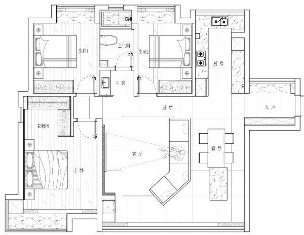
格局:3室2廳1廚1衛
「客、餐、廚一體」
最佳化動線 通透無敵
作為一名影視劇導演,高階的審美和自由瀟灑的生活方式是他獲取靈感的主要方式。所以刻板規矩的家居內飾並不能滿足他的內心需求。
想營造瀟灑通透的空間氛圍,那麼開放式一定是最好的方式。普通的客餐一體結構並不能實現開闊的聯動。而LDK設計(即客餐廚一體化設計)就能很好地構建出暢快恣意的空間”核心區”。
所以,拆除分隔客餐空間的非承重部分,就能得到自由暢通的“大橫廳”,讓空間動線一下子自由輕快了起來。
在色彩上的選擇上,設計師著重用黑白灰來勾勒偏愛冷色調業主心中的理想居所。
平日裡”閱片無數”,才能在拍攝的過程中迸發出靈感的火花。所以客廳的觀影部分一定要足夠寬敞舒適。無論是和朋友一起,還是隨性一躺,諾大的沙發都能給足相聚的舒適度。
用長沙發做大客廳的軟性分隔,靠背後面則是聯通的吧檯和餐桌。單身的生活總是那麼瀟灑自由,平日裡在這大落地窗邊寫寫劇本,小酌一杯,也是別樣的愜意浪漫。
與寬闊客廳相連的,是被拆除了隔牆的廚房部分。設計師把原本與廚房相連的廚房陽臺完全打通,讓自然好光景完全袒露出來,實現客餐廚的貫通和自由。
打通了廚房陽臺的橫亙,整體廚房空間更加通透大氣。開放的格局也很適合平時不怎麼做飯的單身人士。
啞光的灰色在大面積採光的映襯下也不覺得晦暗,反而透出一種特別的高階感。
即便現在的他平日裡不怎麼做飯,但廚房操作檯面的設定卻是一點也不少,這也是為未來生活的改變保留絕對的可能性。
背靠沙發,是完全開放的餐廳空間。餐桌+吧檯的設定滿足實用的同時又有滿滿的生活情調。大落地窗+吧檯搭配出別樣浪漫的空間氛圍。
桌上餐具與擺件也多用黃銅和金屬來打造貴氣的好質感,不管是自己就餐還是朋友小聚,都能營造舒適高階的氣氛。
「主臥」
大氣舒適 中性耐看
深色的木質地面,比地磚來得更溫柔一些,也給休息空間在時尚中多了一絲溫馨。
設計師還給主臥設定了小型衣帽間,方便“精緻男士”出門搭配衣服和配飾,誰說只有女人需要外貌管理,男人的精緻也要一絲不苟。
床頭後部還要銜接了灰色的硬包,內嵌線性燈帶,烘托臥室空間的溫馨宜居。
「大次臥」
清爽簡潔 實用至上
大次臥色調清爽,也是為了給空間一個耳目一新的感覺。湖綠色的背景牆清爽卻不覺得輕佻,硬裝部分極致簡約,用橙色的抱枕給空間帶來輕鬆舒適的感覺。
小空間想顯得清爽耐看,在燈飾的選擇上就要儘量簡約,避免太繁雜的造型感壓低空間層高。所以設計師在燈飾的選擇上以線性為主,營造纖細明亮的光源。
「小次臥」
清新別緻 溫柔優雅
藍色的沉靜和優雅,彷彿給了它別樣撫慰心情的能力,進入藍色的空間,似乎能沖刷一整天的疲憊的勞累。
平日裡邀朋友來小住或者親戚來訪,居住的品質也能在沉靜的小臥室裡得到保障。
飄窗外就是綠意山景,讓居住更放鬆安心。
「衛生間」
外接洗手 體驗無敵
由於整個房屋空間就只有一個衛生間的緣故,在洗手間的設計上設計師更加謹慎。考慮到日後的方便和實用,採取了外接洗手檯的三分離設計,讓洗手間也有了功能分割槽。相對獨立,互不打擾。
外接的臺盆乾爽實用,內部的盥洗方便獨立,一內一外,一干一溼。淨是設計師對生活的巧思和考量。
關上門就是完全的溼區空間,用灰色石紋大理石牆地通鋪,完美防水的同時還有通透的整體性。
「其他設計細節」
客廳一隅:
過廳掛畫:
不論結婚還是單身
獨居還是群居
好的居所
才是開啟幸福生活的鑰匙
專案平面設計圖:
看完別忘了收藏+關注哦,如果你們有更好的建議,記得在評論區留言告訴小編哦。

















































 
			 
			 
			 
			 
			 
			 
			 
			 
			 
			 
			 
			 
			 
			 
			