▲ 建築面積95平,玄關利用空間角落打造雙面櫃體,結合鞋櫃與儲物櫃,增添空間收納,不影響動線
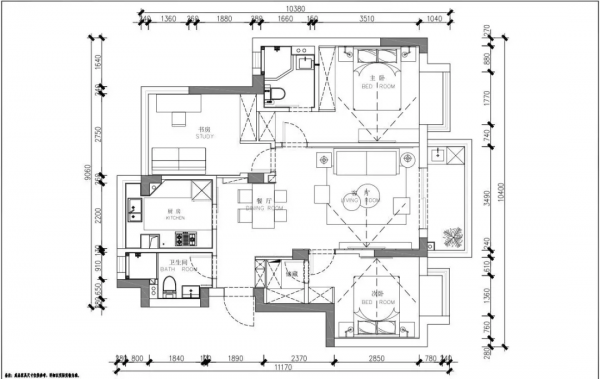
▲ 平面佈置圖
▲ 客餐廳互通,整體以黑白灰為基調,融入原木調作為點綴,提升視覺暖度
▲ 客廳,灰色石紋地磚鋪就,搭配留白牆頂面,通透的落地窗滿足室內採光
▲ 選用深色系軟裝,與白色形成對比,呈現出都市生活的簡練感
▲ 留白牆面點綴立體感牆飾,豐富背景空間表情,絲絨抱枕提升空間質感
▲ 電視背景延續留白,打造架空電視櫃,實用不佔空間,右側設計隱形門片,使背景更加整體
▲ 餐廳,灰木調的餐桌椅平添溫潤氣息,立面嵌入黑色鐵藝置物架,起到裝飾作用
▲ 餐廳背景利用錯落牆面打造開放式置物架,廚房採用玻璃穀倉門隔斷,防止油煙,不影響空間通透
▲ 廚房,U型佈局,納入大型廚電,白色櫥櫃搭配黑色牆磚,層次分明
▲ 書房,雙面採光+百葉簾,隨意調節室內光線,設定沙發床可隨時切換空間模式
▲ 另一側牆面打造白色置頂櫃體,搭配拱形全身鏡,讓書房兼具衣帽間機能
▲ 次臥延續黑白灰色系,採用榻榻米滿足次臥機能,白色半高護牆替代床靠背,裝飾畫呼應空間格調
▲ 床頭一側的搖臂燈可以提供晚間閱讀照明
▲ 主臥,留白空間搭配灰色棉麻床品,簡單卻富有質感,木飾面半牆溫潤自然,背景修飾現代造型吊燈
▲ 靠牆設計大面積定製櫃,滿足主臥空間收納需求
