設計 / 品質 / 生活
Temperature of Love
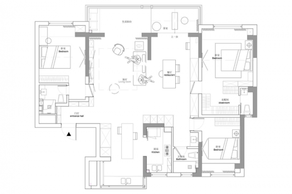
本案為168㎡的大平層,可媲美一座“扁平化別墅”,空間開闊,居住功能完善,男女屋主與成年女兒同住,三口之家,幸福美滿,惹人豔羨。
雖為兩代人,但屋主一家在審美上,出奇的一致,都偏好高冷的黑白灰調和簡約、高階、經典的空間氛圍,對家的「質感」有極高的要求。
深度解剖完屋主需求後,我們拿出一間臥室,改做餐廳,打造以客餐廳為中軸線的,南北臥室對稱佈局;設計中島西廚取代原來的餐廳,輔助中廚,滿足多樣烹飪需求。
出於對空間結構、視覺效果等多重考慮,本案使用了許多新型材料和工藝。
我們使用微水泥、PET、石材等富材質,來充實黑白灰造型,描摹出不同肌理感,讓家充滿層次。
整屋櫃體林立,但透過轉角聯通、隱形門一體等設計手法,與空間完美融合,構築起家的秩序整潔感。至此,極簡的線條結構和大面體塊運用,讓空間的動線層層遞進,時髦而現代的氣息,迴盪在家的每一個角落。
1、希望擁有中西雙廚,烹飪形式更加豐富。
2、餐廳狹小,限制了和親友的日常聚會,希望拓寬。
3、男女屋主分房睡,女兒也同住,彼此都需要舒適的臥室。
4、男屋主喜歡喝茶,需要一間清淨的茶室。
5、屋主女兒是時尚白領麗人,著裝要求極高,需要碩大好用的衣帽間。
1、進門臥室重新砌牆,開門方向改為正對客廳,玄關定製兩面薄櫃,解決鞋物收納難題。
2、緊鄰客廳的臥室打通,作為餐廳,客餐廳縱向排列,格局開闊大氣。
3、寬幅陽臺一分為二,餐廳側做地臺,打造出清雅茶室,客廳側做晾曬區。
4、原始餐廳增設中島,改做西廚小酌區,搭配中廚,滿足家人多樣的飲食需求。
5、主臥室借用過道、部分主衛面積,圍合出半開放式衣帽間,進一步拓展空間功能。

    空間改造後,從入戶延伸至臥室的縱線十分狹長,使得頂面梁體“一覽無餘”,如若全部使用大平頂,無疑會降低層高、產生沉悶感。
因此我們因地制宜,採用微水泥藝術漆裝飾玄關梁體,並通鋪灰色啞光大磚,形成色彩的呼應。

    白色挑空烤漆板櫃,拼接黑色PET通頂櫃,將進出的衣鞋、配飾,一併收納,豐富的材質肌理,將玄關塑造得包容而鮮活,區域性嵌入利落線性燈,以光為索引,歸家儀式感被點亮。

    重組空間後,客餐廳一體佈置,舒適明朗,微水泥覆蓋餐廳餘留的半牆、橫樑,與純白乳膠漆形成對照,形成自然粗糲的視覺感觀,更顯高階大氣。

    一張法國ligne roset的經典款沙發,軟分隔客廳、餐廳兩個區域,多功能狀態的沙發可以根據形態改變而變化整個客廳的調性,更好的渲染出空間的氣質。
客廳吊頂造型極簡,內嵌筒燈、玻璃落地燈強強聯合,將客廳的光影氛圍,塑造得明媚生動。


    客廳的軟裝也遵循極簡理念,雅緻的高階灰地毯,材質柔軟,沖淡了地磚的冷。
選用微笑大師系列沙發椅,不同角度呈現經典美學設計,如微笑般趣味的造型至於家中,搭配輕盈的木質ETHEREAL旋轉邊幾,可隨時挪動,讓客廳擁有充足的活動空間。

    客廳將一半的寬幅陽臺納入,更顯開闊,透光不透人的夢幻簾,過濾掉熱辣的光線,為室內帶來一片清爽,全屋的窗簾、夢幻簾均採用內嵌軌道的設計,優雅而美觀。

    灰色地磚,貫通玄關、客餐廳和西廚,將散落的區間,勾連融合,公共區化零為整,開闊如風。


    餐廳、主臥經過一番規整後,格局方正清透,餐桌後的半牆,定製黑色通頂櫃,同時主臥安裝同色隱形門,極力保留空間的完整性。


    餐廳的過道,也同樣打造收納空間,頂天立地的烤漆白櫃,與餐廳的黑色PET高櫃,對比分明,讓枯燥的收納,也飽含藝術美感。


    全屋的空調出風口均採用隱形設計,造型簡潔利落,與整屋的融合感更強,毫不突兀。

    餐廳採用一字型吊燈,充分迎合拉米娜的長條巖板餐桌,再搭配米色系皮革單椅、別緻的凳子,簡約但不冰冷。

    餐廳背景牆的盡頭,設有一張懸空書桌,搭配比餐椅稍深的皮革書椅,是屋主家人日常辦公、閱讀的位置。

    餐廳這側的陽臺,做了15公分的地臺,地面鋪設防滑木紋磚,擺上黑色茶臺、羊毛椅、薑黃軟墩,做出一個休閒茶室,閒時,一家人對窗品茗,愜意至極。


    客餐廳共享陽臺,未做硬性隔斷,僅安裝透光不透人的夢幻簾,軟性切割,光影仍可互通,一盆舒展的綠植,位於兩處陽臺交接處,實現綠意的共享。

    原始餐廳被西廚所取代,考慮空間的縱線十分狹長,且頂面管道複雜,我們在區域性空間安裝鏡面不鏽鋼材質,拉伸視覺,使空間更富有趣味性。


    中島佔據西廚C位,檯面選用德賽斯巖板,花色自然流暢,觸感柔和光滑,使用方便耐腐蝕、耐高溫、耐清洗,在極簡黑白灰空間裡形成極強的視覺點綴。
同時島底部挑空,方便調整坐姿,預留插座,吃飯、手機充電兩不耽誤。

    島臺左側,設有兩列深槽拉籃,用於存放備用西式餐具,使用時可直接拿取,便捷高效。


    中島對面,通頂PET高櫃,從西廚一路延伸至轉角玄關過道,視覺過渡連貫統一,也再一次充實儲物空間,烤箱、蒸箱嵌入其中,減少廚房空間的佔用。

    原餐廳的小陽臺打通包進西廚,窗前設有一列操作檯面,安裝深水槽,用於清洗瓜果、杯具,與中廚用水分開,乾淨又衛生,窗前安裝百葉簾,自由調節光影,提升隱私感。


    中廚與西廚間,用極窄的黑框移門分隔,光線可最大程度互享。便捷的U型動線佈局,將洗、切、煮環節安排得井井有條。
廚房省去了吊櫃設計,強調開闊感,牆地磚均鋪灰色大磚,耐髒又統一,選擇頂吸式抽油煙機,更好吸收油煙。

    廚房檯面選用杜邦亞克力材質,顏色純淨自然,配合無擋水條設計、極細緻的收口細節,形成極致簡約的視覺效果。

    進門第一間臥室,是女主人房,純淨白和微水泥床頭背景牆,渲染出舒適、靜謐氛圍,原始平頂直接保留,空間通透會呼吸。
烤漆白衣櫃延伸出右側床頭梳妝檯,安裝flua的一字型壁燈,日常既能為女主人化妝照明,夜間也可以當起夜燈使用。

    臥室的房門較為突兀,我們選用隱形門工藝,現場製作門體,外層覆蓋與兩側櫃門相同的PET啞光材質,形成“隱形”效果。一門到頂的工藝,拉伸視覺效果、更顯利落。

    深色木地板橫鋪,平行於背景牆,橫向上對空間進行拓寬,三個臥室的床為定製款,在保證舒適尺寸的同時,也極力不佔用臥室空間。

    床頭左側設有一張圓弧形邊幾,擺上藝術陳設品,進一步營造氛圍感,臥室飄窗延續內嵌窗簾軌道設計,讓視覺處於一個平面,簡約平整,檯面改為環保的人造石材,肌理均勻,抗耐壓性強。

    女主人房自帶衛生間,超白玻的長虹玻璃門,透光不透人,衛浴隱私不減,與臥室聯動感加倍。
衛浴空間異形,我們將臺盆區挪到門對面,壁掛馬桶在進門處,淋浴房單獨設計,佈局乾溼分離,便捷好用。


    全屋衛生間臺盆區檯面均為杜邦亞克力材質,清透提亮。淋浴房安裝長條隱形地漏,下水更快,頂面內嵌燈帶,補充照明,設計壁龕收納,整潔美觀。

    男主人房佈置極為簡潔舒適,在陳設上,與女主人房高度重合,展現著夫妻間一致的默契和審美。
房間面積較小,定製的雙人床緊貼飄窗擺放,採光可以充分延伸入室內,床頭的flua壁燈選擇寬短款,照明範圍更加集中。

    烤漆白櫃門,配以短款的極簡把手,清爽大方,考慮臥室床頭空間不足,就只單設了一張煙燻木床頭櫃,方便手機充電。

    屋主的女兒年輕、時尚,臥室色調的選擇上,更傾向明麗的高飽和色彩,藍灰色漸變桌布,在空間鋪陳開來,如一簇藍雪花,悄然在空間綻放開來,優雅而神秘。


    房間的照明由床頭的十字型壁燈、線性壁燈和頂面內嵌的筒燈共同完成,設計簡潔明瞭,視覺毫無負擔感。
左側床頭採用壁櫃收納,並延伸出L型吧檯,充作床頭櫃,整個造型藏露結合,收納與展示美合二為一。

    女兒房將部分衛浴和過道空間,一併包入,開闢出一個獨立的衣帽間,烤漆白高櫃儲物力max,主人的外衣、配飾盡數收納。
房間衛浴面積壓縮後,空間較小,就不再額外設計淋浴房,只配備了馬桶區和臺盆區,屋主女兒睡前沐浴可前往旁邊的客衛。


    男主人房旁的衛生間為家中公衛,考慮屋主女兒也要就近使用,我們將洗手檯單獨拎出,淋浴房下沉設計,形成高效的三分離佈局。
設計師的更多作品,
歡迎進入下方小程式檢視哦~






 
			 
			 
			 
			 
			 
			 
			 
			 
			 
			 
			 
			 
			 
			 
			 
			 
			