在家裡裝修設計的時候,我們都會想著如何規劃能讓空間顯大、縮短動線、讓家更舒適。在當下的流行設計裡,LDK(即客餐廚一體)想必很多朋友都不陌生,對的,今天就來和大家聊聊【LDKB】設計。
LDK與LDKB
➤LDK設計
L (Living room)客廳、D(Dining room)餐廳、K(Kitchen)廚房。
▼
即:打通客餐廳、餐廳之間的非承重牆,讓三個空間之間處於流通狀態。
    優點:提高面積利用率,縮短空間動線。
➤LDKB設計
而LDKB設計,是在LDK的基礎上,增加一個B(Balcony)陽臺;即是,客餐廚陽臺一體化設計。
▼
- 相對於LDK設計,LDKB設計空間通透度更高。
- 納入陽臺後,也可有效提高空間採光。
- 功能更加豐富,陽臺可根據空間需求規劃不同功能。
- 空間利用率更高,可改動性更強。
所以,LDKB佈局要如何規劃呢?
1、打通多餘非承重牆
設計攻略:
①簡單點,直接打通客廳與陽臺,餐廳與廚房之間的非承重牆,讓四個空間處於流通狀態。
②注意保留通道距離,每個空間之間保留0.8-1.2m的通道距離,不要太擁擠。
2、承重牆不能打選半開放式
一說要打牆,就總是會有小夥伴會問:
- 那我是承重牆怎麼辦?
- 那我不想打牆怎麼辦?
那我們可以可以考慮半開放式設計:
①客廳陽臺半打通
客廳陽臺之間的牆體如果是承重牆,可以選擇將門體門套拆除,規劃半開放式設計。
②廚房用玻璃門做隔斷
廚房餐廳之間,可以用大扇摺疊玻璃門作為隔斷,開啟弧度大,可做半開放式效果。
3、LDK+西廚
對於牆體不方便拆,或者處於種種原因不想拆的這種情況,也可以考慮規劃西廚區,實現LDKB設計。
▽▽▽
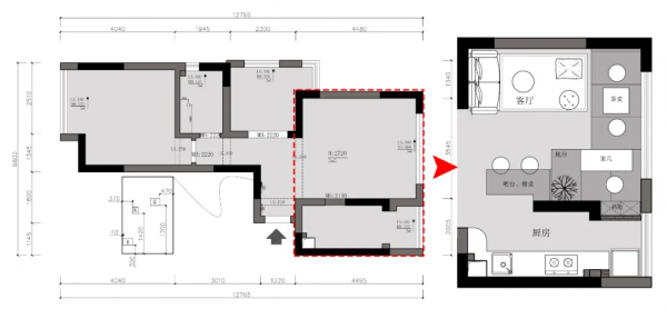
飛墨家的案例《逢春》中,餐廳規劃島臺,做簡易西廚餐吧區,豐富了空間的功能性。
規劃建議:
①島臺可規劃吧檯、收納、電器、水槽的功能,可方便平時做簡餐、烘焙。
②如果空間允許,除島臺外,還可以規劃餐邊櫃,放置烤箱、蒸箱等電器。
規劃好LDKB後,各個空間雖然是串聯的,但是功能是獨立的,所以功能咱也要好好規劃下!
1、客廳+陽臺
功能區我們可以分割槽規劃,客廳陽臺串聯在一起,那就一起說。
    ①保留簡易洗衣收納
將客廳陽臺打通後,想規劃洗衣陽臺,可以選擇用洗衣機+烘乾機的組合模式,解放陽臺空間。
洗衣機的擺放可以結合收納櫃設計,提高家庭收納力。
②陽臺地臺設計
陽臺整體抬高,規劃地臺休閒區,也是一個好選擇。
設計建議:
- 地臺的高度在15-20cm上下。
- 可選擇材質有木材、瓷磚等,考慮舒適度,推薦木材。
- 地臺上可安置懶人沙發、小邊幾、書櫃等,提高利用率與功能性。
- 考慮防潮,窗戶要留排水孔,且密封性要做好哦。
③純擴大面積
簡單點,陽臺納入客廳後,什麼也不做,直接擴大客廳面積,也是非常nice的。或者改為健身房、遊樂區,根據自己的意願去改造,總能裝出自己滿意的功能。
2、餐廚
至於餐廚之間如何分割空間,也幫大家做好選擇啦。
①餐廚一體
△小餐廳:餐桌+廚房
面積不大的廚房,直接規劃餐廚一體即可。
△大餐廳:餐桌做隔斷
如果是面積足夠大,餐桌+島臺可充當廚房與客廳之間的隔斷。
②吧檯做隔斷
- 用吧檯作為空間的隔斷,可提高休閒功能,吧檯的高度在90cm左右是最常見的規劃。
- 不規劃其它功能,吧檯寬度在30-35cm之間即可。
③島臺做隔斷
島臺做隔斷,可以延展廚房檯面,適合大戶型設計。
島臺尺寸參考:
- 島臺功能上可以結合吧檯設計,吧檯底部向內凹15cm左右的深度,方便放腿。
- 整體深度在60cm上下,高度在90cm上下。
設計是多樣的,空間各自獨立秩序分明,而流通的設計又有自己獨特的優勢;LDKB的設計則提高空間的通透度、採光,也讓空間與空間之間串聯起來,提高空間利用率;打破傳統,也許會得到不一樣的驚喜哦。
(PS:部分圖片來源於網路,如果侵權,請聯絡刪除。)

























 
			 
			 
			 
			 
			 
			 
			 
			 
			 
			 
			 
			 
			 
			 
			 
			 
			