入住新房不久,6大敗筆後悔莫及,鼓起勇氣曬曬,大家別再犯!
新房是一個94平小四居,裝的是現代簡約風,整個裝修花了差不多五個多月的時間,然後又通風了小半年。現在已經入住一個多月了,住進去後才慢慢發現新房裝修有6個敗筆,你說拆了重新搞吧,它們影響不是很大,而且花了錢自己有點捨不得。不拆吧,就是咋看咋不舒服,真的是讓人心裡難受。今天鼓起勇氣,也給大家曬曬,希望透過我的分享,能讓大家少犯點錯,畢竟裝好了再想改就難了!
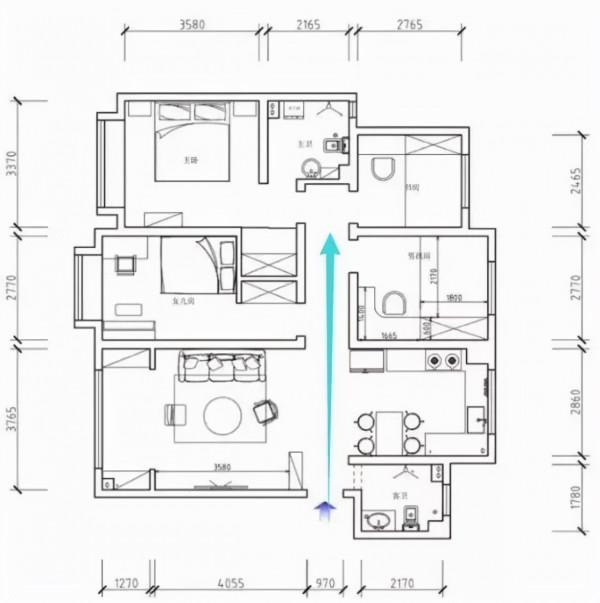
戶型圖
這是我家的戶型圖,是不是很方正,雖然面積不是很大,但是也算是典型的四室兩廳,全明通透戶型,從一進家門起,就是一個比較長的過道,就像我箭頭標出來的這樣,沒有獨立的玄關,也是挺遺憾的了。
所以只能是在一進門這裡做了一個小的鞋櫃,入住以後才發現,這個鞋櫃真的是太小了,完全不夠用,塞不下幾雙鞋子,裡面就滿了。這就是我家裝修餓的第1個敗筆,你說換個大點的鞋櫃吧,又擋住開關了,這就是典型的裝修前沒設計好,將開關設計到別的地方,這裡做一個大的通頂玄關鞋櫃,還可以掛衣服,客廳的私密性還好,收納空間也充足。所以大家在裝修前,一定不要著急,多想想怎麼設計好一些,方便後期入住使用。
客廳
家裡整體是現代簡約風格,所以客廳裝的也比較簡單,重灌飾輕裝修麼,牆壁全部刷了暖色牆漆,然後沒有做什麼造型,簡單幾幅裝飾畫來點綴,比較清爽漂亮,灰色的布藝沙發,看起來也比較溫馨舒適。
電視牆
電視牆全部貼的是這種深紅色的菱形牆布,看起來還是比較耐看的,雖然簡簡單單的,遠看還是比較大氣的。而貼牆布比貼牆紙的好處在於,牆布是一個整體,貼出來沒有接縫,更好看一些,而且質感也比較好。但是,第2個敗筆馬上就來了,那就是電視櫃選擇的真失誤,空格子比較多,特別不耐髒,不經意間就落滿一層灰,而且還不好打掃,就應該選擇一個全封閉的,平常只需要打掃表面就行。
餐廳
房子整體是一個東西通透,所以餐廳和客廳看起來是一個整體,中間是一個過道隔開,地面上鋪的是灰色北歐風地板,漂亮又耐看。餐廳選的是一款黑色實木餐桌,然後頂部三盞充滿金屬質感的小吊燈,看起來還挺小資的。
廚房
廚房的空間比較小,所以當初就做成了開放式的,這也是我家的第3大敗筆,想著開放式廚房就配整合灶好一些,沒想到一點都不實用,我們家做飯油煙比較大,然後開放式廚房,煙全跑客廳去了,而且冰箱上面那麼一大截是空出來的,本來應該做吊櫃的,現在特別容易落灰。這些問題也是在入住之後,才慢慢發現的,剛裝好的時候,還蠻喜歡的,現在別提多糟心了。
主臥
主臥刷的淺粉色牆壁,然後一張雙人大床,床頭是那種法蘭絨設計,真的很舒服。整體給人的感覺就是溫馨舒適,非常不錯。
下來就是第4個敗筆了,就是把客廳的陽臺改造成了休閒區,導致洗好的衣服沒地方曬,現在全部掛在了主臥的飄窗這裡,做了一個晾衣架,真的是太難看了,很影響採光,但是客廳整體好看了不少,也舒適了。
次臥
次臥的風格也比較清新一些,因為有一個大飄窗,所以採光非常好,整體裝的還是比較實用的,好看不好看的,看得過眼就行了。
兒童房
兒童房的房間空間不大,直接做成了榻榻米,這樣看起來空間會更大一些,底部整面牆的白色衣櫃,好看又實用。
書房
書房也做成了榻榻米,這樣平常也可以用來做客房,看書或者辦公累了的時候,也可以直接躺著休息會,比較方便實用,但是第5大敗筆馬上來了,那就是榻榻米的抽屜應該開在側面,現在的蓋子在頂部,拿東西的話,還需要將床上的東西都挪開,比較麻煩,但是也是小問題,畢竟不經常用筆。
衛生間
衛生間就是第6大敗筆了,當初為了好看,買了這個成品的洗漱臺,一點收納都沒有,而且下水管還暴露在外面,特別醜,當初就該買個成品的洗漱臺,這樣起碼看起來順眼一些。
好了,這就是我家裝修的6大敗筆了,雖然可大可小,但是裝好了,再想去動真的就挺麻煩了,而且很多東西裝修的時候根本考慮不到,住進去才會發現,沒辦法,裝修就是這樣,有喜歡的,肯定就有反感的,所以大家在裝修前,一定要多思考多規劃,別到裝好入住了再後悔莫及。我家的這些敗筆,大家可別再犯了啊!
本文章由齊家小編整理釋出,部分作品來自網際網路,無法核實真實出處,如涉及侵權,請直接聯絡小編刪除,謝謝!
(此處已新增小程式,請到今日頭條客戶端檢視)
