sponsored links

「魯班裝飾」昆海湖174㎡現代風格,刪繁就簡

案例簡介

案例小區:坤海湖

房屋面積:174㎡

風格:現代風格

「魯班裝飾」昆海湖174㎡現代風格,刪繁就簡

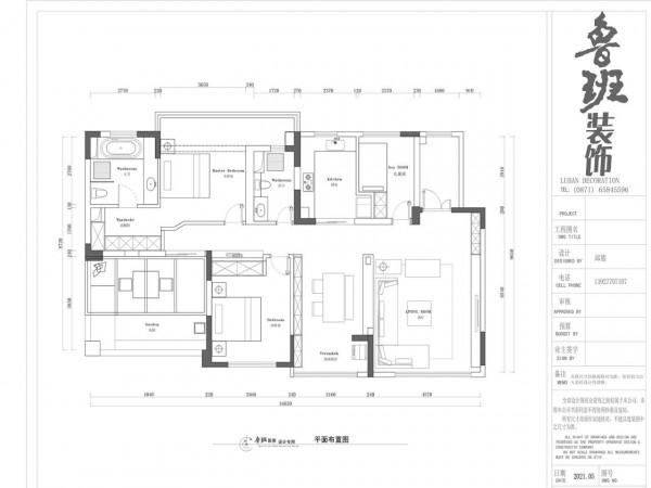
平面佈置圖

「魯班裝飾」昆海湖174㎡現代風格,刪繁就簡

客廳效果圖

現代風的客廳,整體秉承簡約而不失現代韻味的風格理念。客廳的色彩大多以明快為主,注重細節化。既能滿足人們的生活方式和需求,又能體現出人們的自身品位。

「魯班裝飾」昆海湖174㎡現代風格,刪繁就簡

餐廳效果圖

餐廳中的櫃子,增加了更多的空間,讓整個空間的視野更加開闊了起來。

「魯班裝飾」昆海湖174㎡現代風格,刪繁就簡

臥室效果圖

臥室的配飾上,延續了白灰的主色調,以簡潔的造型,完美的細節,營造出前衛的感覺。

好啦,本期的魯班案例分享就到此結束了,小夥伴們下期再見,拜拜~

分類: 歷史
時間: 2021-11-13

相關文章

這兩位超級巨星在週三在密爾沃基舉行的第四場比賽中表現出色,

這兩位超級巨星在週三在密爾沃基舉行的第四場比賽中表現出色,
Giannis Antetokounmpo,克里斯保羅在他們的比賽中處於領先地位 這兩位超級巨星在週三在密爾沃基舉行的第四場比賽中表現出色,他們各自的球隊都表現出色. 克里斯保羅場均得到 24.7 分 ...

中共七大,五大書記剛確立不久,中央為何緊急增補兩位候選書記

中共七大,五大書記剛確立不久,中央為何緊急增補兩位候選書記
1945年,抗日戰爭進入最後階段,日本投降已經成為必然,中國人民贏得最後的勝利也只是時間問題. 面對國內局勢,1945年4月,在毛主席的主持下,中國共產黨在延安召開了第七次全國代表大會,也就是著名的七 ...

CUBA兩位神投手莊戰和相智超,為何莊戰被選中?相智超落選?

CUBA兩位神投手莊戰和相智超,為何莊戰被選中?相智超落選?
深圳市第二實驗學校三人組 今年的CBA選秀大會上,CUBA的兩位神投手莊戰和相智超同時參選,最後莊戰在第二輪被福建潯興男籃選中,相智超卻意外落選,這讓很多支援相智超的球迷感到不滿,他們覺得相智超更加出 ...

“數字小姐”是誰?只有這兩位承認了,她們的理由你能接受嗎?

“數字小姐”是誰?只有這兩位承認了,她們的理由你能接受嗎?
"數字小姐"這個詞語大家並不陌生,娛樂圈中不止一個人爆料過這個問題,由於爆料在都沒有實名說出姓名,所以引起了不少人的猜測.但是在眾多猜測者中,只有兩位是真的承認了,她們就是鍾麗緹和 ...

突然消失在熒屏的10位女演員,兩位失婚三位變樣,還有人削髮為尼

突然消失在熒屏的10位女演員,兩位失婚三位變樣,還有人削髮為尼
在很多人的童年記憶中,有不少演員都曾留下過美好的回憶,不過,隨著娛樂圈的更新迭代和歲月的蹉跎,那些曾在熒屏前有過驚鴻一瞥的女演員們,也或多或少早已經被人所淡忘了. 這次,小編就帶大家回憶一下,10位曾 ...

無懸念!奧運冠軍組合奪4x200米接力金牌,全運誕生兩位三金王

無懸念!奧運冠軍組合奪4x200米接力金牌,全運誕生兩位三金王
北京時間9月23日,全運會繼續進行,在女子4x200米自由泳接力決賽中,由楊浚瑄.湯慕涵.張雨霏和李冰潔組成的奧運聯合隊發揮出色,以7分53秒73的成績奪冠,張雨霏和湯慕涵已經成為了全運三金王. 女子 ...

建國初期的六大軍區,由八位元帥坐鎮,另外兩位元帥哪裡去了?

建國初期的六大軍區,由八位元帥坐鎮,另外兩位元帥哪裡去了?
正所謂"亂世造英雄",近代中國足以稱得上是個"亂世",因此這裡所湧現出來的英雄人傑也數不勝數.除了近代"開眼看世界"的思想.文化先驅們,在政 ...

朱德落難,求助兩位結拜兄弟,一個裝聾作啞,另一個兩肋插刀

朱德落難,求助兩位結拜兄弟,一個裝聾作啞,另一個兩肋插刀
作者:藍顏也傾城 1927年冬,朱德帶著由南昌起義軍餘部改編的"國民革命軍第五縱隊",來到了江西崇義縣的上堡地區.上堡是朱德把兄弟楊如軒第27師的地盤,緊靠著朱德另一位把兄弟範石生 ...

《12·1槍殺大案》22年,兩位龍套已是名導演,執行導演成了大佬

《12·1槍殺大案》22年,兩位龍套已是名導演,執行導演成了大佬
士別三日,當刮目相看. 如果隔了二十多年呢?在快節奏的社會里,恐怕就是物是人非滄海桑田了. 本文要關注的是22年前的刑偵劇<12·1槍殺大案>中的龍套演員們. <12·1槍殺大案&g ...

吃辣椒辣兩頭,啥原因?揭開謎底的兩位科學家獲得諾貝爾生理學獎

吃辣椒辣兩頭,啥原因?揭開謎底的兩位科學家獲得諾貝爾生理學獎
喜歡吃辣椒的朋友對老話講的"辣椒辣兩頭"這句話肯定感同身受,因為吃辣椒的時候先是嘴巴會感覺到辣味,而之後上廁所方便的時候"菊花"又會感受到火辣辣的又熱又疼的感覺 ...

對越自衛反擊戰,我軍犧牲的兩位副師級將領都是誰?如何犧牲的?

對越自衛反擊戰,我軍犧牲的兩位副師級將領都是誰?如何犧牲的?
曾經我國用200億美元資助越南,最後卻養出了一個白眼狼.他們吃著中國的大米拿著中國提供的武器,卻挑起了中越戰爭.最令人心痛的是戰爭中我國犧牲了很多戰士,還有優秀的高階指揮官.你知道犧牲的職位最高的兩位 ...

另一種犧牲:兩位默默無名的年輕烈士……

另一種犧牲:兩位默默無名的年輕烈士……
無名烈士之墓 現在的影視劇裡,地下黨的領導同志都是衣冠楚楚,不是長衫大褂,就是大衣.西裝三件套,好像不如此,便不會演戲了. 可實際上,要做佔中國人口絕大多數的農民和城市貧民工作,你就得跟群眾打成一片, ...

獨家專訪:首輪融資2.5億,兩位TapTap創始人的新產品要怎麼做?

獨家專訪:首輪融資2.5億,兩位TapTap創始人的新產品要怎麼做?
目標1000萬DAU. 文/托馬斯之顱 在遊戲圈裡,「好說」可能是最受關注的一款平臺產品.畢竟它的創始人是黃希威和張乾--TapTap的兩位聯合創始人. 之前不少人認為,好說要做中國的Discord. ...

09年韋德場均30.2分,為何MVP只排第三,前二是哪兩位?

09年韋德場均30.2分,為何MVP只排第三,前二是哪兩位?
韋德是一位攻防俱佳的巨星,在他16年的職業生涯中,他獲得了許多榮譽:3個總冠軍,一個總決賽MVP,1次得分王,13次入選全明星,1次當選全明星MVP,2次入選最佳陣容一陣,3次入選最佳陣容二陣,3次入 ...

長得帥也有錯?士兵因長相英俊,被兩位越南女兵擄入深山生活13年

長得帥也有錯?士兵因長相英俊,被兩位越南女兵擄入深山生活13年
我們都知道長相靚麗的女性在動盪年代更為危險,因為美色往往會成為暴動以及殺戮的導火索. 可是你知道嗎?帥氣的男人在打仗時也格外危險,在對越反擊戰中,我國就有一位士兵被兩位越南女兵看上.擄入深山之中一同生 ...

2025年,現在150萬的房產能值多少錢?兩位專家的答案出奇一致

2025年,現在150萬的房產能值多少錢?兩位專家的答案出奇一致
作者:縱橫論市 一直以來,網上有很多關於房產價值趨勢的討論.之所以成為談論的焦點,因為,對於買了房的人來說,希望房價不要出現下跌情況,即便是用來住的,誰也不希望買了就下跌,否則多支付了成本.當然,對於 ...

兩位奧運冠軍奪女子舉重金牌 老將向豔梅超挺舉世界紀錄
(陝西全運會)兩位奧運冠軍奪女子舉重金牌 老將向豔梅超挺舉世界紀錄 中新社陝西渭南9月18日電 (記者 王鵬)18日舉行的第十四屆全運會女子舉重專案中,兩位奧運冠軍奪得金牌.87公斤級決賽,東京奧運會 ...

王樹聲愛上楊炬,找了三個媒人被兩位老總催婚,送她唯一一首詩

王樹聲愛上楊炬,找了三個媒人被兩位老總催婚,送她唯一一首詩
1943年,還在中央黨校的王樹聲,有一次參加晚會,遇見了一個令他心動不已的人. 當時對方正在表演節目詩朗誦<一句話>,對方激昂的朗誦,把詩人的情感表達得淋漓盡致,也讓她走進了王樹聲的心中, ...

湖人三分能力值曝光!舊將高居第一,另外兩位也將擔起重任

湖人三分能力值曝光!舊將高居第一,另外兩位也將擔起重任
隨著NBA2K22遊戲的正式上線,關於各隊的額能力值也隨之公佈,而湖人在三分能力值排名方面,也就此揭秘,其中二進宮的舊將維恩艾靈頓以86高居第一位,卡梅隆安東尼(84).馬利克蒙克(84).勒布朗詹姆 ...

華中科大接連出走兩位學術大咖:一位去了鄭大,一位去了河南工大

華中科大接連出走兩位學術大咖:一位去了鄭大,一位去了河南工大
華中科技大學接連被挖走兩位學術大咖:一位去了鄭州大學,一位去了河南工業大學. 說到湖北省的高等院校,很多人會想到武漢大學和華中科技大學,作為湖北高校的領頭羊,武大和華科被很多人譽為是湖北省內高校的&q ...