“去風格化”設計,相信很多人都聽過,並且在當下新房設計中,也比較常見。那麼“去風格化”設計,到底該怎麼設計?是不是就不用考慮空間風格了呢?事實上,顯然不是這樣的。雖說在風格上不設限制了,但合理的材質、色彩、元素搭配,還是要考慮的。
本期給大家帶來的這套案例,在設計上就沒做風格限制,並且還運用了大量的元素來做點綴。或許效果表現這塊,可能不會讓所有人都喜歡,但一進門就有著藏不住的奢華,且極具藝術氣息。
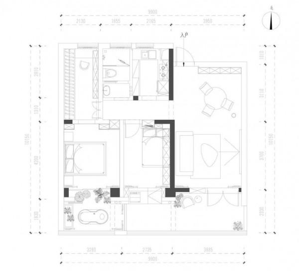
平面戶型圖
新房面積90㎡,兩室兩廳兩衛的格局,屋主是一對年輕小夫妻。原戶型很常規,且佈局也並沒有什麼亮點,唯一不同的,就是主衛改成了衣帽間,以及主臥陽臺兼具了泡澡區的功能。當然,空間佈局也並不是本案的亮點,主要還是軟硬裝搭配這塊,真的很讓人驚豔。
餐廳
大量金色元素的運用,一進門就透著奢華的氣息。雖說金色元素很容易讓人產生俗氣感,但搭配上黑色元素後,不僅在視覺上做到了平衡,並且還少了一些金屬固有的硬朗與厚重感。
入戶旁邊就是餐廳,餐邊櫃採用開合設計,完美兼具了入戶收納需求以及日常的展示功能。而刻意選擇一張圓形的餐桌來配置,對於小空間來說,也是極為合理的。畢竟圓弧形元素,本身就可以加深空間的流暢性。
餐桌側面則擺放了一組類似機器人造型的裝飾櫃,相較於裝飾櫃的收納與展示功能,它更承擔了活躍空間氣氛的作用。而利用一根黑色的羅馬柱來隔斷客餐廳,也是十分巧妙地處理,並帶來了一絲優雅、復古的質感。
客廳
相較於餐廳的奢華,客廳這裡則凸顯出了簡約、精緻、以及藝術格調。比如牆面的抽象式的裝飾畫,就在白牆的襯托下,點綴出了一絲藝術氣息。比如金屬落地燈以及玻璃茶几配置,就呼應出了現代時尚元素。再比如復古風的沙發配置,就帶來了舒適與精緻性。
陽臺保留玻璃門隔斷,可以有效地提高室內的隔音隔熱效果。而給旁邊玻璃窗內嵌一臺電子壁爐,既有了不錯的裝飾效果,也起到了調節室內溫度的作用。
電視背景牆直接留白,看似十分單調,但兩幅裝飾畫的存在,卻也起到了豐富視覺的作用。尤其是在燈光的襯托下,更是將藝術氣息展示得淋漓盡致。
過道
利用過道的開間尺寸,重新調整主臥門洞位置後,則實現了對開門的結構。相較於常見的單開門,雙開門不僅帶來了舒適的動線體驗,視覺上也大氣了許多。而在色彩元素的運用上,依然使用了黑色與金色,看起來相當奢華、精緻。
衛生間
衛生間採用乾溼分離的結構來設計,可以最大化地提高空間使用率。雖說金屬立柱臺盆選擇,看起來比較普通,但當牆面做了護牆板以及藝術漆畫設計後,卻也毫無一點違和感。
主臥室
來到主臥,相較於其它空間,這裡的材質則多為復古元素為主,不過超柔軟的床品配置,在弱化沉悶的前提下,卻也帶來了舒適的體驗。再搭配上磨砂玻璃固有的朦朧感,讓整個空間都充滿了浪漫的氣息。
衣帽間
考慮到家裡平時只有兩個人居住,所以將主衛改成衣帽間,也算是比較實用的設計了。當然,給所有的櫃門安裝上長虹玻璃,也再次呼應了空間主題,看起來相當有質感。
陽臺
保留原有的長陽臺結構,可以讓空間看起來更加寬敞、通透,並提高了生活動線的靈動性。書房與陽臺打通,並設計一個飄窗櫃用來隔斷,在滿足日常辦公的前提下,也將洗衣機隱藏在了櫃體中。
主臥外的陽臺配置浴缸,也算是彌補了捨棄主衛後的功能性,從而讓屋主可以徹底地放鬆身心,享受生活。
整個案例看下來,雖說是以去風格化為主的,但也融合了多種裝修風格。比如現代輕奢、復古、美式等等。不過最讓人驚豔的,還是在運用大量金屬元素的情況下,完全沒有想象中的俗氣感。不得不說,真的是太美了。對此,你們怎麼看呢?
圖源:金晶
